Hjejlevej 16
6920 Videbæk

Sagsnr. 53641750

Ejendomstype

Etageareal

Grund

Energiklasse

389 m²

1.739 m²

C

Kontantpris

Købspris pr. m²

Årlig driftsudgift

Årlig driftsudgift pr. m²

1.100.000 kr.

2.828 kr.

18.132 kr.

47 kr.

Velholdt erhvervsejendom med masser af anvendelsesmuligheder

Velholdt erhvervsejendom beliggende i den sydlige del af Videbæk udbydes til salg i samarbejde med Nordicals Midtjylland.

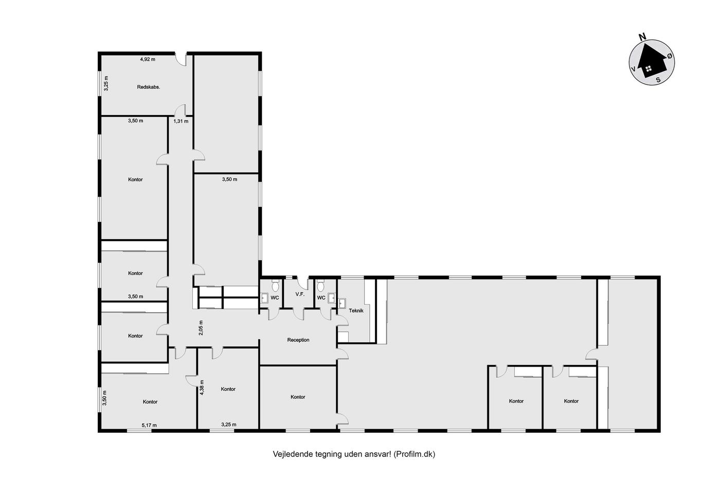
Ejendommen har tidligere dannet grundlag for et lokalt revisionskontor, og har derfor en lang række gode faciliteter, der dækker behovene og kravene til kontor- og personalefaciliteter. I den forbindelse skal de rummelige lokaler, det åbne kontorlandskab samt de etablerede cellekontorer fremhæves sammen med det tilhørende arkiv- og teknikrum, der samlet set fremstår velholdt, med god plads og rummelighed.

Det er samtidigt vigtigt at nævne, at ejendommen vil være let at opdele og indrette efter behov, idet den bestående planløsning er etableret med letvægge og med en fornuftig planløsning.

Afslutningsvis skal det bemærkes, at ejendommen er beliggende på en hjørnegrund med gode parkeringsmuligheder og tilkørselsforhold for både kunder og personale, og samlet set fremstår velholdt og indbydende, og derfor er oplagt som domicilejendom.

Overordnet set henvender ejendommen sig primært til en bred målgruppe indenfor følgende erhverv:

- Kontor og administration
- Institutioner
- Behandlere, såsom massører, fysioterapeuter, psykologer o. lign.

For god ordens skyld skal det nævnes, at bestående Lokalplan for området giver mulighed for omdannelse af erhverv til bolig, idet ejendommen er beliggende i et boligområde.


Indretning og ydre arealer
Grundarealet er på i alt 1.739 m² og med en hovedbygning i vinkelform på 389 m². En stor del af grundareal er udlagt til parkering og belagt med cementsten. Det resterende grundareal er belagt med grus og græs.

Indretningen er med indgang for "kunder" fra parkeringsarealet til en glasadskilt forrum og adgang til toiletter. Fra fordelingsgangen i den ene del af bygningen er personaleafdeling med køkken, kontorer i varierende størrelse og stort mødelokale. Der findes en personaleindgang fra bygningens gavlside.

I den anden del af bygningen er der stort åbent kontormiljø, teknikrum, stort arkivrum og 2 cellekontorer. I denne del af bygningen er gulvarealet med tæppefliser og samtlige rum har troldtektlofter, hvilket giver gode akustikforhold og fremtræder tidssvarende.

Ejendommen ligger med kort afstand til skole, byens handelsgade samt er beliggende tæt ved Videbæk Skole og Videbæk Idræts- og Fritidscenter, som har to idrætshaller, svømmehal, bowlinghal, motions- og fitnessudstyr.


Område
Videbæk er med godt 4.300 indbyggere den tredjestørste by i Ringkøbing-Skjern Kommune. Det er samtidig den østligste by i kommunen, og Videbæk er populært sagt porten mellem Vestjylland og Midtjylland og tæt på det hele. Videbæk ligger lige mellem Ringkøbing og Herning. Du kan nå de to byer på kun ca. tyve minutters kørsel mod henholdsvis vest eller øst. Samme tid tager det mod syd til Skjern og ti minutter længere mod nord er du i Holstebro.

Videbæk huser flere af de største produktionsvirksomheder i Ringkøbing-Skjern Kommune med flere tusinde medarbejdere. Blandt andre VESTAS og ARLA/ARINCO har store afdelinger i Videbæk.

Læs mere

Vil du vide mere?

Michael Odderskjer Jensen

mij@nordicals.dk

+4530661165

Dalgas Plads 6, 1, 7400 Herning

+4570254052

7400@nordicals.dk

Besøg vores mæglerside

Lignende ejendomme

Til top