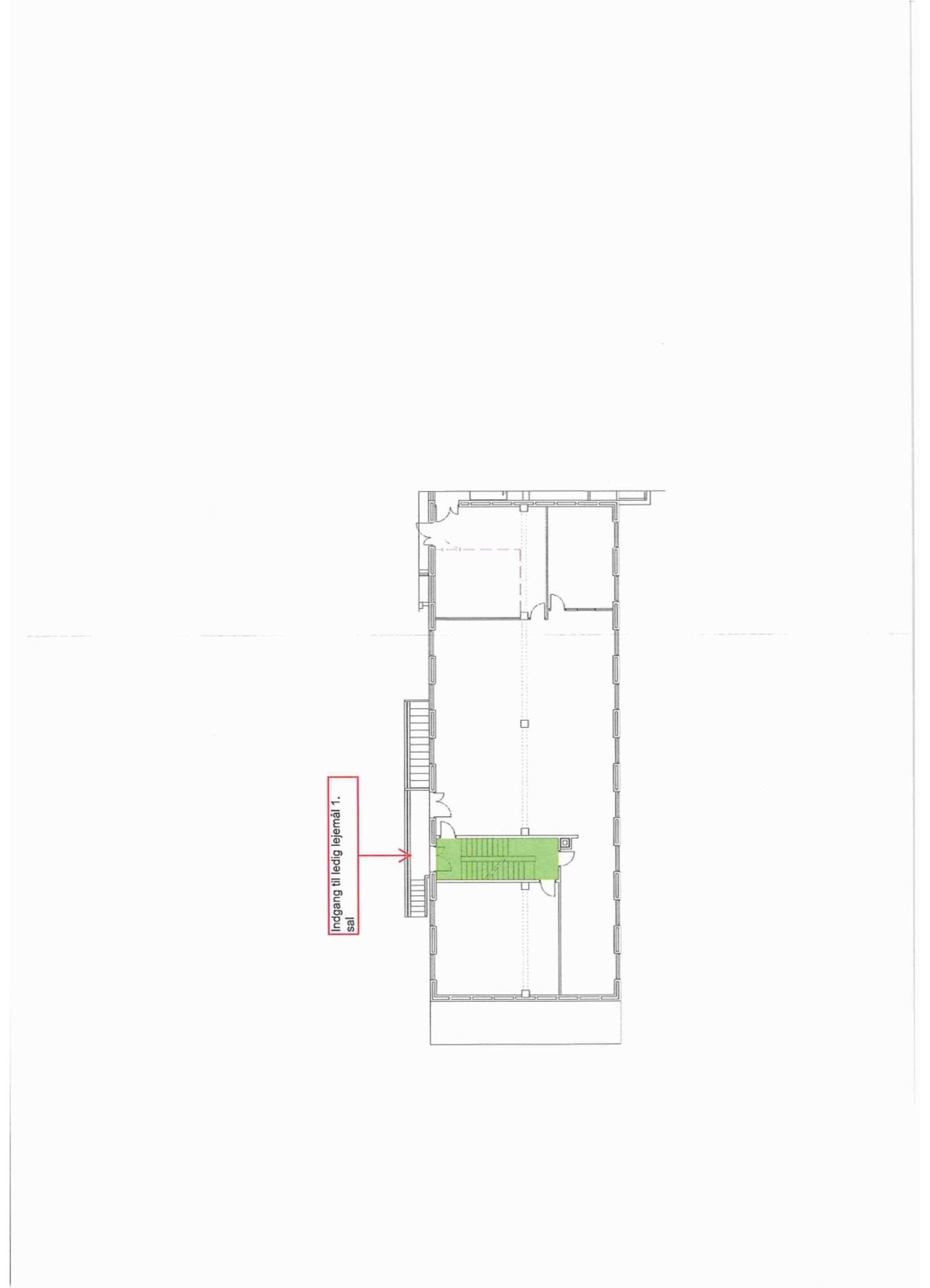
Grønnegade 5, 1.
6950 Ringkøbing

Sagsnr. 24754

Ejendomstype

Etageareal

Energiklasse

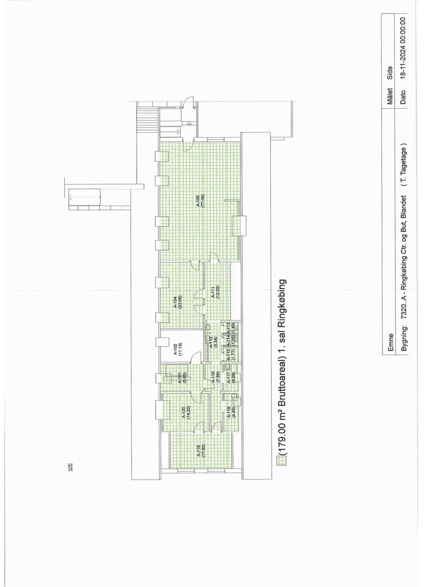
179 m²

D

Årlig leje

Leje pr. m²

Depositum

Årlig driftsudgift

Årlig driftsudgift pr. m²

53.700 kr.

300 kr.

26.850 kr.

8.950 kr.

50 kr.

Lejemål mellem torvet og havnen i Ringkøbing

Pænt fremlejemål beliggende i hyggelig gade mellem torvet og havnen.

En del af ejendommens anvendes som telefoncentral for TDC og bl.a. til Ringkøbing Garden.

Bygningen er beliggende i den ældre bydel af Ringkøbing.

De ledige lokaler indeholder blandt andet stort åbent kontormiljø, flere separate kontorer, toiletter, the-køkken m.m.

Der er mulighed for leje af arkiv i kælderen til rimelig husleje.
Der er stor gård med gode parkeringsmuligheder.

Skiltning er muligt efter aftale med fremlejegiver.

Lejemålet er velegnet til foreningsformål, kontor, klinik, handelsvirksomhed eller lignende.

Læs mere

Vil du vide mere?

Lone Futtrup Sørensen

LFS@nordicals.dk

+4521466336

Helgolandsgade 13, 7500 Holstebro

+4597404200

7500@nordicals.dk

Besøg vores mæglerside

Lignende ejendomme

Til top