Nørregade 2
6950 Ringkøbing

Sagsnr. 24818

Ejendomstype

Etageareal

Grund

Energiklasse

520 m²

596 m²

D

Kontantpris

Købspris pr. m²

Årlig driftsudgift

Årlig driftsudgift pr. m²

4.195.000 kr.

8.067 kr.

69.535 kr.

134 kr.

Meget flot og charmerende domicilejendom i Ringkøbing Centrum

Den imponerende ejendom er opført i 1907 og fremstår smukt i røde mursten, med klassisk tegltag og nyere termovinduer, som tilsammen giver bygningen et elegant og velholdt udtryk.

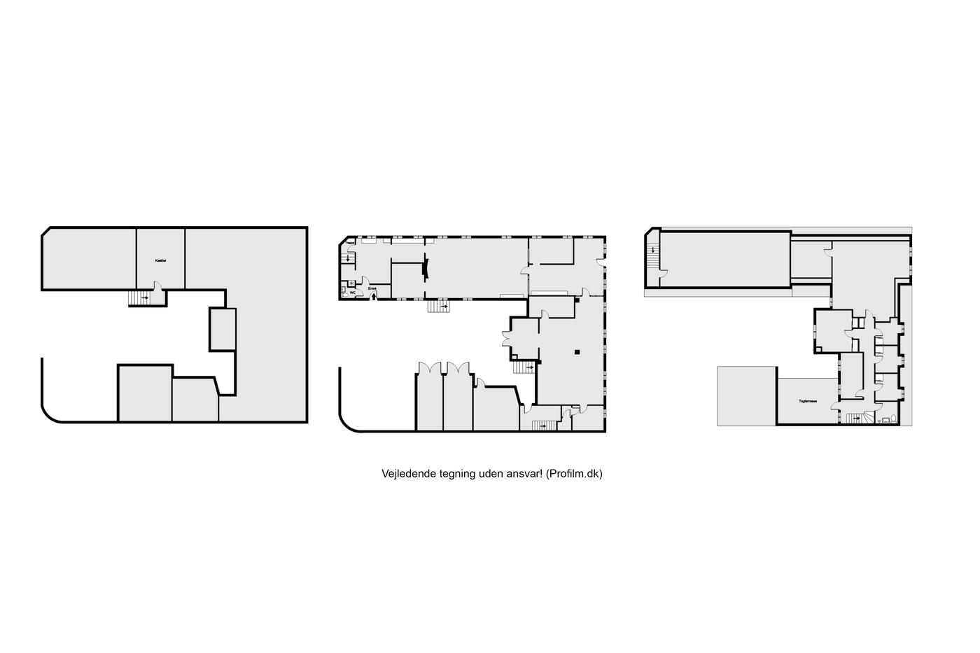
Stueetagen anvendes i dag som to separate kontormiljøer, men vil ved salg kunne frigives, så køber får mulighed for at benytte hele etagen efter egne ønsker og behov. Her møder man en spændende indretning, hvor der er taget hensyn til ejendommens historiske charme. Lofter, vægge og detaljer bærer præg af den oprindelige arkitektur og skaber en unik atmosfære.

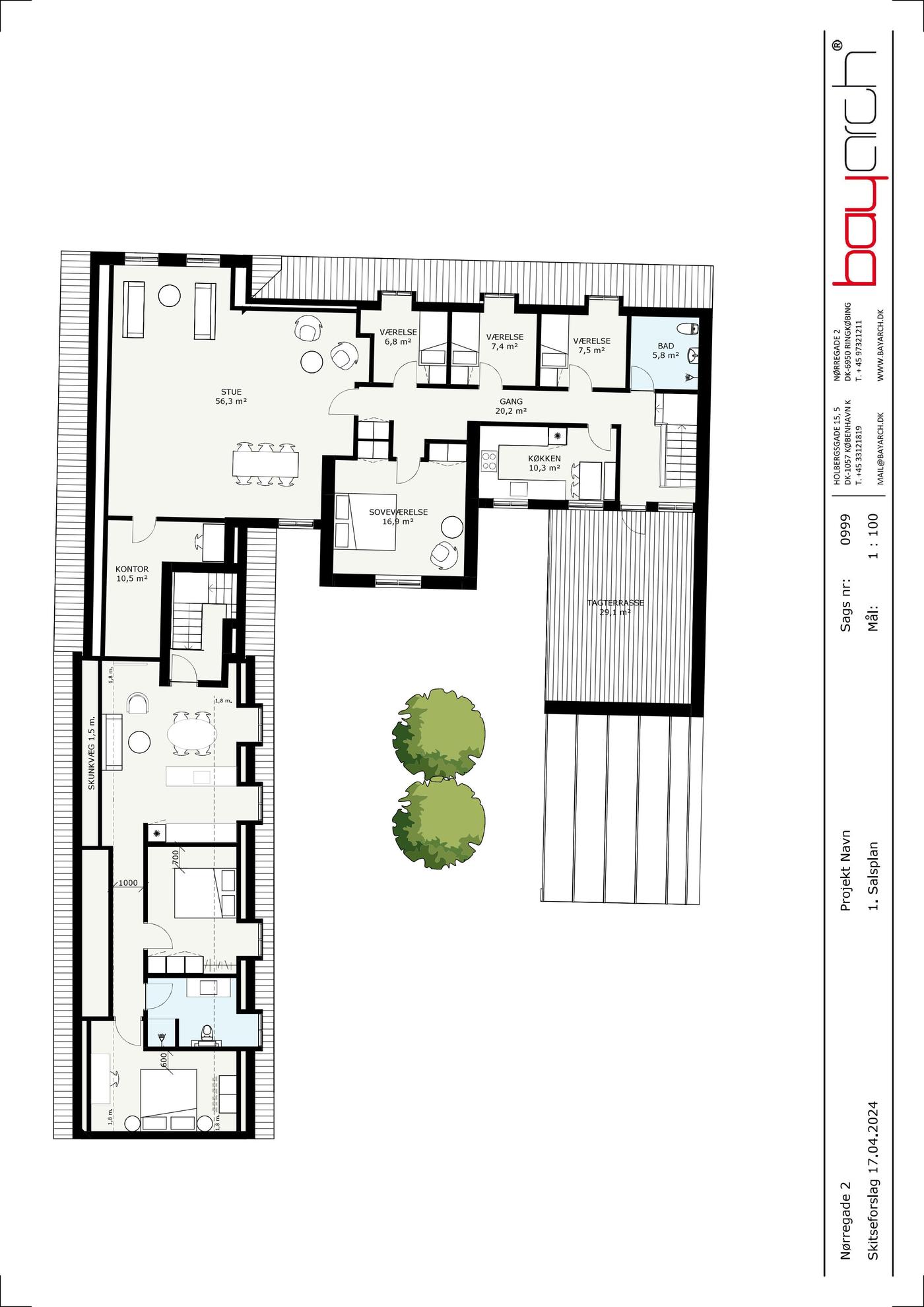
På 1. sal findes en rummelig lejlighed på 161 m², som i dag er udlejet til en rolig og stabil lejer.

Til ejendommen hører desuden en dejlig gårdhave med mulighed for parkering samt et 36 m² stort lager, som giver ekstra fleksibilitet til både erhverv og opbevaring.

Her får du muligheden for at blive ejer af en af Ringkøbings absolut smukkeste og mest markante ejendomme. Med sin særlige arkitektoniske udstråling har den altid været blandt byens mest iøjnefaldende bygninger.

En charmerende, sjældent udbudt ejendom beliggende i hjertet af Ringkøbing - tæt på torvet og byens liv.

Ejendommen er meget velegnet som domicil / kontor, men vil også kunne benyttes til beboelse m.m. Der er tidligere udarbejdet et forslag til boligprojekt på ejendommen. Køber har mulighed for at overtage udarbejde skitseforslag på 5 lejligheder. Skitseforslaget kan ses bagerst i salgsopstillingen. Køber skal være opmærksom på anvendelse i lokalplanen. Dette kan kræve ændringer, dispensation eller helt ny lokalplan. Undersøgelsespligten for ændret anvendelse påhviler alene køber.

Kontakt Nordicals Vestjylland i dag for en fremvisning eller hør nærmere på 9740 4200.

Læs mere

Vil du vide mere?

Kasper Bergenhammer Andersen

KBA@nordicals.dk

+4523102919

Helgolandsgade 13, 7500 Holstebro

+4597404200

7500@nordicals.dk

Besøg vores mæglerside

Lignende ejendomme

Til top