Eske Hedegårds Vej 8, Taulov
7000 Fredericia

Sagsnr. 205912

Ejendomstype

Etageareal

Energiklasse

10.149 m²

C

Årlig leje

Leje pr. m²

Depositum

Årlig driftsudgift

Årlig driftsudgift pr. m²

4.379.395 kr.

432 kr.

2.189.698 kr.

477.003 kr.

47 kr.

Velbeliggende lager- og logistikejendom med kort afstand til E20/E45

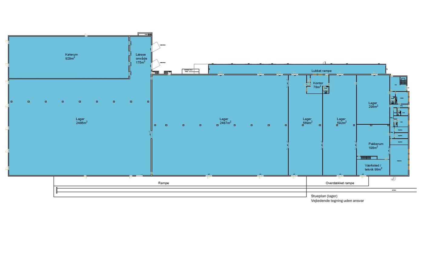
Velfungerende lager- og logistikejendom, der fremstår velholdt og fleksibel i sin anvendelse. Ejendommen rummer både højloftet lager, almindeligt lager samt to højlagersektioner med en frihøjde på 11,75 meter - hhv. 2.653 m² og 950 m², hvor sidstnævnte er indrettet med mulighed for køl, som dog på nuværende tidspunkt ikke er i brug.

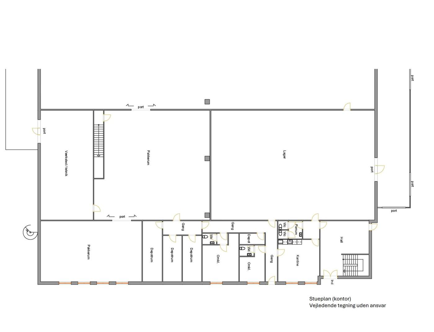
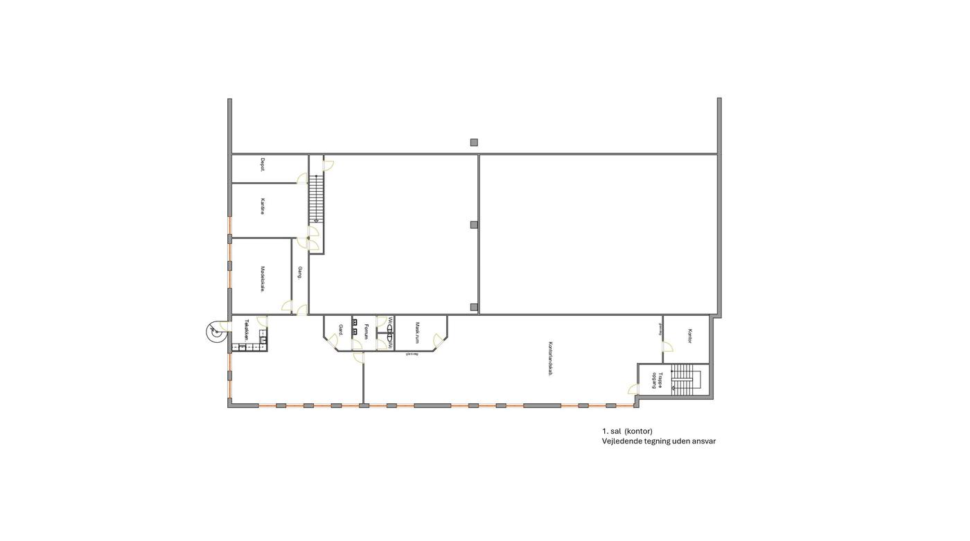
Derudover findes et lagerareal på 4.691 m² med en frihøjde på 7,5 meter, som giver optimale forhold for effektiv opbevaring. Ejendommen omfatter desuden oversækkede ramper/sluser på 777 m², baneoverdækning på 540 m² samt en kælder på 81 m². Administrationsafsnittet udgør 457 m² og indeholder både storrumskontorer, mindre kontorer, mødelokaler samt kantine, køkken og bade-/omklædningsfaciliteter, hvilket giver gode rammer for både administration og personale. Ejendommen er udstyret med 11 sluseporte, en overdækket læsserampe samt flere gode, regulære haller, der giver mulighed for en bred vifte af anvendelser inden for lager og logistik.

Endvidere råder ejendommen over eget banespor, som giver en markant logistisk fordel for virksomheder med behov for jernbanegods eller multimodale transportløsninger.

Der er desuden mulighed for tilbygning af yderligere arealer, hvilket gør ejendommen attraktiv for virksomheder med udvidelsesplaner.

Læs mere

Vil du vide mere?

Jon Stefansen

jon@nordicals.dk

+4542737400

Birkemose Allé 37A, 1. sal, 6000 Kolding

+4576310160

6000@nordicals.dk

Besøg vores mæglerside

Lignende ejendomme

Til top