Frederik 3.s Vej 6
7000 Fredericia

Sagsnr. 012562

Ejendomstype

Etageareal

Grund

Energiklasse

820 m²

713 m²

D

Kontantpris

Købspris pr. m²

Årlig driftsudgift

Årlig driftsudgift pr. m²

2.950.000 kr.

3.598 kr.

74.424 kr.

91 kr.

Centralt beliggende projektjendom

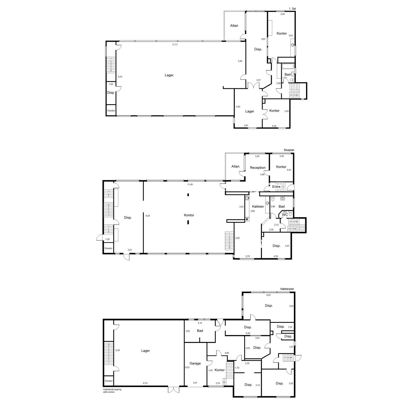
Fin ældre ejendom der kan have mange anvendelsesmuligheder, senest anvendt til kontor. Bygningen er i 2 etager + kælder.

Ejendommen har gennem en længere årrække været lejet af Lokalhistorisk arkiv, men kan også projektudvikles til eksempelvis boliger.

Udenomsarealerne er udlagt til parkering og fremstår flotte og præsentable.

Der er tale om en ældre ejendom, der dog er meget anvendelig med flere kontorer, storrumskontor, køkken/kantine område samt brugbar kælder.

Området hvori ejendommen er beliggende, er primært et boligområde. Der er kort afstand til banegården ligesom der findes dagligvareindkøb i umiddelbar nærhed.

Læs mere

Vil du vide mere?

Martin Sauer

mas@nordicals.dk

+45 2427 4782

Birkemose Allé 37A, 1. sal, 6000 Kolding

+4576310160

6000@nordicals.dk

Besøg vores mæglerside

Lignende ejendomme

Til top