Frederiks Promenade 11, st. og 13, st.
7000 Fredericia

Sagsnr. 012802

Ejendomstype

Etageareal

Energiklasse

328 m²

A2015

Kontantpris

Købspris pr. m²

Årlig driftsudgift

Årlig driftsudgift pr. m²

4.250.000 kr.

12.957 kr.

40.869 kr.

125 kr.

Erhvervsejerlejlighed til café, kontor, klinik m.v.

I hjertet af Fredericia, hvor byens historie møder det moderne arkitektoniske udtryk, ligger denne erhvervsejerlejlighed. Placeringen
i Kanalbyen på hjørnet af Købmagergade og Frederiks Promenade danner rammen om en førsteklasses adresse med en maritim
karakter.

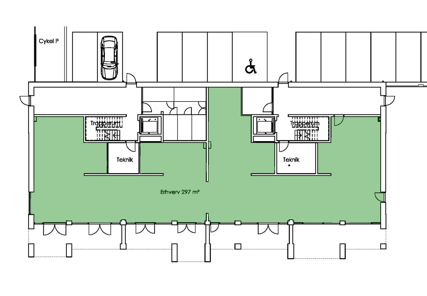
Erhvervsejerlejligheden er på i alt 328 m² og beliggende i stueplan. Erhvervsejerlejligheden er beliggende i den Kanalbyen i Fredericia, hvor havnens æstetiske omgivelser møder byens pulserende liv. Med en placering, hvor både den gamle bydel og det moderne miljø er lige uden for døren, er der tale om en unik beliggenhed, der både repræsenterer Fredericias historiske sjæl og dens moderne tids hjerte.

Fra ejendommen er der blot et par minutters gang til den charmerende bymidte, mens den nærmeste motorvejsafgang er under ti minutters kørsel væk.

Køber skal selv færdigetablere ejerlejligheden efter eget ønske.

OBS: Købesummen tillægges moms, da salget af ejendommen er omfattet af reglerne om momspligt for nybyggeri, jf. momsloven.

Læs mere

Vil du vide mere?

Jon Stefansen

jon@nordicals.dk

+4542737400

Birkemose Allé 37A, 1. sal, 6000 Kolding

+4576310160

6000@nordicals.dk

Besøg vores mæglerside

Lignende ejendomme

Til top