Frederiks Promenade 19, st. 21, st.
7000 Fredericia

Sagsnr. 012882

Ejendomstype

Etageareal

Energiklasse

280 m²

A2015

Kontantpris

Købspris pr. m²

Afkast

Årlig lejeindtægt

Årlig lejeindtægt pr. m²

Årlig driftsudgift

Årlig driftsudgift pr. m²

3.500.000 kr.

12.500 kr.

6,35 %

250.111 kr.

893 kr.

32.472 kr.

116 kr.

Unik investering i Kanalbyen – fuldt udlejet erhverv

I hjertet af Fredericia, hvor byens historie møder det moderne arkitektoniske udtryk, ligger disse erhvervsejerlejligheder. Placeringen
i Kanalbyen på Frederiks Promenade tæt på Købmagergade danner rammen om en førsteklasses adresse med en maritim
karakter.

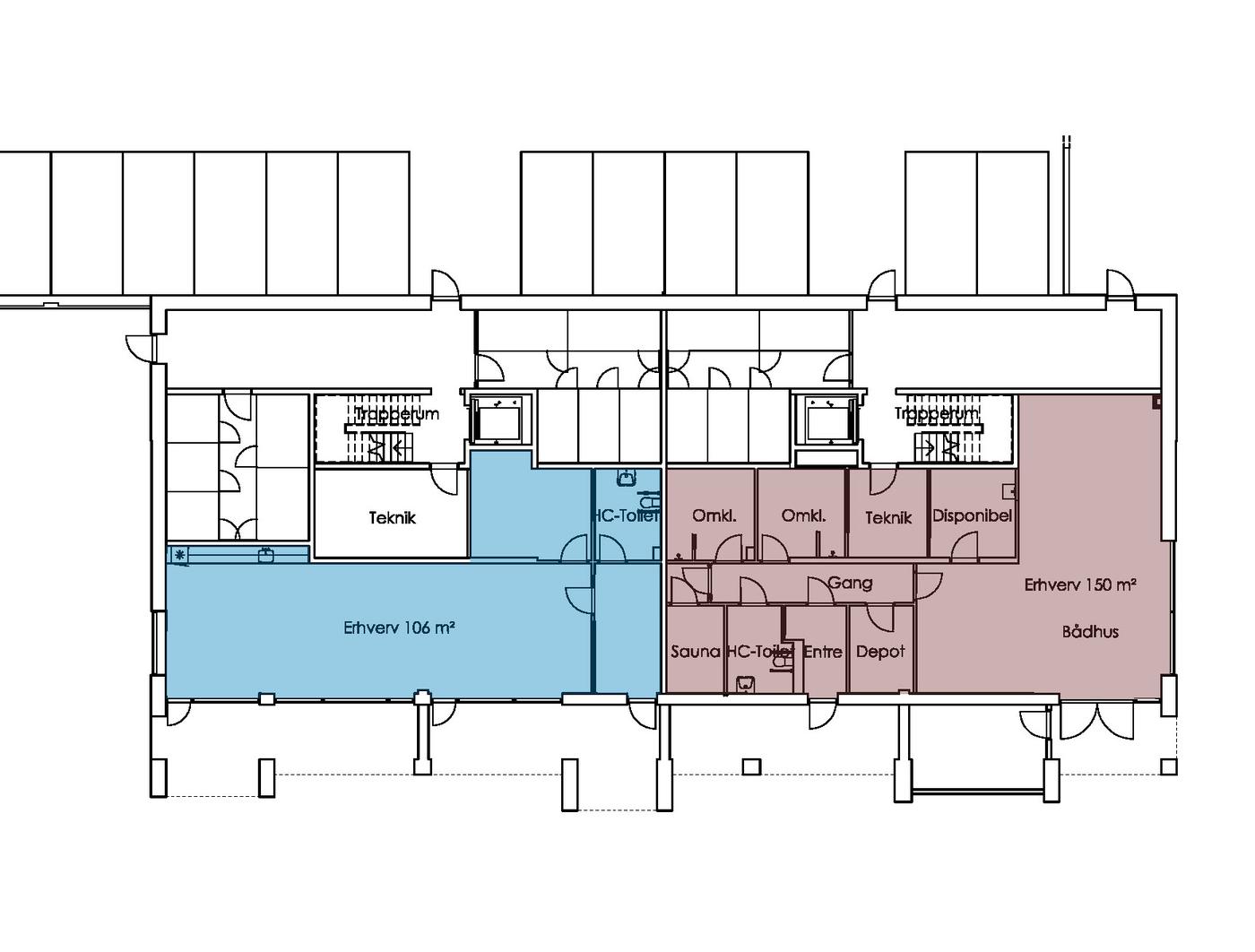
De to erhvervsejerlejligheder har et samlet areal på i alt 280 m² og beliggende i stueplan. De er opdelt i 3 lejemål, som alle er udlejede. Erhvervsejerlejlighederne er beliggende i Kanalbyen i Fredericia, hvor havnens æstetiske omgivelser møder byens pulserende liv.

Med en placering, hvor både den gamle bydel og det moderne miljø er lige uden for døren, er der tale om en unik beliggenhed, der både repræsenterer Fredericias historiske sjæl og dens moderne tids hjerte.

Fra ejendommen er der blot et par minutters gang til den charmerende bymidte, mens den nærmeste motorvejsafgang er under ti minutters kørsel væk.

Rigtig fin investeringsejendom, som vil tiltrække lejere, der søger unik placering ved vandet.

OBS: Købesummen tillægges moms, da salget af ejendommen er omfattet af reglerne om momspligt for nybyggeri, jf. momsloven.

Læs mere

Vil du vide mere?

Jon Stefansen

jon@nordicals.dk

+4542737400

Birkemose Allé 37A, 1. sal, 6000 Kolding

+4576310160

6000@nordicals.dk

Besøg vores mæglerside

Lignende ejendomme

Til top