Kaltoftevej 13
7000 Fredericia

Sagsnr. 012642

Ejendomstype

Etageareal

Grund

1.055 m²

7.178 m²

Kontantpris

Købspris pr. m²

Årlig driftsudgift

Årlig driftsudgift pr. m²

3.500.000 kr.

3.318 kr.

77.664 kr.

74 kr.

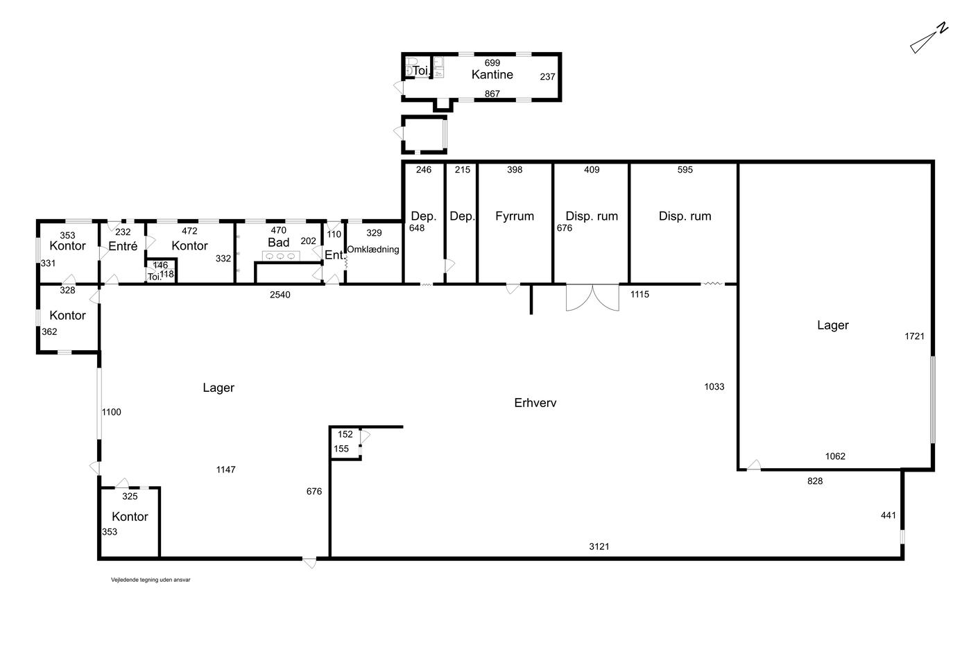
Lager- og produktionsejendom i Fredericia

Lager-/produktionsejendom beliggende i Fredericia N i mindre industriområde. Her er få minutters kørsel til Fredericia centrum.

Selve bygningen er med gråmalet facade og større vinduesparti i gavl.
Ejendommens kontorafsnit er nyrenoveret indvendigt, herunder med nymalede gulve, lofter samt vægge.

Produktionshallen er indrettet med sprøjtekabiner samt udsugning. Der er ligeledes port i begge gavle med en højde på cirka 4,5 meter.

Kontorafdeling indeholder flere kontorer samt omklædning med bad. Ydermere er der opført en pavillon indrettet med kantine og toiletter.

Udenomsarealer er befæstet med sten, hvor der er god mulighed for oplagring m.m.

Tilhørende ejendommen er ligeledes stor parkeringsplads.

Bag ejendommen findes et antal udlejede "bokse", der kan overtages efter nærmere aftale.

Læs mere

Vil du vide mere?

Jon Stefansen

jon@nordicals.dk

+4542737400

Birkemose Allé 37A, 1. sal, 6000 Kolding

+4576310160

6000@nordicals.dk

Besøg vores mæglerside

Lignende ejendomme

Til top