Nordensvej 15A-B, Taulov
7000 Fredericia

Sagsnr. 206862

Ejendomstype

Etageareal

Energiklasse

3.418 m²

B

Årlig leje

Leje pr. m²

Depositum

2.008.600 kr.

588 kr.

1.004.300 kr.

Fleksibel erhvervsejendom med lager, produktion og kontor – tæt på E20

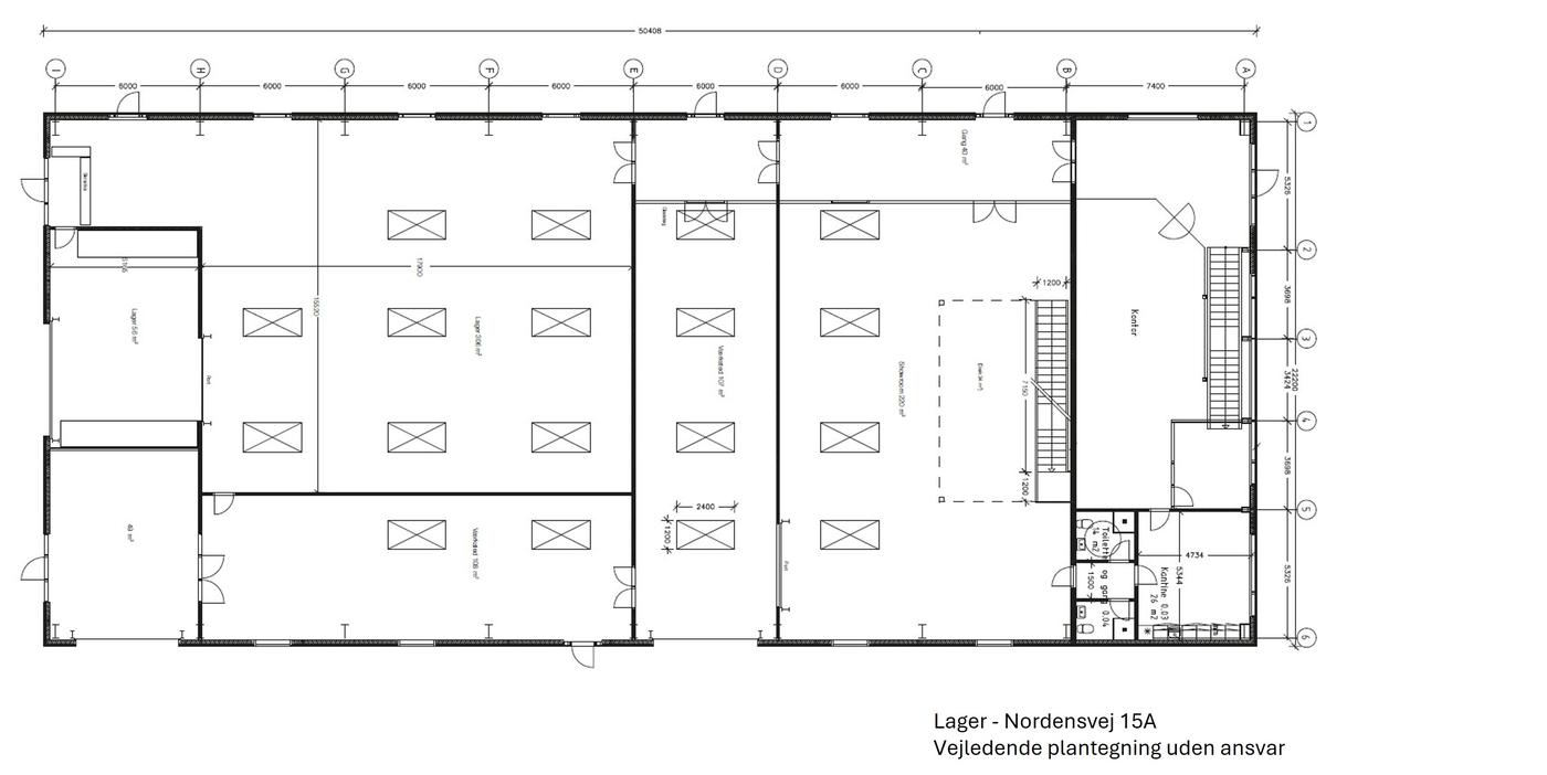
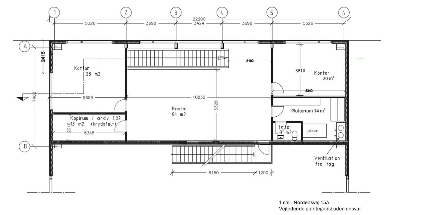
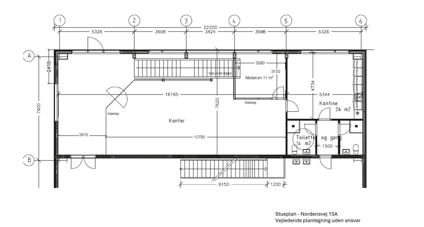
På Nordensvej 15A-B i Taulov Erhvervspark udbydes en moderne ejendom på i alt 3.418 m², fordelt på to separate bygninger. Ejendommen kan opdeles i to lejemål på 1.287 m² og 2.131 m², hvilket giver stor fleksibilitet for virksomheder med behov for lager, produktion eller kombineret drift.

Begge bygninger byder på lyse og højloftede haller, flere porte i terræn- og rampehøjde samt gode tilkørsels- og manøvrearealer. Derudover findes showroom- og værkstedsområder, moderne kontorer med glaspartier, mødelokaler, kantine og tekøkken. Mezzaninarealer giver ekstra plads til lager eller arbejdsstationer.

Ejendommen er beliggende i Danmarks logistiske knudepunkt - kun 2 minutters kørsel fra motorvej E20 (TSA 61) - med nem adgang til hele landet, havn, jernbane og Billund Lufthavn. Et oplagt valg for virksomheder, der ønsker en præsentabel og funktionel base i et vækstområde.

Læs mere

Vil du vide mere?

Jon Stefansen

jon@nordicals.dk

+4542737400

Birkemose Allé 37A, 1. sal, 6000 Kolding

+4576310160

6000@nordicals.dk

Besøg vores mæglerside

Lignende ejendomme

Til top