Teknikervej 20, Erritsø
7000 Fredericia

Sagsnr. 31136

Ejendomstype

Etageareal

Energiklasse

363 m²

B

Årlig leje

Leje pr. m²

Depositum

Årlig driftsudgift

Årlig driftsudgift pr. m²

162.987 kr.

449 kr.

81.494 kr.

13.068 kr.

36 kr.

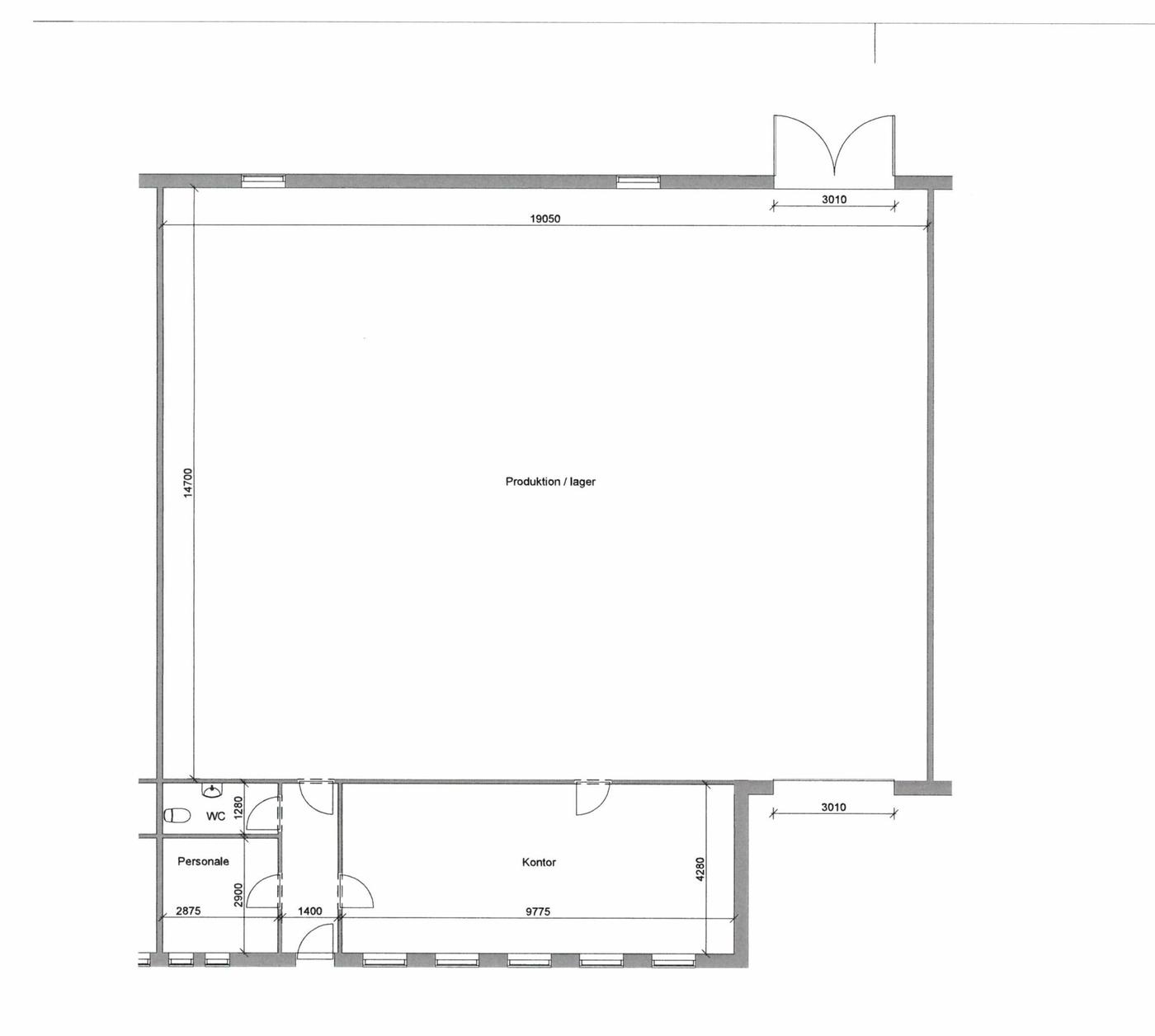
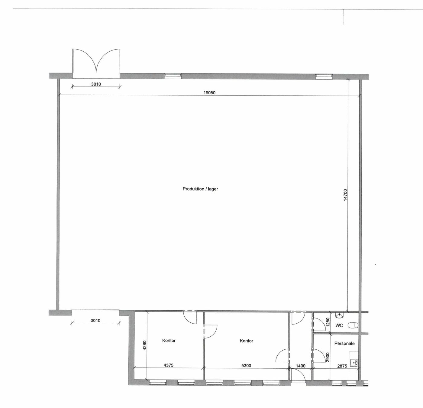
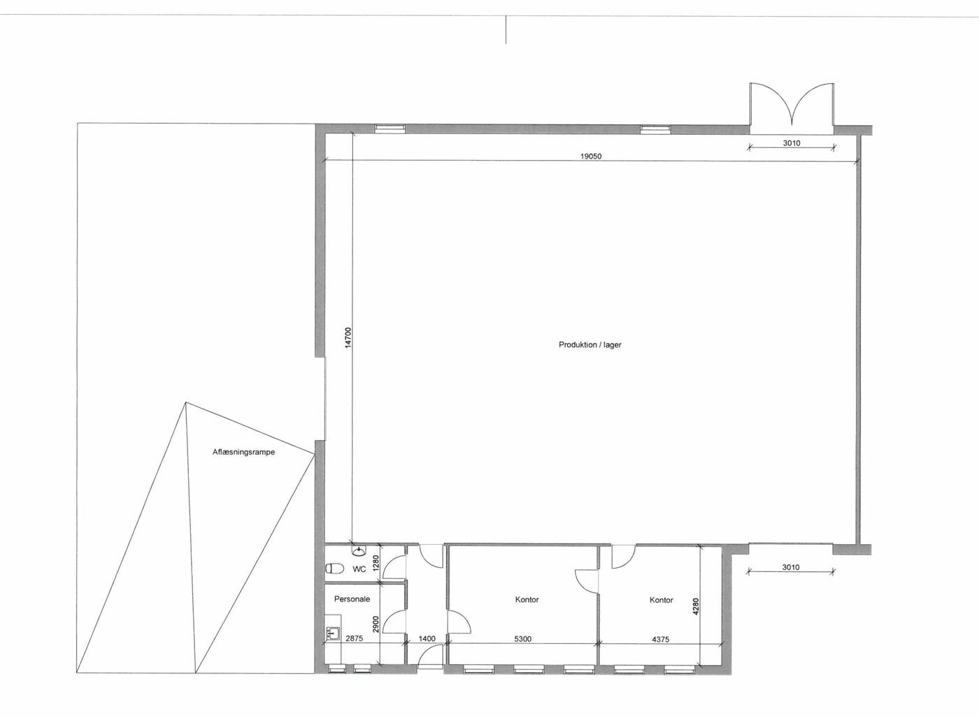
Kontor/lagerlejemål tæt på motorvej

Teknikervej er et velfungerende erhvervsområde lige ved motorvej E20 og nær Fredericia by.

Lejemålet består af kontor med tilhørende toilet samt bade- og omklædningsrum. Hertil kommer veldisponeret lager/montage.

Der er aluport ind til hvert søjlefri lager, hvor der er loft til kip, malet betongulv, træbetonlofter og kalorifere-blæsere.

Lejemålet er velegnet for mange virksomheder, som f.eks.:

- Handels- og engrosvirksomheder
- Webshop, IT eller anden elektronik
- Håndværksvirksomheder
- Virksomheder indenfor, skilte og autofolie, rengøring, vagt og sikringsudstyr m.v.

Eller mange andre virksomheder, der har behov for let adgang til Fredericia, Middelfart eller andre byer via motorvej E20.

Læs mere

Vil du vide mere?

Peter Aagaard Nielsen

pan@nordicals.dk

+45 2347 4476

Kongensgade 27, 1. sal, 5000 Odense C

+4566138060

5000@nordicals.dk

Besøg vores mæglerside

Lignende ejendomme

Til top