Vendersgade 26E, st. tv.
7000 Fredericia

Sagsnr. 206092

Ejendomstype

Etageareal

Energiklasse

150 m²

F

Årlig leje

Leje pr. m²

Depositum

150.000 kr.

1.000 kr.

75.000 kr.

Pænt lejemål i Fredericia centrum

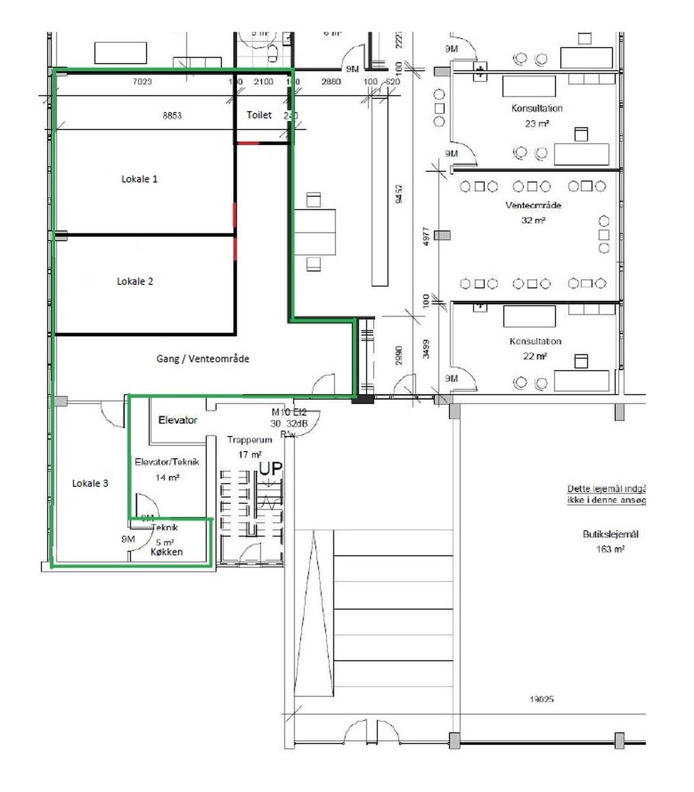
Kontorlejemål beliggende i centrum af Fredericia, i større hjørneejendom med flere kontorlejemål, klinikker samt butikslejemål i stueplan.
Lejemålet er beliggende i stuen.

Lejemålet samt bygning er løbende blevet renoveret, hvilket gør at lejemålet fremstår original og flot stand med gedigne kvalitetsmaterialer.

Bygningen, hvori lejemålet er beliggende, er placeret centralt mellem stor parkeringsplads og gågade.

I lejemålet bliver I nabo til et stort moderne lægehus.

Ejendommen har blandt andet tidligere været domicil for en stor bank, hvilket er årsagen til det gode materialevalg samt fine detaljer i bygningen.

Her er mulighed for parkering bag ejendommen.

Læs mere

Vil du vide mere?

Jon Stefansen

jon@nordicals.dk

+4542737400

Birkemose Allé 37A, 1. sal, 6000 Kolding

+4576310160

6000@nordicals.dk

Besøg vores mæglerside

Lignende ejendomme

Til top