Odelsgade 32, st.
7130 Juelsminde

Sagsnr. 116193

Ejendomstype

Etageareal

Energiklasse

88 m²

D

Årlig leje

Leje pr. m²

Depositum

Årlig driftsudgift

Årlig driftsudgift pr. m²

105.600 kr.

1.200 kr.

26.400 kr.

11.000 kr.

125 kr.

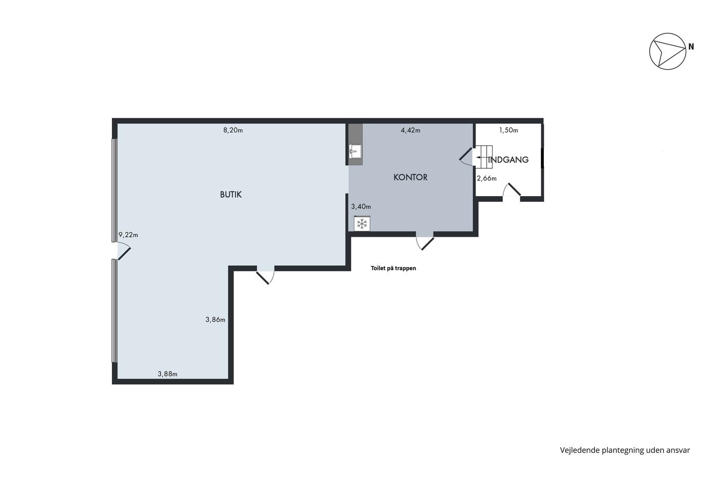
Butikslejemål - velbeliggende i Juelsminde midtby

Nyistandsat lejemål på 88 m² med beliggenhed på byens hovedgade og med helt ny flot facade med indgangsparti i midten og udstillingsvinduer i begge sider.

Meget velbeliggende i Juelsminde midtby sammen med byens øvrige butikker, herunder Normal, Friis Optik, Titra Dekor m.v.. Desuden tæt ved havnen og stranden.

Lejemålet er indrettet med nyt butikslokale og herudover baglokaler med tekøkken, kontor og toilet. Der er mulighed for lejer for medbestemmelse ved indretning af butikken.

Der er parkering foran butikken samt rigtig gode parkeringspladser ved Rema 1000 på bagsiden af lejemålet.

Læs mere

Vil du vide mere?

Bo Pinholt

bpi@nordicals.dk

+4523402909

Vitus Berings Plads 6, 8700 Horsens

+4576282610

8700@nordicals.dk

Besøg vores mæglerside

Lignende ejendomme

Til top