Erhvervsparken 17, Ølholm
7160 Tørring

Sagsnr. 1163471

Ejendomstype

Etageareal

Grund

910 m²

3.666 m²

Kontantpris

Købspris pr. m²

Årlig driftsudgift

Årlig driftsudgift pr. m²

6.250.000 kr.

6.868 kr.

24.284 kr.

27 kr.

Nyopført lagerbygning med kontorafsnit

Super beliggenhed få meter fra motorvejstilslutning. Der er ca. 2 km til Tørring, ca. 20 km til motorvejsafkørsel Vejle Nord, ca. 16 km til motorvejsafkørsel Horsens Syd og ca. 55 km til Herning Messecenter.

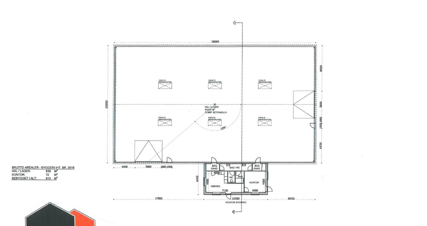
Bebygget areal 910 m², heraf 72 m² kontor/velfærd.

Hal på 838 m² med loftshøjde fra ca. 4,75 m i siderne til ca. 9 m i kip. Der er 2 ca. 5 m brede porte.

Der er direkte adgang fra hal til kontorafsnit med bad/toilet, kontor og personalerum med thekøkken.

Hal fremgår med ydervægge i koksgrå sandwich paneler. Kontorafsnit er opført i mursten. Eternittag.

Der bliver etableret 5 parkeringspladser, heraf 1 handicapvenlig p-plads, i forbindelse med bygningen.

Ejendommen udgør del af p.t. samlet ejendom med et grundareal på 11.000 m², hvor der anlægges ca. 5.000 m² befæstede arealer og ca. 560 m² græsareal.

Der vil i forbindelse med en handel ske udstykning, således at der bliver 3 særskilte ejendomme. Hvis arealet fordeles ligeligt på de 3 parceller vil fremtidigt grundareal således udgøre ca. 3.666 m² pr. parcel. Arealfordeling vil dog skulle aftales nærmere og hensigtsmæssigt.

På den p.t. samlede ejendom er opført yderligere en bygning lig nærværende, som ligeledes kan erhverves. Der vil tillige blive opført en 3. enhed lig de 2 nuværende.

Læs mere

Vil du vide mere?

Jesper Reinholt Düring

jrd@nordicals.dk

+45 2311 9944

Vitus Berings Plads 6, 8700 Horsens

+4576282610

8700@nordicals.dk

Besøg vores mæglerside

Lignende ejendomme

Til top