Birk Centerpark 999
7400 Herning

Sagsnr. 42569612

Ejendomstype

Etageareal

Energiklasse

1.133 m²

C

Årlig leje

Leje pr. m²

Depositum

Årlig driftsudgift

Årlig driftsudgift pr. m²

439.535 kr.

388 kr.

109.884 kr.

75.300 kr.

66 kr.

Kontor- og lagerlejemål med stort potentiale

Et lejemål med masser af muligheder

I dette attraktive erhvervsområde i Herning kan du slå flere fluer med et smæk, hvis du søger en kombination af kontor-og lagerlokaler, der samtidigt er beliggende i et meget eftertragtet erhvervsområde i Herning, hvor specielt tilkørselsforhold for både kunder og personale er i top.

Der er tale om en markant og præsentabel kontorbygning, som fremstår velholdt og præsentabel, og dermed et lejemål der henvender sig til mange forskellige typer virksomheder, der har behov for en kombineret kontor- og lagerfunktion.

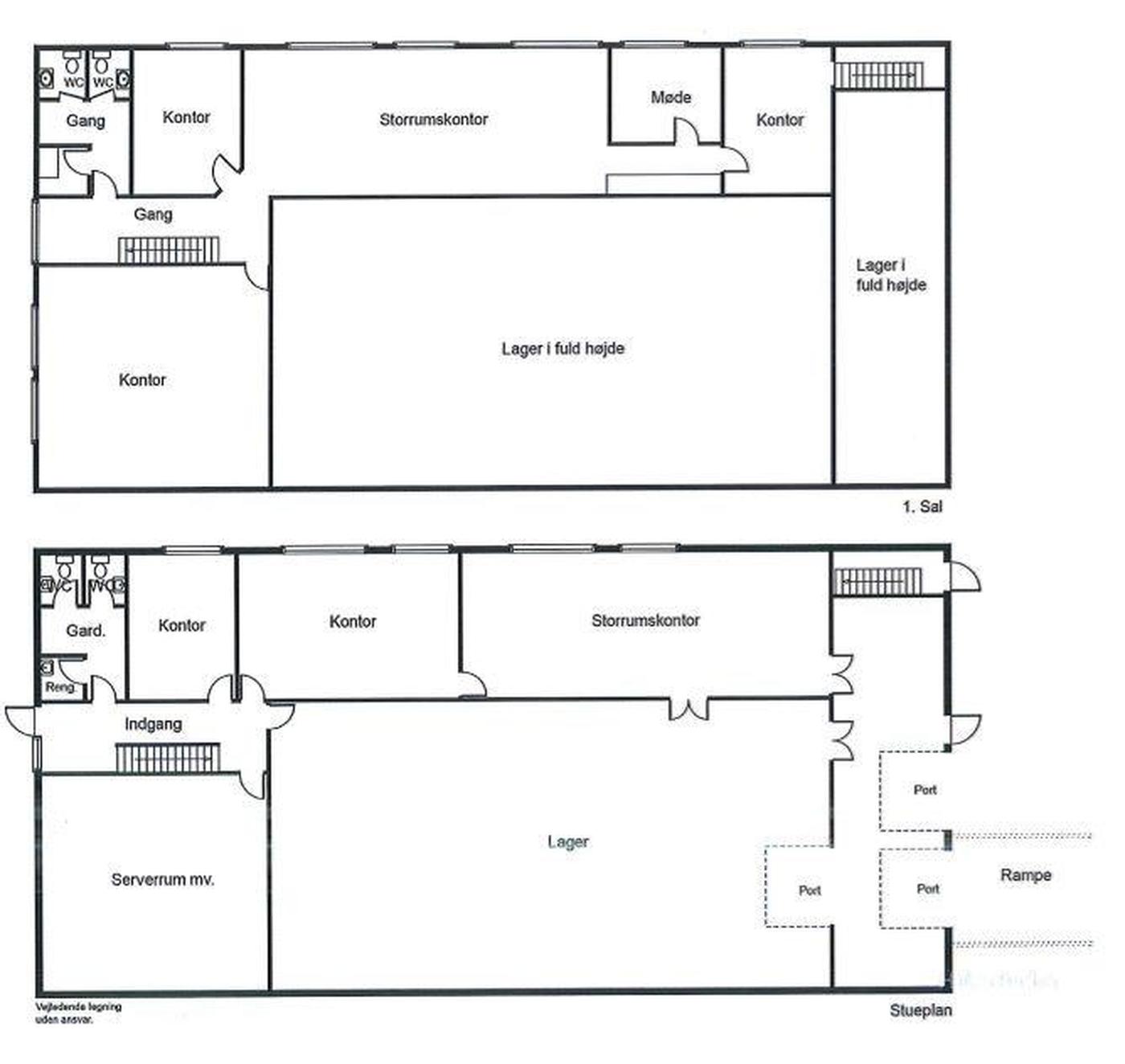
Kontoret udgør et areal fordelt på 2 etager, som rummer ca. 50 arbejdsstationer (anslået). Dertil kommer personalefaciliteter, teknik og serverrum. Det skal i den forbindelse fremhæves, at lokalerne er lyse og arbejdsvenlige, og at udlejer i forbindelse med udlejningen, vil sørge for etablering af ny gulvbelægning i kontordelen samt sørge for maling heraf tilsvarende. Som prikken over i´et vil der endvidere blive etableret et mindre køkkenområde efter nærmere aftale med lejer.

Lagerdelen udgør ca. halvdelen af det bebyggede areal, så til lagerformål er det overvejende ekstra højdemeter man får, og ikke lager fordelt på 2 etager. Der er 2 porte i bygningen - heraf én med rampe og natboks.

Ejendommen er opvarmet via fjernvarme.

Så alt i alt, er her en god mulighed for at danne nogle gode rammer for dig og din virksomhed i årene frem, og vi kan klart anbefale en personlig fremvisning, hvor du kan opleve mulighederne og kvaliteterne ved lejemålet på egen hånd.

P-plads:

Der følger egne parkeringspladser til lejemålet og dets medarbejdere.

Udenomsarealer:

Der er mulighed for råderet over nærmere aftalt udenomsareal.

Område:

Ejendommen ligger mod den trafikerede Silkeborgvej, med meget kort afstand til både til- og frakørsler til Midtjyske Motorvej og Aarhus Motorvejen. Der er ligeledes kort afstand til busstoppesteder samt få minutters gang til Birk Centerpark Station, hvor togene kører mod Aarhus eller Herning.

Med sin placering midt i Jylland og et veludviklet motorvejsnet til og fra byen, er der kort transporttid til Aarhus, Viborg, Silkeborg, Vejle og Holstebro.

Læs mere

Vil du vide mere?

Kasper Palnov

kap@nordicals.dk

+45 2988 4134

Dalgas Plads 6, 1, 7400 Herning

+4570254052

7400@nordicals.dk

Besøg vores mæglerside

Lignende ejendomme

Til top