Bredgade 25, st.
7400 Herning

Sagsnr. 42666580

Ejendomstype

Etageareal

Energiklasse

231 m²

D

Årlig leje

Leje pr. m²

Depositum

346.500 kr.

1.500 kr.

173.250 kr.

Butikslokaler i hjertet af Herning

På en af Hernings mest eftertragtede beliggenheder i den centrale del af gågaden, har du mulighed for at overtage de nuværende butiks- og fødevarelokaler, der tidligere har dannet rammerne omkring mange års slagterbutik i Hernings gågade.

Lejemålet fremstår mere eller mindre indflytningsklart, og er således lige til at gå til, afhængigt af dine ønsker og planer og åbner således op for mange forskellige slags aktiviteter indenfor traditionel detailbutik til special- eller fødevarebutik.

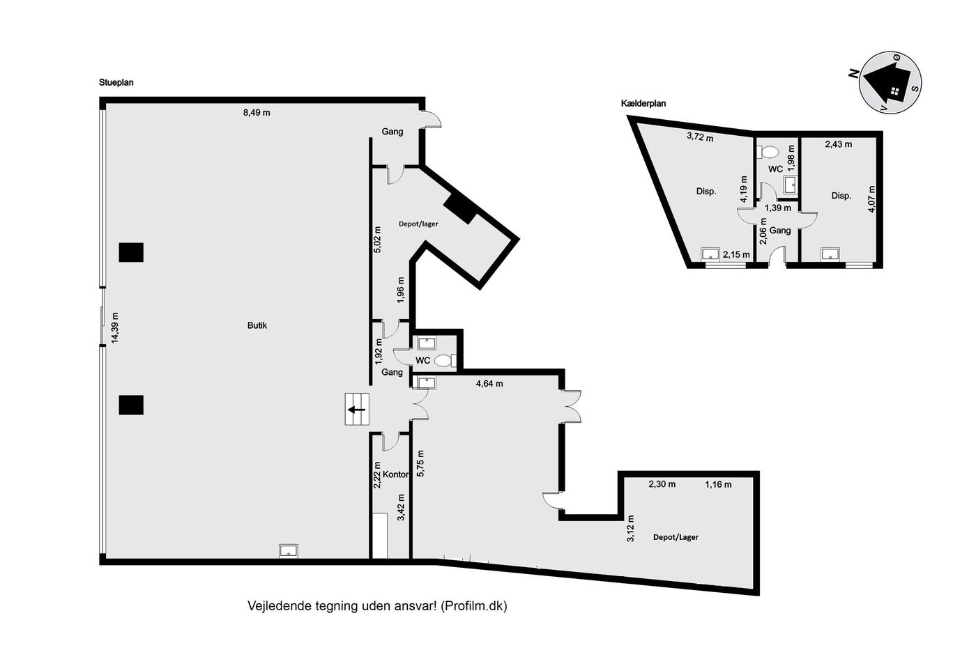
Indretning:
Lejemålet er på i alt 231 m² og rummer stort butikslokale med facade- og indgangsparti ud til gågaden med gode udstillings- og eksponeringsmuligheder.

I tilknytning til butikslokalet er der forrum med særskilt personaleindgang, indgang til særskilt lager/-opbevaringsområde, mindre kontor, toilet samt baglokale med vareindgang og tilhørende opbevaringsrum.

Hertil kommer kælderrum til midlertidige personalefaciliteter.


Overtagelse:
Lejemålet overtages iht. nærmere aftale, og overtages i ryddelig stand.


Udenomsarealer:
Der er i tilknytning til lejemålet mulighed for at benytte udeserveringsområde i gågaden efter nærmere aftale, hvortil der foreligger aftale om "Stadeplads med Herning Kommune", der skal fornys ved lejerskifte.


Område:
Ejendommen er beliggende i gågadens mest centrale del omkring Citypassagen, og dermed en optimal beliggenhed i form af tilgængelighed og eksponeringsmuligheder for de mange forbipasserende. I nærområdet finder du en lang række forskellige detailbutikker, der spænder fra Føtex, Frellsens Chokolade, Normal, Sport24, Løvstad Foto, Joe & the juice, Kop & Kande for blot at nævnte nogle af de forskellige repræsenterede detailbrancher i nærområdet.


P-forhold:
Der medfølger 2 stk. p-pladser til lejemålet.

Der er herudover kort afstand til gode parkeringsmuligheder ved P-arealerne omkring Dalgas Plads og parkeringshuset i Dalgas Hus. Tilsvarende er der kort afstand til offentlige transportmidler i form af bybusser ligesom banegården og Banegårdspladsen, der alt sammen ligger i gå-afstand fra gågaden og butikken.

Læs mere

Vil du vide mere?

Kasper Palnov

kap@nordicals.dk

+45 2988 4134

Dalgas Plads 6, 1, 7400 Herning

+4570254052

7400@nordicals.dk

Besøg vores mæglerside

Lignende ejendomme

Til top