Hammershusvej 12F og 12E
7400 Herning

Sagsnr. 42652720

Ejendomstype

Etageareal

Energiklasse

879 m²

B

Årlig leje

Leje pr. m²

Depositum

Årlig driftsudgift

Årlig driftsudgift pr. m²

288.550 kr.

328 kr.

77.045 kr.

35.160 kr.

40 kr.

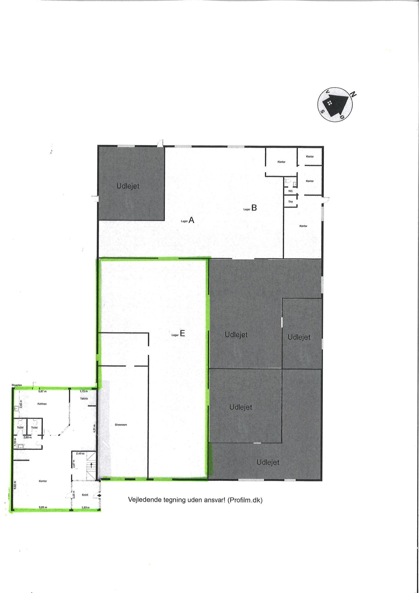
Velindrettede kontor- og administrationslokaler

Velindrettede kontor- og administrationslokaler med lager og showroom
Lejemålet er indrettet med entre samt kontor- og administrationslokaler fordelt i 2 plan. Stueplan er indrettet med åbent kontormiljø, teknikrum, 2 toiletter, frokostrum med tilhørende lyst the-køkken.

1. sal er indrettet med et stort lokale, som kan indrettes til showroom, åbent kontormiljø eller mødelokale. Der er masser af lysindfald fra de store vinduesparter.

Endvidere har lejemålet en store lager/produktionshal med adgang til et præsentabelt showroom. Der er adgang til lageret via 1 port i niveau.

Lejemålet fremstår lyst og tidssvarende og henvender sig til en bred målgruppe indenfor kontor- og administration og liberale erhverv, som søger indflytningsklare lokaler med gode parkerings- og tilkørselsforhold til centrum samt motorvejsnettet.

Parkeringsforhold:
Der er gode parkeringsfaciliteter i tilknytning til lejemålet foran bygningen


Område:
Ejendommen er beliggende i attraktivt erhvervsområde i Hernings nordlige del med forholdsvis let adgang til motorvejsnettet omkring Herning samt den centrale del af Herning via Gullestrupvej.

Der er ligeledes gode muligheder for offentlig transport i form af busstoppested tæt ved lejemålet.


Overtagelse:
Lejemålet overtages iht. nærmere aftale.

De nævnte priser er gældende ved overtagelse af lejemålet, uden krav om yderligere særindretninger fra udlejers side, men udlejer er naturligvis altid behjælpelig, såfremt der er ønsker med hensyn til indretning af lejemålet.

Læs mere

Vil du vide mere?

Kasper Palnov

kap@nordicals.dk

+45 2988 4134

Dalgas Plads 6, 1, 7400 Herning

+4570254052

7400@nordicals.dk

Besøg vores mæglerside

Lignende ejendomme

Til top