Industrivej 7
7490 Aulum

Sagsnr. 23900

Ejendomstype

Etageareal

Grund

Energiklasse

1.100 m²

2.265 m²

C

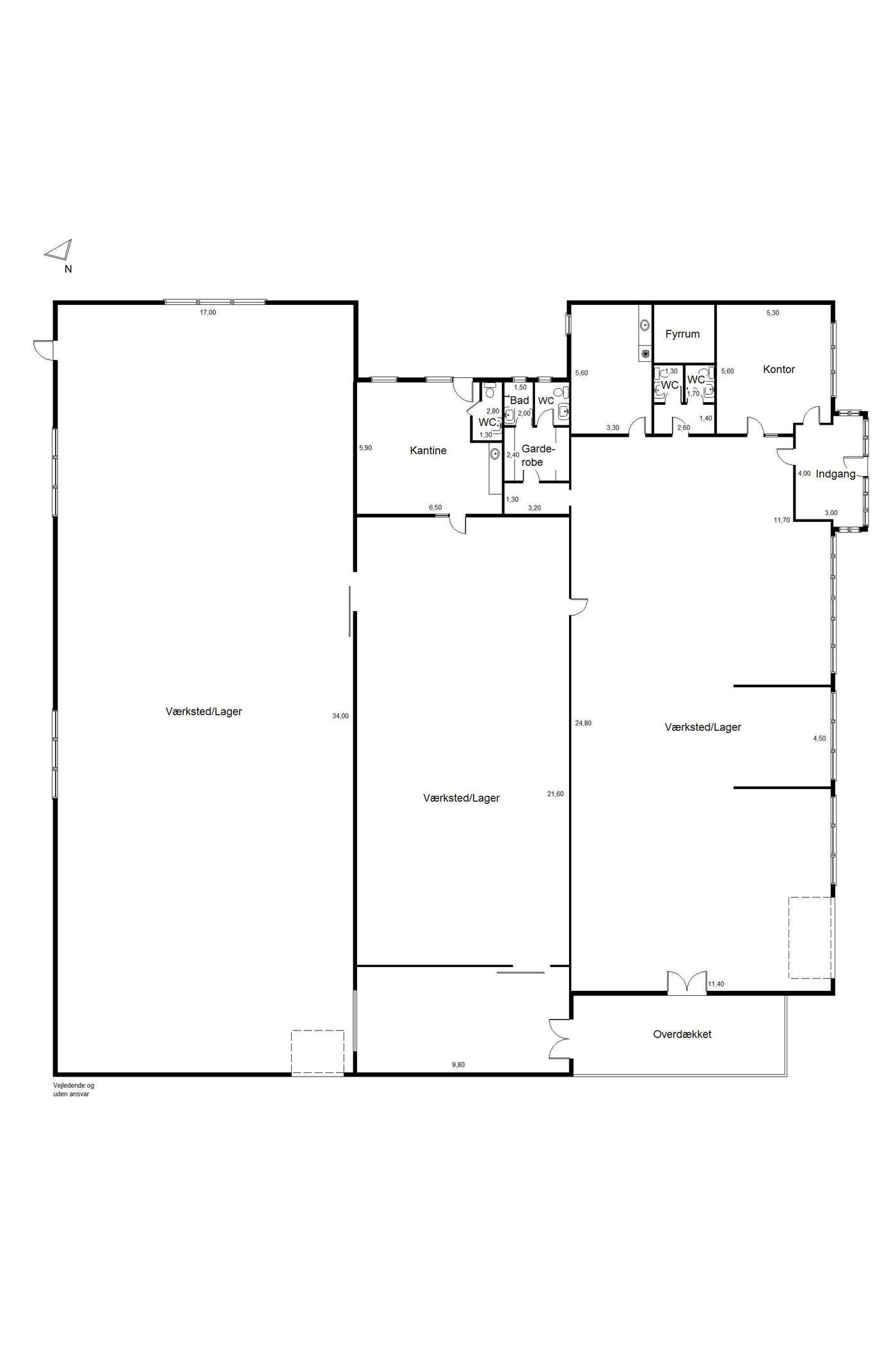
Pæn bygning til håndværk og lagervirksomhed

Ejendommen er meget velegnet til håndværksvirksomhed eller lager, men vil også kunne benyttes til udlejning m.m. Køber skal være opmærksom på anvendelse i lokalplanen. Undersøgelsespligten for evt. ændret anvendelse påhviler alene køber.

Pæn ejendom opført i henholdsvis 1971, 1974 og 1982 i gule sten, termovinduer og tag med henholdsvis eternit og pap.

Der er 2 separate indgangspartier, hvilket giver en stor fleksibilitet og mulighed for flere lejemål.

Der er ligeledes separate toiletter samt kantinefaciliteter.

De 3 haller opvarmes med oliefyr.

Ejendommen er beliggende centralt i Aulum og ikke langt fra motorvejen.

Der er gode parkerings- og tilkørselsforhold.

Læs mere

Denne ejendom er solgt

Vil du vide mere?

Lars Taulbjerg

LTA@nordicals.dk

+4524247160

Helgolandsgade 13, 7500 Holstebro

+4597404200

7500@nordicals.dk

Besøg vores mæglerside

Lignende ejendomme

Til top