Østergade 5
7500 Holstebro

Sagsnr. 23774

Ejendomstype

Etageareal

Energiklasse

726 m²

E

Årlig leje

Leje pr. m²

Depositum

Årlig driftsudgift

Årlig driftsudgift pr. m²

371.530 kr.

512 kr.

185.765 kr.

57.615 kr.

79 kr.

Stort butikslejemål i Østergade

?Dette attraktive lejemål ligger ideelt placeret på den livlige gågade i Holstebro, kun 50 meter fra byens pulserende midtpunkt, Store Torv.

Med beliggenheden i hjertet af Holstebro byder dette lejemål på et væld af muligheder, med dens store synlighed og centrale placering.

De store facadevinduer tilbyder en attraktiv udstillingsmulighed, der kan fange forbipasserendes opmærksomhed.

Området omkring Store Torv er kendt for sit rige handelsliv og byder på en bred vifte af butikker samt forskellige spisesteder og caféer. Med denne beliggenhed er du sikret et konstant flow af mennesker, hvilket sikrer en levende og dynamisk atmosfære.

Der er ligeledes parkeringsmuligheder kun 200 meter fra lejemålet.?

Lejemålet har senest huset Søstrene Grene.
?
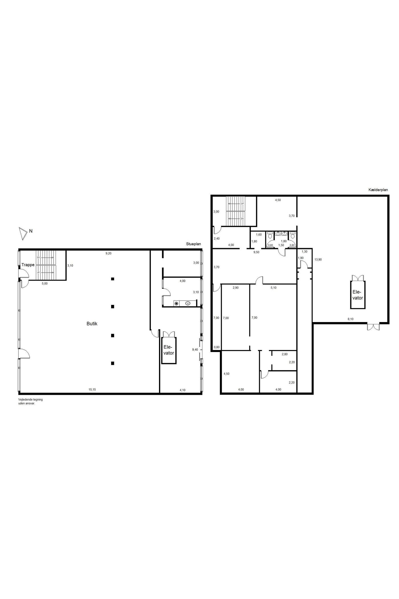
Der er i alt 334 m² i gadeplan samt 392 m² i kælderen.

De 334 m² er i dag indrettet med stort butiksareal, opdelt med let skillevæg til mindre baglokale / lager, kontor, personalefaciliteter og udgang til gården med parkering. Fra baglokalet er der også vareelevator til kælderen.

Kælderen består af forskellige rum i varierende størrelser. Kælderen fremstår med god loftshøjde og kan fint bruges til opbevaring.

Der er en god bred facade til lejemålet, hvilket giver god mulighed for profilering. Lejemålet ligger nabo til Kop & Kande, Danske Bank, flere optikere og specialforretninger - og tæt på område med restauranter o. lign.

Læs mere

Vil du vide mere?

Lone Futtrup Sørensen

LFS@nordicals.dk

+4521466336

Helgolandsgade 13, 7500 Holstebro

+4597404200

7500@nordicals.dk

Besøg vores mæglerside

Lignende ejendomme

Til top