Bisgården 2
7500 Holstebro

Sagsnr. 24728

Ejendomstype

Etageareal

Grund

Energiklasse

24 m²

2.990 m²

E

Årlig leje

Leje pr. m²

Depositum

39.600 kr.

1.650 kr.

9.900 kr.

Kontorhotel - ledige lokaler i Holstebro bymidte

Lejemålene er beliggende i den vestlige del af Holstebro og tilbyder nyrenoverede kontorlokaler.

Lokalerne varierer i størrelse og kan rumme mellem 2-6 personer pr. rum, alt afhængigt af den enkeltes behov.

Alle kontorer er optimeret med et godt indeklima og moderne arbejdsforhold.

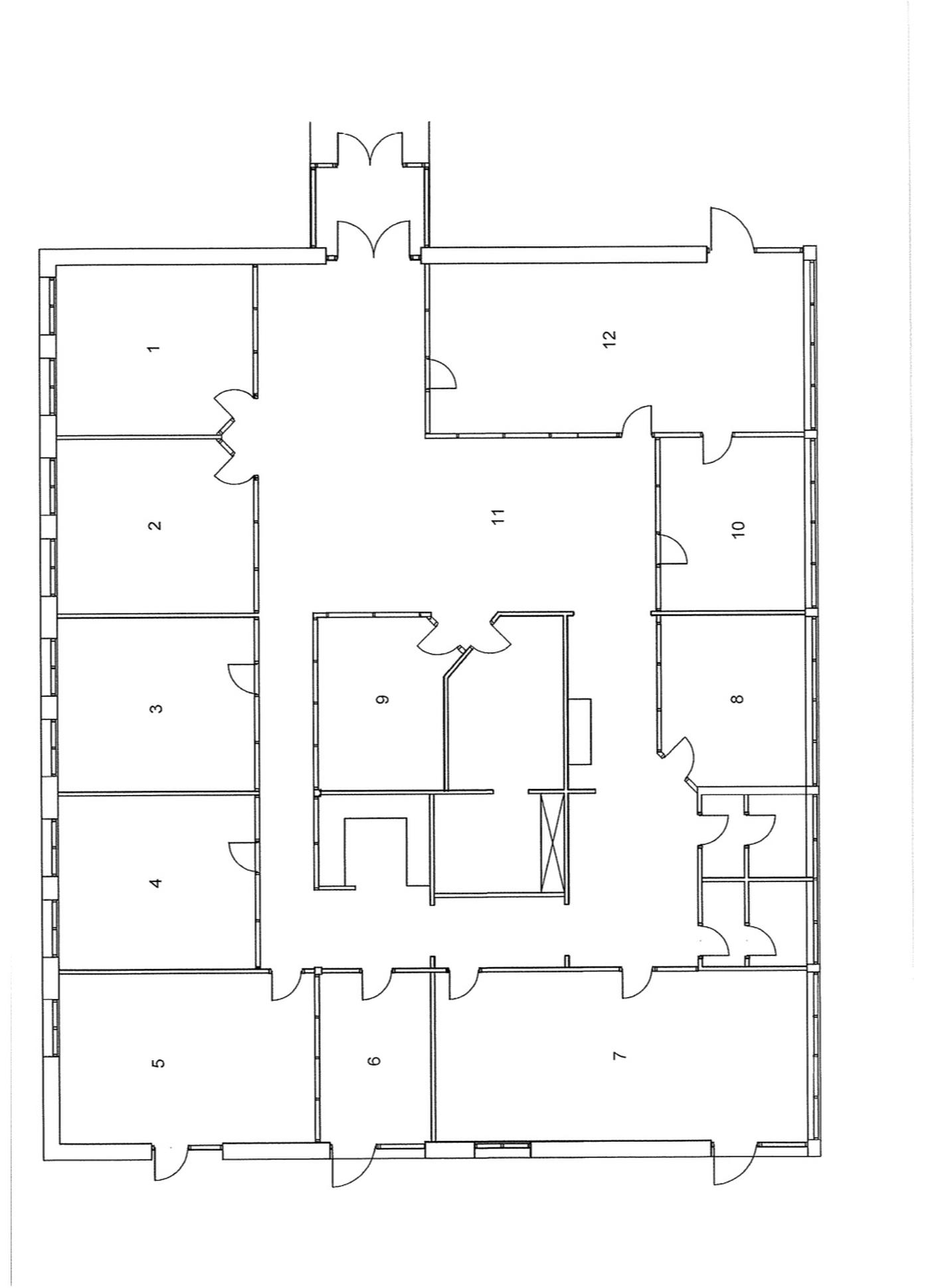
Der er pt. 4 ledige kontorer, som kan lejes samlet eller hver for sig, alt afhængig af behovet.
Der er mulighed for at leje kontornr. 1, 2, 4 og 5, jf. plantegning.

Kontor nr.:
1 - 24 m² - årlige leje 39.600 kr., incl. forbrug og fællesudgifter.
2 - 24 m² - årlige leje 39.600 kr., incl. forbrug og fællesudgifter.
4 - 24 m² - årlige leje 39.600 kr., incl. forbrug og fællesudgufter.
5 - 32 m² - årlige leje 52.800 kr., incl. forbrug og fællesudgifter.

Som lejer i Bisgaarden får du adgang til flere fælles faciliteter, herunder moderne toiletter samt et fuldt udstyret køkken. Kontorfællesskabet rummer desuden et printerrum samt et lille værksted, ideelt til mindre praktiske projekter eller prøveopsætninger.
Herudover er der tilknyttet et stort fællesrum, som kan anvendes til større møder o.l.

Der er lagt op til et socialt miljø, hvor virksomheder kan netværke internt.

Lejemål er beliggende 5 km fra motorvejen, 2 km til banegården / busterminal samt 1 km til Holstebro centrum.

Læs mere

Vil du vide mere?

Kasper Bergenhammer Andersen

KBA@nordicals.dk

+4523102919

Helgolandsgade 13, 7500 Holstebro

+4597404200

7500@nordicals.dk

Besøg vores mæglerside

Lignende ejendomme

Til top