Bisgårdgade 11, 2.
7500 Holstebro

Sagsnr. 24479

Ejendomstype

Etageareal

Energiklasse

327 m²

C

Årlig leje

Leje pr. m²

Depositum

Årlig driftsudgift

Årlig driftsudgift pr. m²

130.840 kr.

400 kr.

65.420 kr.

22.785 kr.

70 kr.

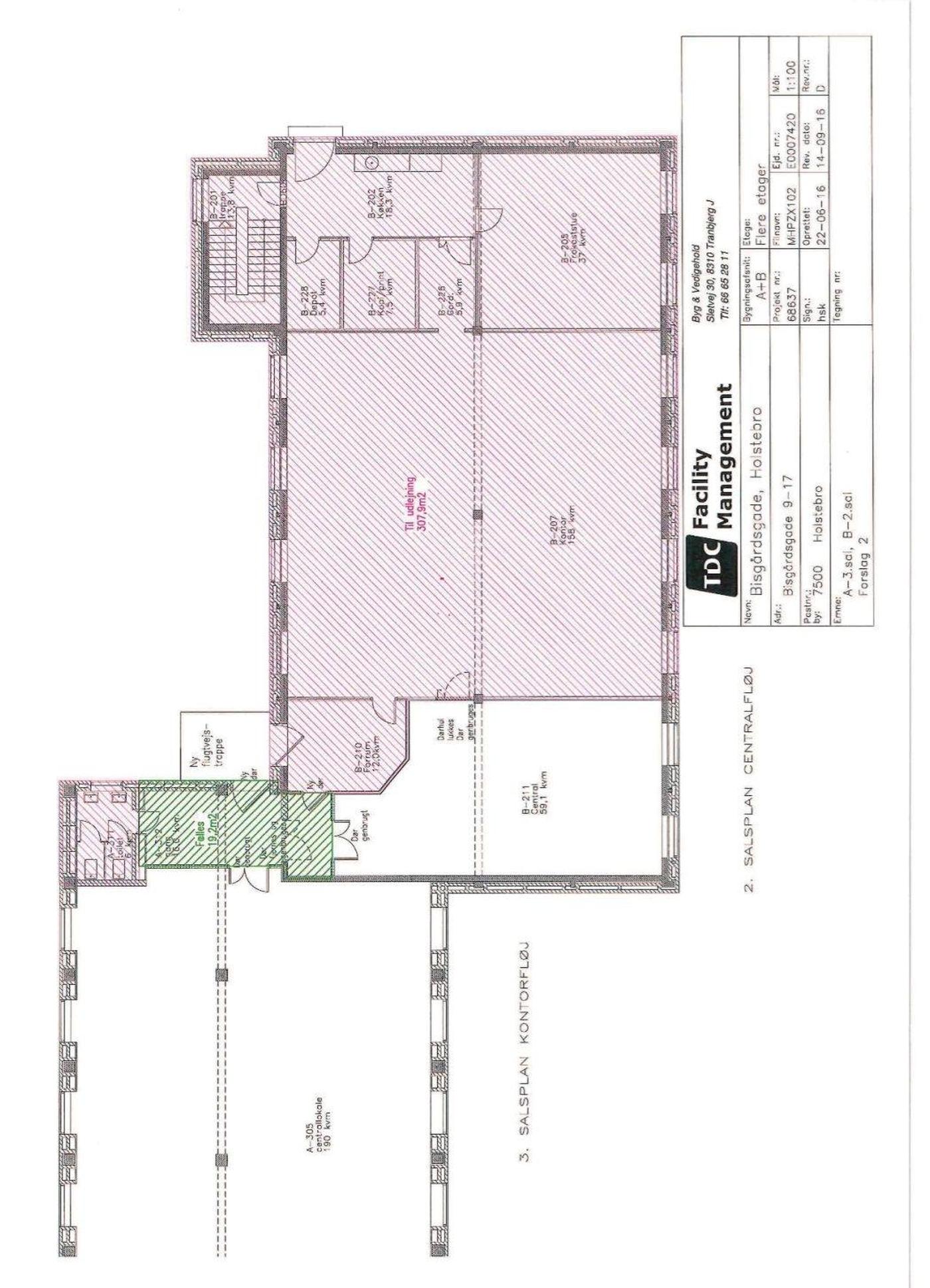
Fremlejemål - tæt ved gågaden.

Erhvervslejemål beliggende i centrum af Holstebro, tæt på gågade samt med gode tilkørselsforhold. Den øvrige del af ejendommen benyttes til undervisning samt af TDC til telefoncentral, administration, kontor m.m.

Lejemålet vil være velegnet til liberalt erhverv, kontor, klinik, forening eller lignende.

Lejemålet består af kontorer, tekøkken, teknikrum m.m. samt fællesrum, herunder toiletfaciliteter og gangareal.

Lokalerne har god synlighed mod Bisgårdgade, som er ret trafikeret.

Parkeringspladser kan tillejes.

Lejemålet er beliggende på 2 sal.

Ønskes mere plads på 2. sal er der et ledigt stort kontorareal på 281 m² (se sagsnummer 24476).

Der er også mulighed for leje af kælderlokale til lager, arkiv eller lignende. Herudover ledige kontorlokaler på 1. sal på 244 m² (se sagsnr. 24480).

Læs mere

Vil du vide mere?

Lone Futtrup Sørensen

LFS@nordicals.dk

+4521466336

Helgolandsgade 13, 7500 Holstebro

+4597404200

7500@nordicals.dk

Besøg vores mæglerside

Lignende ejendomme

Til top