Den Røde Plads 9
7500 Holstebro

Sagsnr. 24341

Ejendomstype

Etageareal

Energiklasse

318 m²

C

Centralt beliggende lokaler til restaurant eller lignende

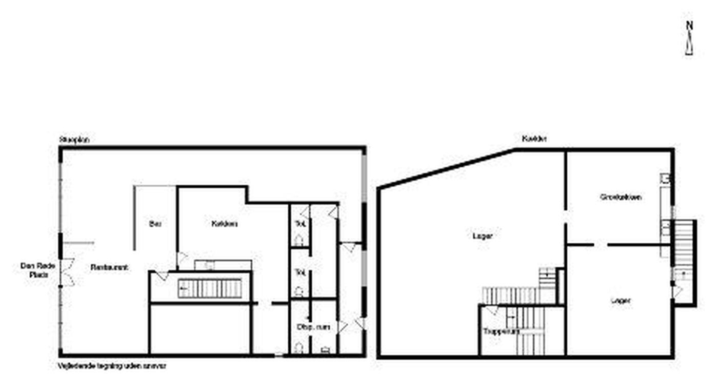
Lejemålet er på i alt 318 m² og er beliggende på hyggelig placering på Den Røde Plads centralt i Holstebro - tæt på gågademiljøet, Musikteatret, Hotel Royal, flere restauranter og spændende specialbutikker - og ikke mindst det hyggelige miljø ved Storåen.

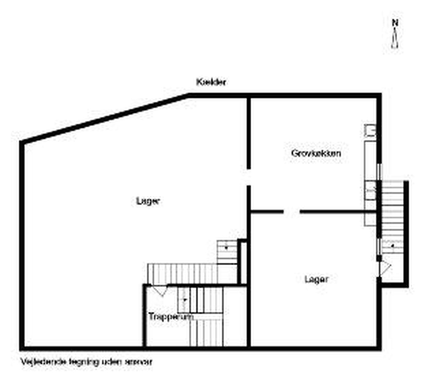
Lejemålet har et tinglyst areal på i alt 314 m², hvoraf der er 160 m² i gadeplan, der for nylig er blevet stilfuldt renoveret og indrettet som restaurationslokale med toiletfaciliteter og køkken med bl.a. udsugning (diverse hårde hvidevarer kan evt. købes). Herudover er der god kælder på ca. 158 m², der er indrettet med grovkøkken samt med god lagerplads.

Lejemålet er klar til overtagelse efter nærmere aftale.

Læs mere

Denne ejendom er udlejet

Vil du vide mere?

Lone Futtrup Sørensen

LFS@nordicals.dk

+4521466336

Helgolandsgade 13, 7500 Holstebro

+4597404200

7500@nordicals.dk

Besøg vores mæglerside

Lignende ejendomme

Til top