Lundholmvej 43
7500 Holstebro

Sagsnr. 23908

Ejendomstype

Etageareal

Grund

2.865 m²

5.766 m²

Spændende lager- / produktionsejendom

Ejendommen er meget velegnet til produktion, men vil også kunne benyttes til lager m.m. Køber skal være opmærksom på anvendelse i lokalplanen. Undersøgelsespligten for ændret anvendelse påhviler alene køber.

Ejendommen er beliggende i et godt erhvervsområde i den nord/østlige del af byen, med gode tilkørselsforhold og ikke langt fra motorvejen.

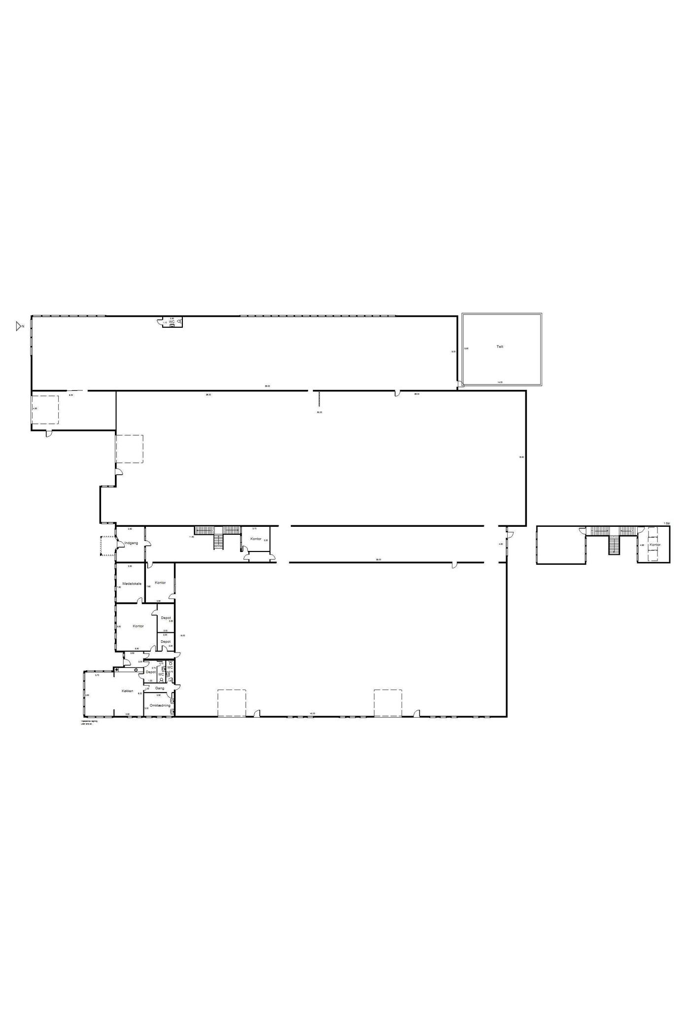
Ejendommen er opført af flere omgange og fremtræder med varierende lofthøjder og taghældninger.

Ejendommen fremtræder i sit ydre spændende, men trænger generelt til vedligeholdelse.

Opført med vandskuret/betonelement/glas facade og med tag med pap/plader.

Indrettet med 4 produktionshaller, hvor den ene er nutidig med meget god lofthøjde, 1 regulær hal med lav lofthøjde, 1 smal hal med god lofthøjde og skrå lofter samt 1 sidste hal med varierende lofthøjde og adgang til garage.

Bag bygningerne er der desuden opstillet et telt.

Derudover et spændende kontormiljø med glastag og mødelokaler på 1. sal samt diverse kontorer, personalefaciliteter m.m.

Der er adgang via 2 gode port direkte fra Lundholmvej samt 2 mindre porte på siden af bygningen.

Ejendommen opvarmes med naturgas samt oliefyr.

Der er 4 små bygninger som er opført uden tilladelse fra Holstebro Kommune.

Ejendommen er et konkursbo og sælges derfor med ansvarsfraskrivelse.

Læs mere

Denne ejendom er solgt

Vil du vide mere?

Lars Taulbjerg

LTA@nordicals.dk

+4524247160

Helgolandsgade 13, 7500 Holstebro

+4597404200

7500@nordicals.dk

Besøg vores mæglerside

Lignende ejendomme

Til top