Lundholmvej 55
7500 Holstebro

Sagsnr. 24066

Ejendomstype

Etageareal

Grund

Energiklasse

1.657 m²

8.268 m²

E

Produktions-/logistikejendom i Holstebro

Rigtig god logistik-/produktionsejendom i Holstebro.

Ejendommen er opført i 1974 i gule sten og med eternittag og i 1985 om-/tilbygget.

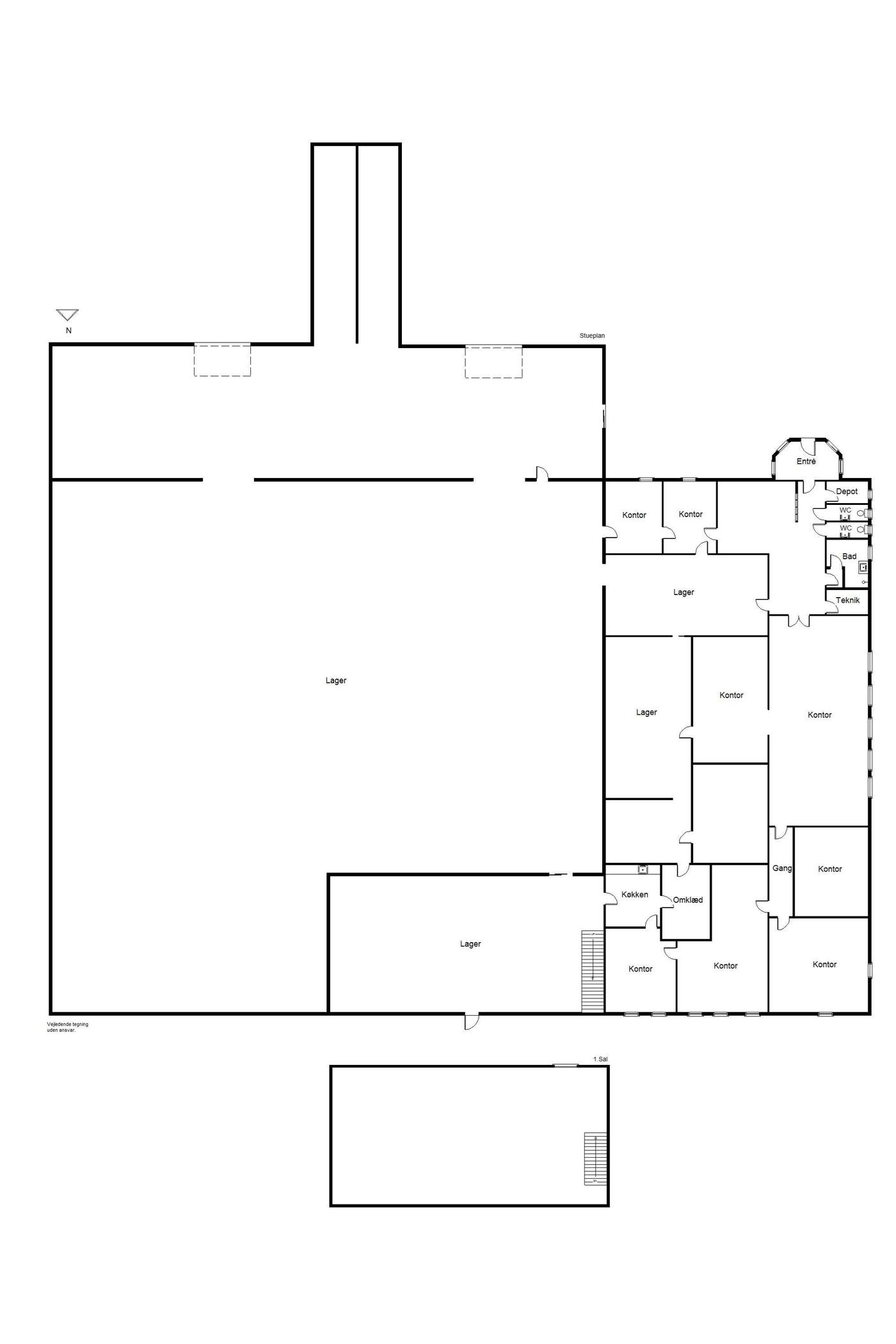
Der er ialt 1.657 m² bebygget erhvervsareal, der består af 2 gode haller med god loftshøjde. Hallerne er sammenbyggede. I den ene hal er der for enden etableret et højlager.
Foran hallerne er etableret en læsserampeområde (uisoleret stålpladebygning).
Der er endvidere en del gode kontorer i varierende størrelser, depotrum, frokostrum m.v.

Grunden er på 8.268 m², heraf 444 m² vej, og der kan således være mulighed for yderligere bebyggelse af ejendommen, idet der ifølge lokalplan må bebygges med 50%. Grunden er udover asfalteret parkeringsområde, udlagt i græs.

Læs mere

Denne ejendom er solgt

Vil du vide mere?

Lone Futtrup Sørensen

LFS@nordicals.dk

+4521466336

Helgolandsgade 13, 7500 Holstebro

+4597404200

7500@nordicals.dk

Besøg vores mæglerside

Lignende ejendomme

Til top