Nørregade 51, st.
7500 Holstebro

Sagsnr. 24257

Ejendomstype

Etageareal

Energiklasse

451 m²

C

Årlig leje

Leje pr. m²

Depositum

Årlig driftsudgift

Årlig driftsudgift pr. m²

575.025 kr.

1.275 kr.

287.513 kr.

36.000 kr.

80 kr.

Stor flot hjørnebutik beliggende på byens bedste gågade

I dette lejemål er der mulighed for trappeleje.

Spændende og pænt butikslokale beliggende på byens bedste gågade og ikke langt fra Nørreportcentret.

Området er under udvikling, idet der i forbindelse med Nørreport etableres en ny Rema 1000 butik samt flere nye flotte bygninger.

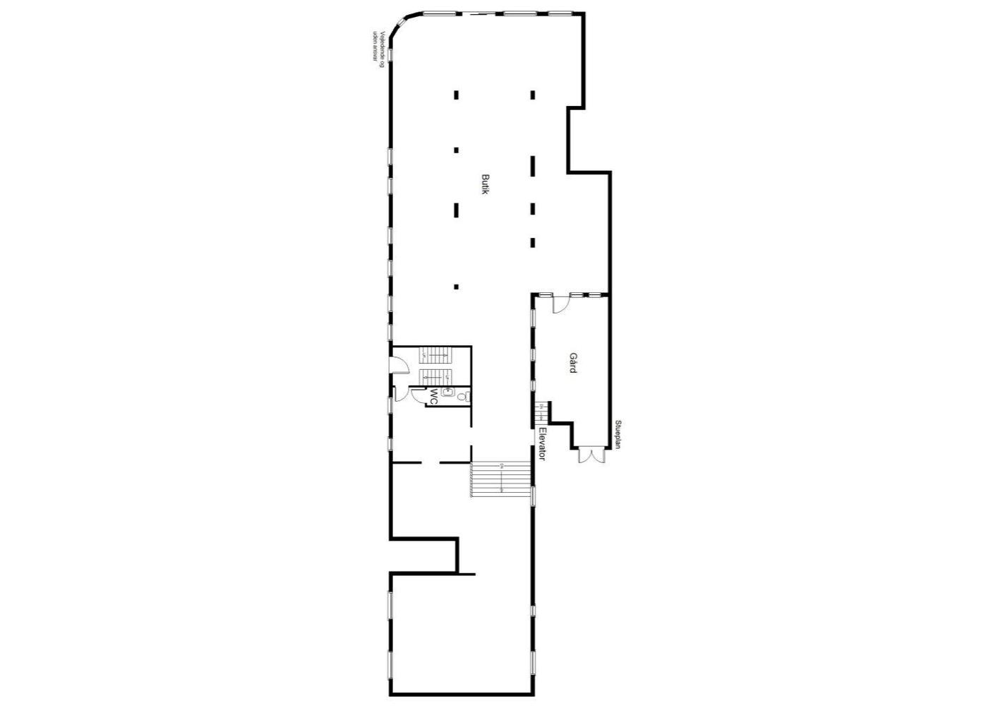
Butikslokalet er beliggende med meget god profilering på hjørnet af Nørregade og Bisgårdgade.

Butikken er indrettet med et stort regulært areal i den forreste del af butikken samt en mindre del i forskudt plan bagerst i butikken. Denne del kan indrettet til personalefaciliteter og lager.

Der er person- og vareelevator til en mindre kælder med mulighed for lager m.m.

Et spændende og godt beliggende butikslokale.

Lokalerne kan evt. sammenlægges med det tidligere apotek (se sags nr. 24180)

Ejer er meget fleksibel og er åben overfor forslag til at ændre indretning.

Læs mere

Vil du vide mere?

Kasper Bergenhammer Andersen

KBA@nordicals.dk

+4523102919

Helgolandsgade 13, 7500 Holstebro

+4597404200

7500@nordicals.dk

Besøg vores mæglerside

Lignende ejendomme

Til top