Sct Jørgens Gade 6
7500 Holstebro

Sagsnr. 24719

Ejendomstype

Etageareal

Grund

Energiklasse

264 m²

131 m²

B

Kontantpris

Købspris pr. m²

3.850.000 kr.

14.583 kr.

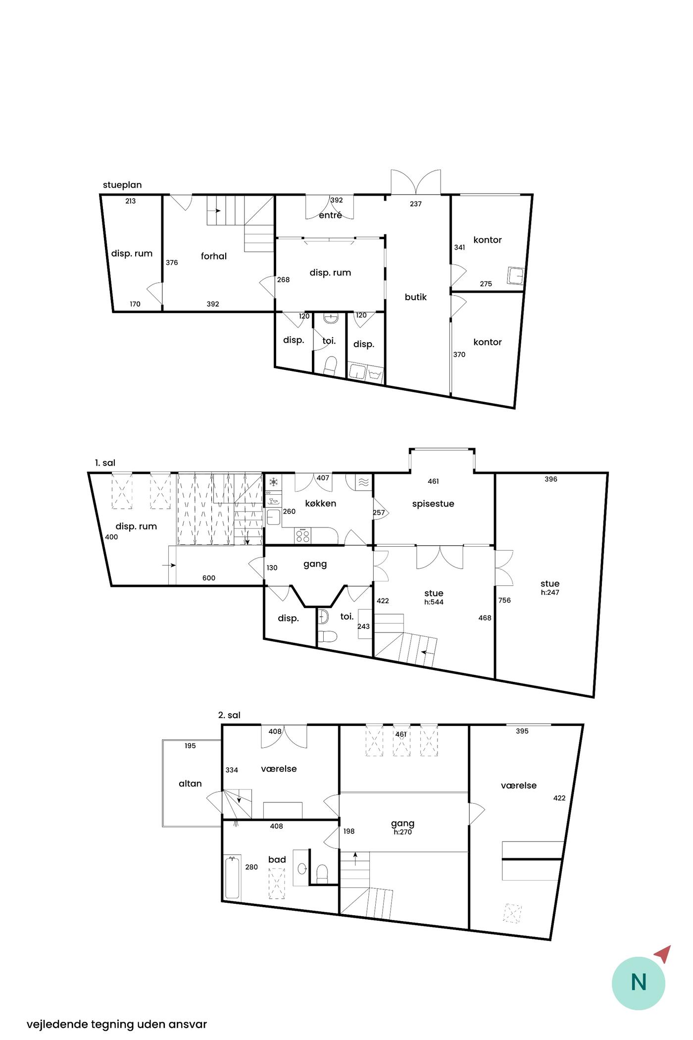
Kombineret erhverv og bolig i Holstebro Bymidte

I Holstebro bymidte i en sidegade til gågaden Nørregade ligger denne unikke ejendom.

Arkitekten bag har skønnet og skabt en spændende og dynamisk bolig fordelt på 1. og 2. sal. Med en gennemført tankegang er hver kvadratmeter i denne bolig benyttet med omtanke, hvilket afspejles i ejendommens indretning. Dens rummelige og lyse rum, kombineret med en kreativ og moderne æstetik, skaber en behagelig og indbydende atmosfære, hvilket gør denne lejlighed til et yderst attraktivt sted at bo.

Boligens 1. sal er indrettet med køkken, toilet, flere stuer og et flot trappeparti, der fører til 2. sal. På 2. sal er der frithængende gangbro med lysindfald fra begge sider, 2 værelser, badeværelse og altan.

Ikke nok med at denne ejendom rummer en helt unik bolig, den indeholder også erhvervslokaler i gadeplan, som tilfører ejendommen en god lejeindtægt. Erhvervslokalet er på nuværende tidspunkt udlejet til en pålidelig lejer, der har været med til at sikre en stabil lejeindtægt over tid.

Til ejendommen er der desuden lukket garage.

Som ejer af denne prestigefyldte ejendom, vil du nyde godt af at være i centrum af en aktiv handelsby, hvor der er et væld af forskellige kulturelle tilbud, spisesteder og underholdningsmuligheder lige ved døren. Holstebro byder på alt lige fra teater og kunst til musik og shopping, og det hele kan du nyde i gåafstand fra din forhåbentligt fremtidige ejendom. Udover det pulserende byliv, er Holstebro omgivet af hvad vi danskere er så stolte af, vores smukke natur. En tur langs Storåen er et must, for enhver der bor i denne fantastiske perle af en by. Med få skridt fra ejendommen, kan du også finde dig selv på denne populære gå-og cykelrute som kan tage dig langt ud i landskabet, eller bare fungere som en hurtig transport rundt i byen. Ejendommen er ideel for dig, der ønsker selv at bestemme over det sted, du vil leve - uden at skulle gå på kompromis med bylivets faciliteter. Du kan både følge byens puls, samtidig med at du kan trække dig tilbage og nyde roen, når du kommer hjem. Denne centrale beliggenhed og ejendommens alsidige brugsmuligheder, gør denne ejendom attraktiv.


Kontakt Nordicals Vestjylland i dag for en fremvisning eller hør nærmere på 9740 4200.

Læs mere

Vil du vide mere?

Lone Futtrup Sørensen

LFS@nordicals.dk

+4521466336

Helgolandsgade 13, 7500 Holstebro

+4597404200

7500@nordicals.dk

Besøg vores mæglerside

Lignende ejendomme

Til top