Skjernvej 78
7500 Holstebro

Sagsnr. 24293

Ejendomstype

Etageareal

Grund

Energiklasse

113 m²

473 m²

C

Fin udlejningsejendom i Holstebro

Udlejningsejendom beliggende få hundrede meter fra gågaden, indkøbsmuligheder m.v.

Ejendommen er opført i 1939 og har røde facadesten og betontag.

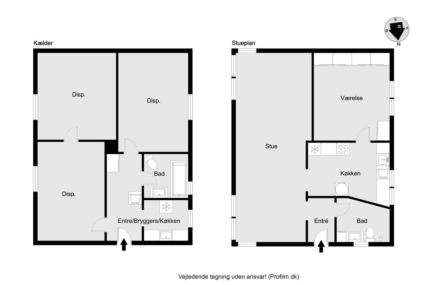
Opdelt i 2 lejemål, der alle fremstår lyse og pæne - og med eget køkken og bad.

Ejendommen består af to separate lejemål, med separat indgang, køkken, badeværelse og funktionel indretning. Begge lejemål er udlejet og fremstår lyse og pæne.

En ideel beliggenhed i Holstebro, tæt natur, centrum og offentlig transport.

Læs mere

Denne ejendom er solgt

Vil du vide mere?

Kasper Bergenhammer Andersen

KBA@nordicals.dk

+4523102919

Helgolandsgade 13, 7500 Holstebro

+4597404200

7500@nordicals.dk

Besøg vores mæglerside

Lignende ejendomme

Til top