Søndergade 13
7600 Struer

Sagsnr. 24318

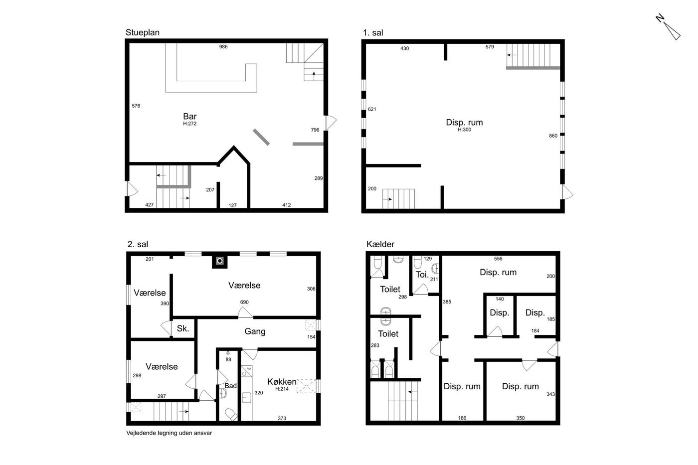
Ejendomstype

Etageareal

Grund

377 m²

149 m²

Tidligere værtshus i Struer sælges / BUD ØNSKES

Ejendommen er meget velegnet til værtshus, klubhus eller foreningslokale, men vil sandsynligvis også kunne ombygges til beboelse eller lignende.

Køber skal dog være opmærksom på anvendelse i lokalplanen. Det skal bemærkes, at i mail af 4. april 2024 har Struer Kommune tilkendegivet, at de er interesserede i at understøtte boliger i den del af byen og at der arbejdes i retning af at ændre lokalplanen med forventning om en færdig lokaplan ved udgangen af 2025. Undersøgelsespligten for ændret anvendelse påhviler alene køber.

Ejendommen er indrettet til værtshus med toiletter i kælderen, bar og barområde i stueplan med udgang til altan/bagtrappe. Umoderniseret festlokale på 1. sal og "beboelse" på 2. sal (Der er ikke registreret nogen beboelse på BBR meddelelsen og dermed ikke godkendt)

Ejendommen trænger generelt til ombygning og vedligeholdelse.

Beliggende tæt i centrum og tæt ved banegård og skoler m.m.

Læs mere

Denne ejendom er solgt

Vil du vide mere?

Kasper Bergenhammer Andersen

KBA@nordicals.dk

+4523102919

Helgolandsgade 13, 7500 Holstebro

+4597404200

7500@nordicals.dk

Besøg vores mæglerside

Lignende ejendomme

Til top