Skous Gade 7
7620 Lemvig

Sagsnr. 24362

Ejendomstype

Etageareal

Grund

Energiklasse

877 m²

6.596 m²

D

Årlig leje

Leje pr. m²

1.234 kr.

1 kr.

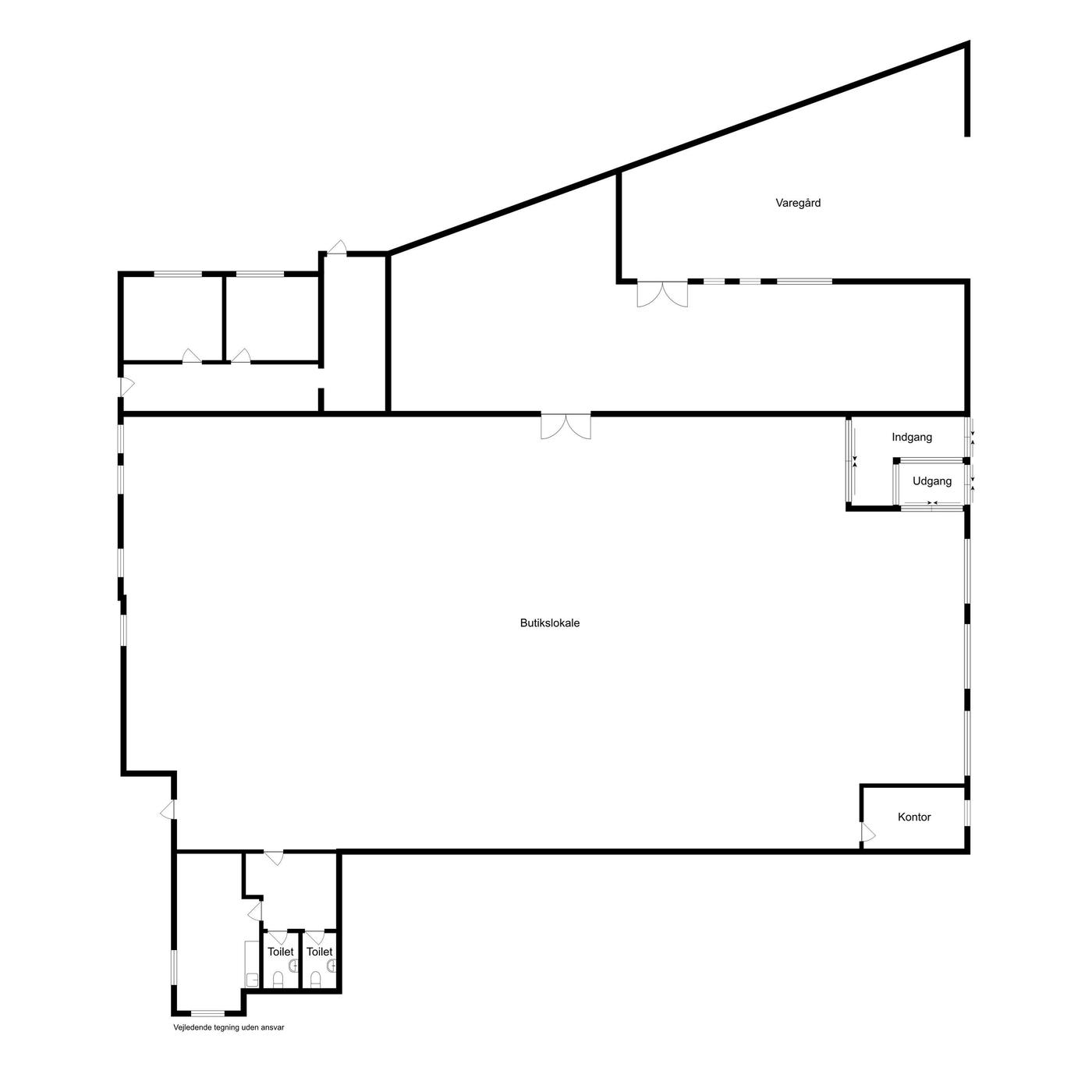
Regulær butik med thansen og Netto som nabo

Lejemålet er opført i 1974 og ombygget i 2004.

Ejendommen er i 2020/2021 renoveret for kr. 270.000,-

Opført i røde sten/betonelementer, tag med pap og termovinduer.

Udenfor lejemålet er der 82 fælles parkeringspladser som deles med thansen og Netto.

Beliggende på havnen og meget tæt ved torvet og gågaden.

Lemvig Havn har gennem de seneste år gennemgået en udvidelse af havnebassinet/kapaciteten samt en gennemgribende modernisering/forskønnelse med skater-bane, legepladsen, bænke, flere restauranter, bowlingcenter m.m.

Havneområdet er allerede attraktivt, men Lemvig Kommune har flere gode planer for den resterende del.

Læs mere

Vil du vide mere?

Kasper Bergenhammer Andersen

KBA@nordicals.dk

+4523102919

Helgolandsgade 13, 7500 Holstebro

+4597404200

7500@nordicals.dk

Besøg vores mæglerside

Lignende ejendomme

Til top