Bjørnevej 8
7700 Thisted

Sagsnr. 24987

Ejendomstype

Etageareal

Grund

754 m²

1.538 m²

Kontantpris

Købspris pr. m²

2.295.000 kr.

3.044 kr.

God solid værksteds-/lagerejendom i Thisted

Denne velholdte erhvervsejendom fra 1988/2005 er opført i klassiske røde mursten med eternittag og byder på i alt 754 m². Ejendommen er ideel til lager, produktion eller håndværksvirksomhed og byder på solide og funktionelle rammer.

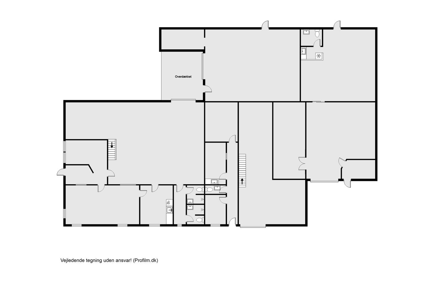
Fordeling af arealer

• 552 m² værksted - ideelt til produktion eller lager

• 102 m² kontor - funktionelle lokaler til administration

• 100 m² garage - ekstra plads til køretøjer eller opbevaring

Ejendommen har nem adgang via port, hvilket gør ind- og udlevering af varer enkel og effektiv. Beliggende i den nord-/østlige del af Thisted, med god tilkørsel og nærhed til lokale faciliteter.

Ejendommen er pt. delvist udlejet - ca. 300 m² - (se plantegning), hvilket bidrager til at nedbringe driftsudgifterne. Der er stadig rigtig gode lager- og administrationsarealer ledige for køber.

En robust ejendom med mange anvendelsesmuligheder - perfekt til virksomheden, der søger plads og funktionalitet.

Læs mere

Vil du vide mere?

Lone Futtrup Sørensen

LFS@nordicals.dk

+4521466336

Helgolandsgade 13, 7500 Holstebro

+4597404200

7500@nordicals.dk

Besøg vores mæglerside

Lignende ejendomme

Til top