Vestergade 10
7700 Thisted

Sagsnr. 24921

Ejendomstype

Etageareal

Grund

Energiklasse

657 m²

377 m²

D

Arkitektonisk perle midt i Thisted – unik ejendom med mange anvendelsesmuligheder

Velkommen til denne imponerende ejendom beliggende centralt i Thisted Midtby. Oprindeligt opført i 1927, ombygget i 1992 og fremstår i dag som en flot og karakterfuld ejendom med et arkitektonisk udtryk.

Kirkecenteret på Vestergade 10, som tidligere var en bankbygning, er opført i en historicistisk stil med græske søjlemotiver i facaden. Den markante brug af granit og de elegante murede detaljer i røde teglsten giver bygningen et præg, der minder om den nationalromantiske arkitektur. Det fremstår som et ambitiøst borgerhus.

Ejendommen er opført i klassiske røde mursten med rødt tegltag og smukke sprossede vinduer, der sammen med de arkitektoniske detaljer både ude og inde skaber en særlig atmosfære. Indvendigt mødes man af elegante stuklofter, vægpaneler og sprossede døre og vinduer, som understreger ejendommens stil og historie.

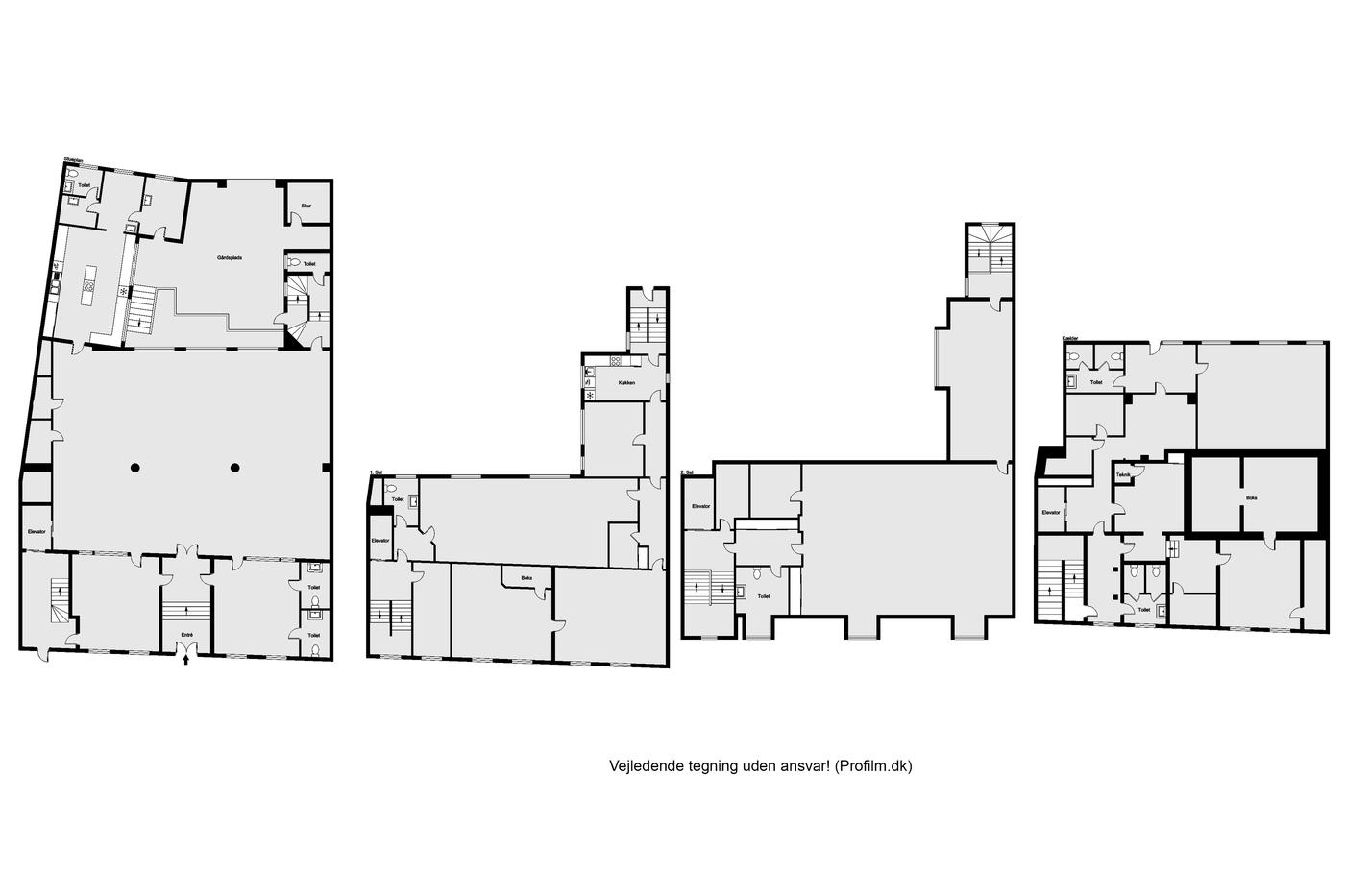
Ejendommen fordeler sig over fire etager:

• Stueplan byder på en præsentabel entré med garderobe, et stort og lyst lokale samt et fuldt udstyret industrikøkken.

• 1. sal rummer flere kontorer, et mødelokale og et praktisk the-køkken.

• 2. sal imponerer med et stort lokale med loft til kip samt et ekstra kontor - ideelt til kreative eller repræsentative formål.

• Kælderen giver god plads til opbevaring og understøtter ejendommens mange anvendelsesmuligheder.

Ejendommen er desuden udstyret med handicapvenlig adgangsforhold samt elevator til alle etager.

Denne ejendom er oplagt som domicil, kontor, klinik, showroom eller kombineret erhverv og repræsentation - og den centrale beliggenhed i Thisted gør den let tilgængelig for både medarbejdere og besøgende.

Kontakt Nordicals Vestjylland i dag for en fremvisning eller hør nærmere på 9740 4200.

Læs mere

Denne ejendom er solgt

Vil du vide mere?

Lone Futtrup Sørensen

LFS@nordicals.dk

+4521466336

Helgolandsgade 13, 7500 Holstebro

+4597404200

7500@nordicals.dk

Besøg vores mæglerside

Lignende ejendomme

Til top