Gemsevej 4
7800 Skive

Sagsnr. 9050S-3

Ejendomstype

Etageareal

Grund

636 m²

14.092 m²

Årlig leje

Leje pr. m²

Depositum

Årlig driftsudgift

Årlig driftsudgift pr. m²

127.200 kr.

200 kr.

31.800 kr.

15.900 kr.

25 kr.

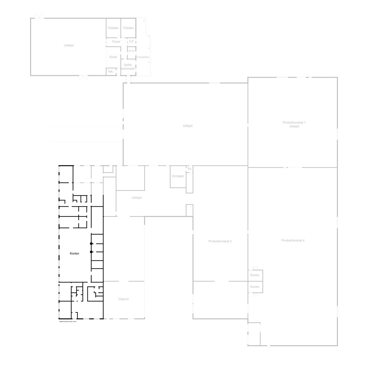
Kontorfaciliteter beliggende i Skive syd

Kontorfaciliteter beliggende i Egeris-erhvervsområdet i Skives sydlige del nær omfartsvej og indfaldsvej.

Der kan efter aftale medlejes tilstødende lager.
Arealet kan opdeles efter behov.

Konstruktion: Den ledige del af ejendommen er opført i 1989 over stålspærkonstruktion. Ydervægge i røde teglsten.

Tag: Built up (fladt tag) belagt med tagpap på den nyeste del af ejendommen. Der er monteret ovenlyskupler i taget.
Sadeltag belagt med røde teglsten på den oprindelige bygning.

Gulve-bæreevne: Gulvtæppe og linoleum.

Indretning: Storrumskontorer, enkeltmandskontorer, mødelokaler, kantine og mandskabsfaciliteter.

Opvarmning: Naturgas.

Alarm: Ja.

Belysning: Armaturer.

Udenomsarealer: Ejendommens udenomsarealer er befæstede og udlagt til tilkørsels- og parkeringsareal.

Ejendommen er oprindeligt opført til trykkeri.

Læs mere

Vil du vide mere?

Morten Lundhøj

mol@nordicals.dk

+45 8915 3301

Toldboden 1, 6. sal , 8800 Viborg

+4570203911

8800@nordicals.dk

Besøg vores mæglerside

Lignende ejendomme

Til top