Marienlystvej 33
7800 Skive

Sagsnr. 9100S

Ejendomstype

Etageareal

Energiklasse

1.075 m²

C

Årlig leje

Leje pr. m²

Depositum

477.543 kr.

444 kr.

119.386 kr.

Kontorfællesskab i præsentabel ejendom

Erhvervslejemål udlejes samlet eller opdelt efter nærmere aftale.

Ejendommen er en præsentabel domicilejendom beliggende i det nordlige Skive med kort afstand til hovedlandevej A26 (Aarhus-Hanstholm). Fra ejendommen er der fjordudsigt over det åbne land.

Ejendommen vil være velegnet til flere former for kontor-, kursus- og servicevirksomhed, ligesom virksomheder med behov for begrænset lagerareal.

Ejendommen består overordnet af 3 bygninger hhv.: en kontorbygning samt garage-/ lagerbygning samt carportbygning.

Konstruktion, facader: Kontorbygningen er opført i 1988 i 1,5 etage med delvist fritlagt underetage. Bygningen er med ydervægge i røde teglsten og tagkonstruktionen er sadeltag belagt med røde vingeteglsten. Carportbygningen og garagebygningen er tillige opført i røde teglsten.

Vinduer: hvide plastvinduer samt ovenlysbånd.

Indretning: De indvendige vægge er opført dels i vandskurede murstensvægge og dels som lette gipsvægge. Gulvene er lagt i beton og belagt med klinker samt tæpper. I underetagen er gulvene belagt med linoleum. Der er monteret personelevator mellem stuen og underetagen.

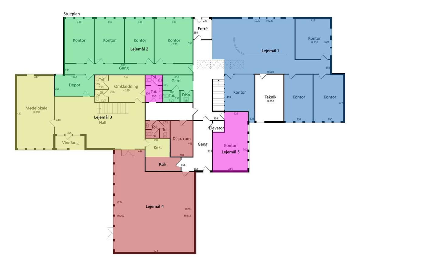
Lejemål: ejendommen kan opdeles i op til 7 lejemål fra 45 m2 - 1.075 m2 samt garagebygning. Se plantegninger og lejevilkår vedr. beliggenhed og størrelser på lejemålene på de efterfølgende sider. Der er p.t. udlejet 1 lejemål (nr. 1).

Indretning: bygningens stueetage indeholder kontor-/ velfærdsafsnit Via intern trappe er der ligeledes adgang til ejendommens fritlagte underetage, der indeholder kantine- og mødelokaler samt arkivrum.

Garagebygningen er forsynet med 4 aluhejseporte samt carportbygning indeholdende 12 carporte.

Opvarmning: naturgas. Ejendommens fyr er udskiftet indenfor de senere år.

Udenomsareal: ejendommen er indhegnet, og udenomsarealerne er udlagt til tilkørsels- og parkeringsareal befæstet med asfalt. Endvidere forefindes haveareal.

Læs mere

Vil du vide mere?

Morten Lundhøj

mol@nordicals.dk

+45 8915 3301

Toldboden 1, 6. sal , 8800 Viborg

+4570203911

8800@nordicals.dk

Besøg vores mæglerside

Lignende ejendomme

Til top