Durupvej 60, Glyngøre
7870 Roslev

Sagsnr. 8301S

Ejendomstype

Etageareal

Grund

Energiklasse

1.391 m²

8.400 m²

D

Kontantpris

Købspris pr. m²

Årlig driftsudgift

Årlig driftsudgift pr. m²

4.975.000 kr.

3.577 kr.

157.175 kr.

113 kr.

NY PRIS - Markant ejendom i usædvanlig høj kvalitet til både blandet bolig- og erhvervsformål eller kun erhvervsformål

Beliggende i Glyngøre by, og med meget kort afstand til havnen og stranden. Ejendommen ligger højt på Durupvej og med god udsigt.

Ejendommen er oprindeligt opført som kontordomicil/administration for Bodilsen (lokal møbelkoncern), og senere indrettet og anvendt til blandet bolig og erhverv.

Ejendommen er opført i kvalitetsmaterialer, og den rummer mange muligheder for køber.

Konstruktion/Facade: Ejendommen er opført i 1993, og er senere til- og ombygget i 2010. Facaden er opført i en gul mursten med flere detaljer samt built-up tag belagt med tagpap. På taget er der ligeledes et gennemgående rytterlys i bygningens fulde længde.

Vinduer: Plastvinduer monteret med termoruder.

Indretning: Stueetagen er indrettet med vindfang i glas, garderobe, stort fordelingsrum i åbent dæk til 1. salen, og som danner rammerne om ejendommen med åben trappe til 1 sal.
I stueetagen er der stort disponibelt rum/stue med bar og poolbord, roulette m.v. samt et mindre disponibelt rum/stue, der har været hjemmebiograf.
Endvidere er der et stort åbent køkken-alrum i forbindelse med et stueareal. Bagved køkkenet er der indrettet et opbevaringsrum samt et stort badeværelse med brus samt to toiletter og et rengøringsrum.

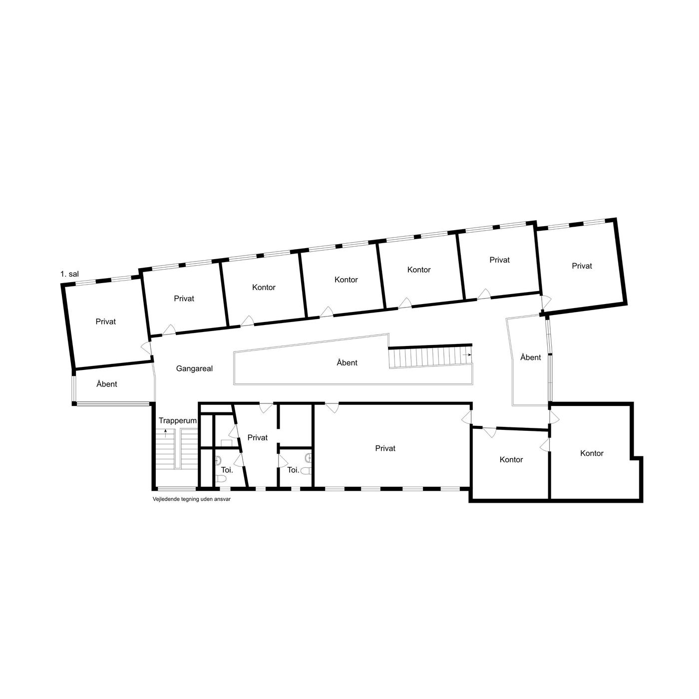
1. salen er indrettet med i alt 10 værelser / kontorlokaler, som kan danne rammerne om købers bolig eller virksomhed, derudover er der indrettet et stort badeværelse med to toiletter, bad og et rengøringsrum.

Kælderen indeholder en stor rummelig garage med to fjernbetjente porte, EDB-rum, fyrrum, teknikrum med genvex, disponibelt rum med udgang, motionsrum med toilet.

Ejendommen fremstår i god vedligeholdelsestand, og rummer mange gode muligheder for at køber kan indrettet sig med en kombination af bolig og erhverv.

Opvarmning: Ejendommen opvarmes via et træpillefyr. Ejendommen har tidligere været tilsluttet gas, som evt. kan genetableres.

Alarm: Ja. Ved overdragelse afbestiller sælger alarm, såfremt køber ønsker at overtage alarmen skal dette aftales særskilt. Udgifterne til alarm afholdes af køber.

Belysning: Sædvanlig belysning i forbindelse med indretning af lokalerne til kontor.

EDB-stik, telefoni, internet (fibernet): Sælger oplyser at der er alm. internet.

Særlige installationer: Elevatoren på parkeringsarealet direkte til Durupvej har ikke været i drift i flere år, og overtages som den er og forefindes. Omkostninger til renovering og gen-aktivering påhviler køber. Fra elevatorens top er der lavet gangbro over til bygningen.
Arealet og elevatoren blev oprindeligt etableret som adgang for personale og kunder.

Parkering: Der er indrettet parkering i ejendommens kælderen, samt parkering på terræn lige ved bygningen. Ejendommen tilkøres fra Durupvej op ad grusvej til selve bygningen.

Udenomsarealer: Ud over tilkørsel og parkeringsarealer er der på den store grund anlagt befæstede terrasser m.v., samt udlagt med græs og træer og buske.

Sælger ejer endvidere grunden overfor - Durupvej 61 - der tillige kan købes. Grunden har et areal på 5.799 m² liggende i landzone og med delvis fredsskovpligt og habitatjord. Se matrikelkort side 30.

Læs mere

Vil du vide mere?

Jesper Bruun Fangel

jef@nordicals.dk

+45 8915 3300

Toldboden 1, 6. sal , 8800 Viborg

+4570203911

8800@nordicals.dk

Besøg vores mæglerside

Lignende ejendomme

Til top