Nørrevang 9, Durup
7870 Roslev

Sagsnr. 9072S

Ejendomstype

Etageareal

Energiklasse

3.008 m²

D

Årlig leje

Leje pr. m²

Depositum

350.000 kr.

116 kr.

87.500 kr.

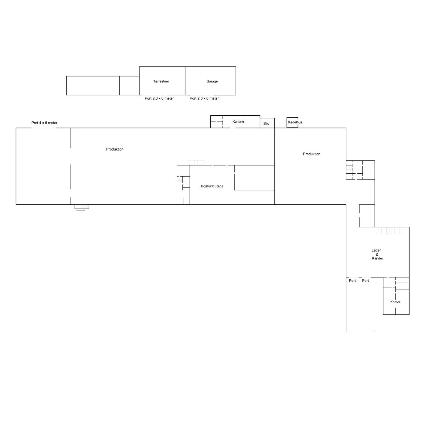
Produktions-/ lagerejendom beliggende i landsbysamfund ca. 23 km nord for Skive

og 15 km sydøst for Nykøbing Mors. Byen har 925 indbyggere.

Ejendommen er opført i flere tempi i perioden1960-1988, og består overordnet af en stor regulær hal på 1.655 m² med adgang til det oprindelige produktionsafsnit 826 m² med tilhørende forsendelsesafsnit og mandskabsafsnit. Desuden tilbygget kontorafsnit på 91 m². Desuden delvis isoleret tømmerlade på 338 m² med to aluporte på H: 2,8 meter x B: 6 meter.

Tag: sadeltag belagt med eternittagplader. En del af taget er udskiftet i de senere år.

Vinduer: ovenlysvinduer i den store hal og vinduer i facaderne.

Porte: 2 aluhejseporte på hhv. ca. 2,5 x 2,5 meter og H: 3 x 3 meter med rampetilkørsler. 1 port i terræn på H: 4 x B: 6 meter.

Loftshøjde: I den store hal er loftshøjden ca. 3 meter ved facaderne og 6 meter i kip. I det oprindelige produktionsafsnit er loftshøjden 3 meter i den ene del og 3 meter ved facaderne og 6 meter i kip i forsendelsesafsnittet.

Gulve-bæreevne: betongulv. Gulvet i kontor- og mandskab er belagt dels med klinker og dels med parketgulv.

Opvarmning: oliefyr ca. 14 år gammelt.

Strøm: Rettighed på 600 Ampere

Belysning: lysarmaturer.

Udenomsarealer - befæstning - indhegning etc.: udenomsarealerne er udlagt til tilkørsels- og p-areal befæstet med SF-betonsten.

Bemærkninger:
Ejendommen kan tillige købes.

Læs mere

Vil du vide mere?

Morten Lundhøj

mol@nordicals.dk

+45 8915 3301

Toldboden 1, 6. sal , 8800 Viborg

+4570203911

8800@nordicals.dk

Besøg vores mæglerside

Lignende ejendomme

Til top