Elsøvej 105, Kontor 2
7900 Nykøbing M

Sagsnr. 9053S-1

Ejendomstype

Etageareal

Energiklasse

254 m²

C

Årlig leje

Leje pr. m²

Depositum

38.100 kr.

150 kr.

9.525 kr.

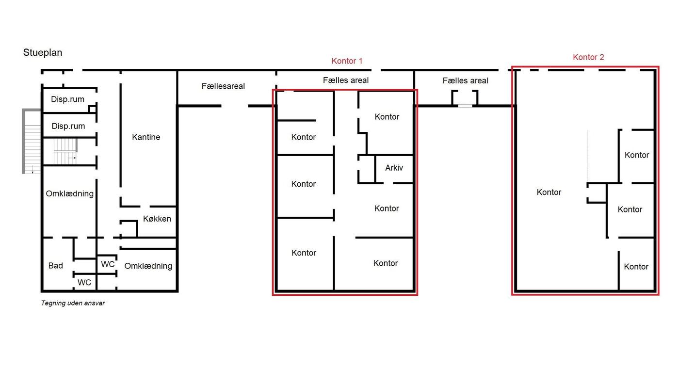
Lyse kontorlokaler med parkering ved døren

Lejemålet er beliggende i det nordvestlige Nykøbing M med kort afstand til centrum.

Indretning: Lejemålet har sammen med nabolejemålet et fælles indgangsparti samt fordelingsgang. Kontorarealet er opgjort til ca. 224 kvm og fordeler sig med et stort og åbent kontormiljø samt 3 gode enkeltmandskontorer.

Som udgangspunkt overtages lejemålet som det er og forefindes dvs. ikke nymalet og med den nuværende gulvbelægning.

Opvarmning: Ejendommen opvarmes via naturgasfyr.

Belysning: Almindelige loftsmonteret lysstofrørsbelysning.

Alarm: Lejer sørger selv for at installere alarm eller anden sikkerhedsudstyr.

Internet: Der er alm. internet i ejendommen.

Parkering: Der er fælles parkering med ejendommens andre lejere foran lejemålet.

Moms: Lejen tillægges gældende moms.

Inventar: Der medfølger ikke inventar i lejemålet.

Naboer: FGU Nordvest Morsø, Revision Limfjord, Land og Fritid, Morsø hjemmepleje mv.

Læs mere

Vil du vide mere?

Morten Lundhøj

mol@nordicals.dk

+45 8915 3301

Toldboden 1, 6. sal , 8800 Viborg

+4570203911

8800@nordicals.dk

Besøg vores mæglerside

Lignende ejendomme

Til top