Fredens Torv 3A
8000 Aarhus C

Sagsnr. 2502167

Ejendomstype

Etageareal

Grund

Energiklasse

1.008 m²

234 m²

C

Kontantpris

Købspris pr. m²

Afkast

Årlig lejeindtægt

Årlig lejeindtægt pr. m²

Årlig driftsudgift

Årlig driftsudgift pr. m²

28.000.000 kr.

27.778 kr.

5,05 %

1.707.305 kr.

1.694 kr.

302.234 kr.

300 kr.

Investeringsejendom i Aarhus C

Ejendommen
Ejendommen er på i alt 1.170 m², inkl. parterre, og er indrettet i 5 plan. Den fremstår velholdt.

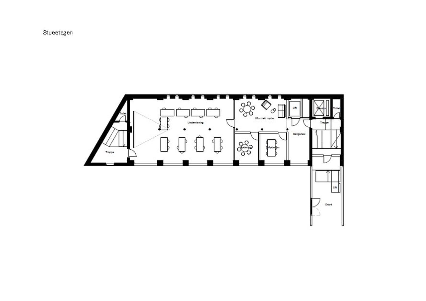
Ejendommen entreres via en flot fælles indgang på Fredens Torv 1. Her er der adgang til alle etager, enten via en flot trappe eller via elevator. Derudover har ejendommen i den modsatte ende en flot indgang, der ligeledes giver adgang til alle arealer.

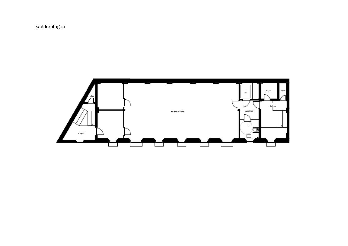
I parterre findes køkken, kantine samt disponible rum.

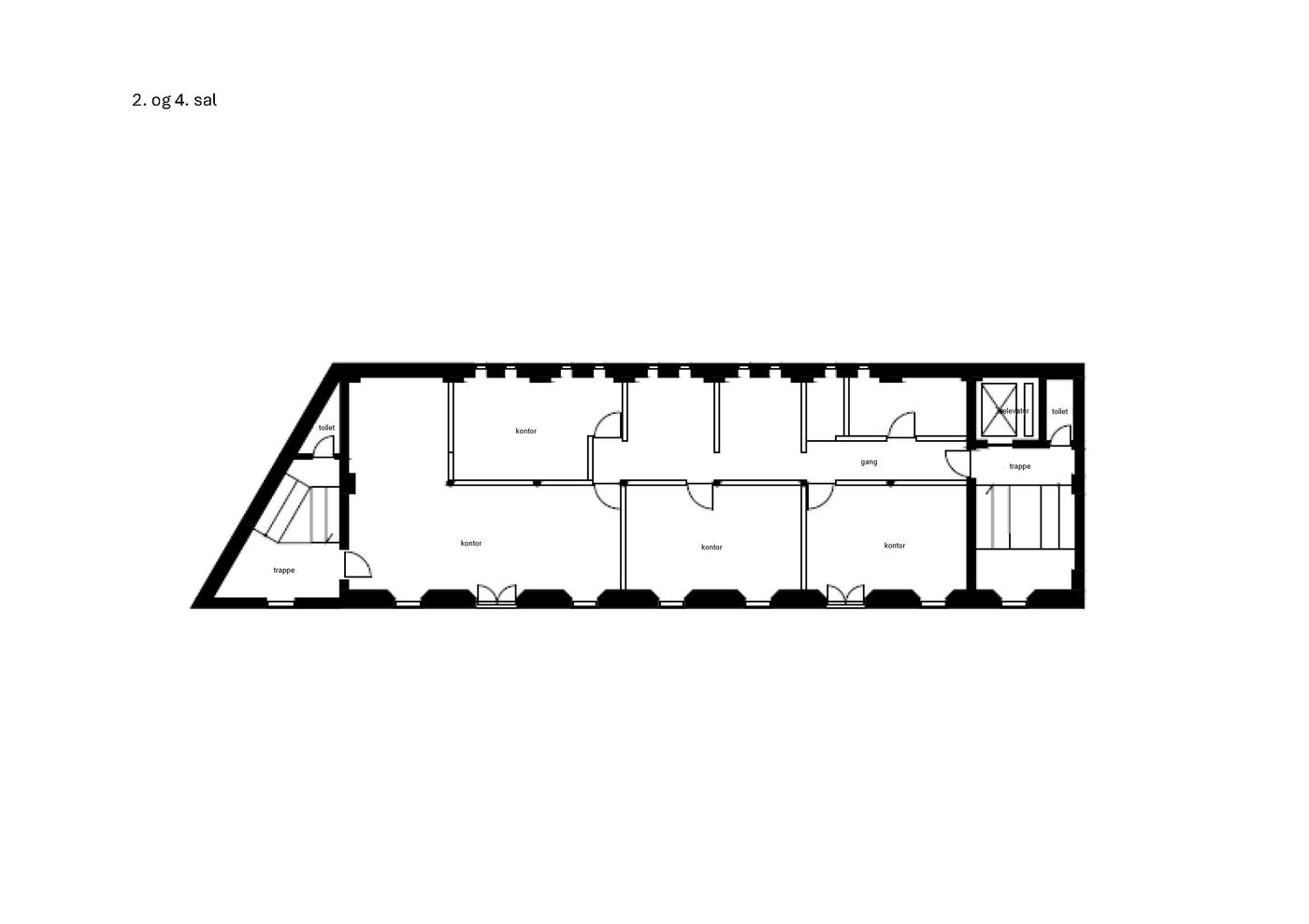
Øvrige etager er indrettet med møderum, kontorer og åbne kontorer i forskellige størrelser. Alle etager har masser af lysindfald via de flotte facadevinduer. Der er toiletter ved begge trapper.

Denne unikke ejendom er opført i røde facadeteglsten, taget er belagt med tagpap, og sokkel/bunden af ejendommen er udført med kampesten.

Flere af facadevinduerne er forsynet med skodder, og ejendommen fremtræder charmerende med sin "pakhusstil".

Ejendommen blev oprindeligt opført i 1899 og har en rustik indretning med pudsede vægge, skifertrapper m.v.

Der er installeret ventilation i ejendommen indenfor de seneste år.

Indvendigt fremstår lokalerne lyse og rustikke. Derudover er der søjlefri konstruktion/spærkonstruktion, hvilket gør indretningen fleksibel.

Lejere
Ejendommen fungerer i dag som domicil for enheder under FO Århus. Lejerne er fleksible, og ejendommen kan derfor overtages tom for lejere, eller der kan aftales en kortere lejeperiode.

Derudover er der 7 p-pladser, som er udlejet, men som kan opsiges med 1 måneds varsel.

Læs mere

Vil du vide mere?

Steen Storgaard Møller

stm@nordicals.dk

+45 22940000

Frederiks Plads 42, 12. sal, 8000 Aarhus

+4586208585

8000@nordicals.dk

Besøg vores mæglerside

Lignende ejendomme

Til top