Ny Munkegade 5 & 3, st.
8000 Aarhus C

Sagsnr. 1911337

Ejendomstype

Etageareal

Grund

Energiklasse

333 m²

593 m²

E

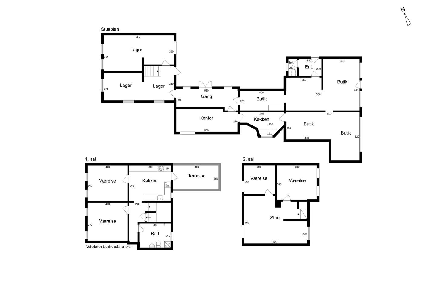
Projektejendom i Øgade-kvarteret i Aarhus C

Ny Munkegade 3, stuen (erhvervsejerlejlighed) sammenbygget med ejendommen Ny Munkegade 5.

Erhvervsejerlejligheden har igennem en lang årrække været anvendt til farvehandel. Der er direkte adgang mellem ejerlejligheden og stueetagen i Ny Munkegade 5, dog kan der nemt genetableres direkte adgang fra gaden til stueejerlejligheden i nr. 3. for selvstændigt brug og/eller frasalg.

Ny Munkegade 5 består af butik i stueetagen, én boliglejlighed på 1. og 2. sal. samt et baghus. Baghusets klimaskal fremstår i god stand. Indvendigt indeholder baghuset originalt værksted. Kælder forefindes under baghuset.

Hele ejendomsmassen bliver til købers disposition. Farvehandlen disponerer over stueetagen i både Ny Munkegade nr. 3 og 5 samt baghuset. Farvehandlen ophører driften ved salg af ejendommen. Boliglejligheden er opsagt til fraflytning ved salg.

Alt i alt en meget fin mulighed for projektudvikling, udlejning, frasalg, udstykning med eller uden, helt eller delvist, eget brug for øje.

Læs mere

Denne ejendom er solgt

Vil du vide mere?

Morten Kristensen

mkr@nordicals.dk

+45 23220723

Frederiks Plads 42, 12. sal, 8000 Aarhus

+4586208585

8000@nordicals.dk

Besøg vores mæglerside

Lignende ejendomme

Til top