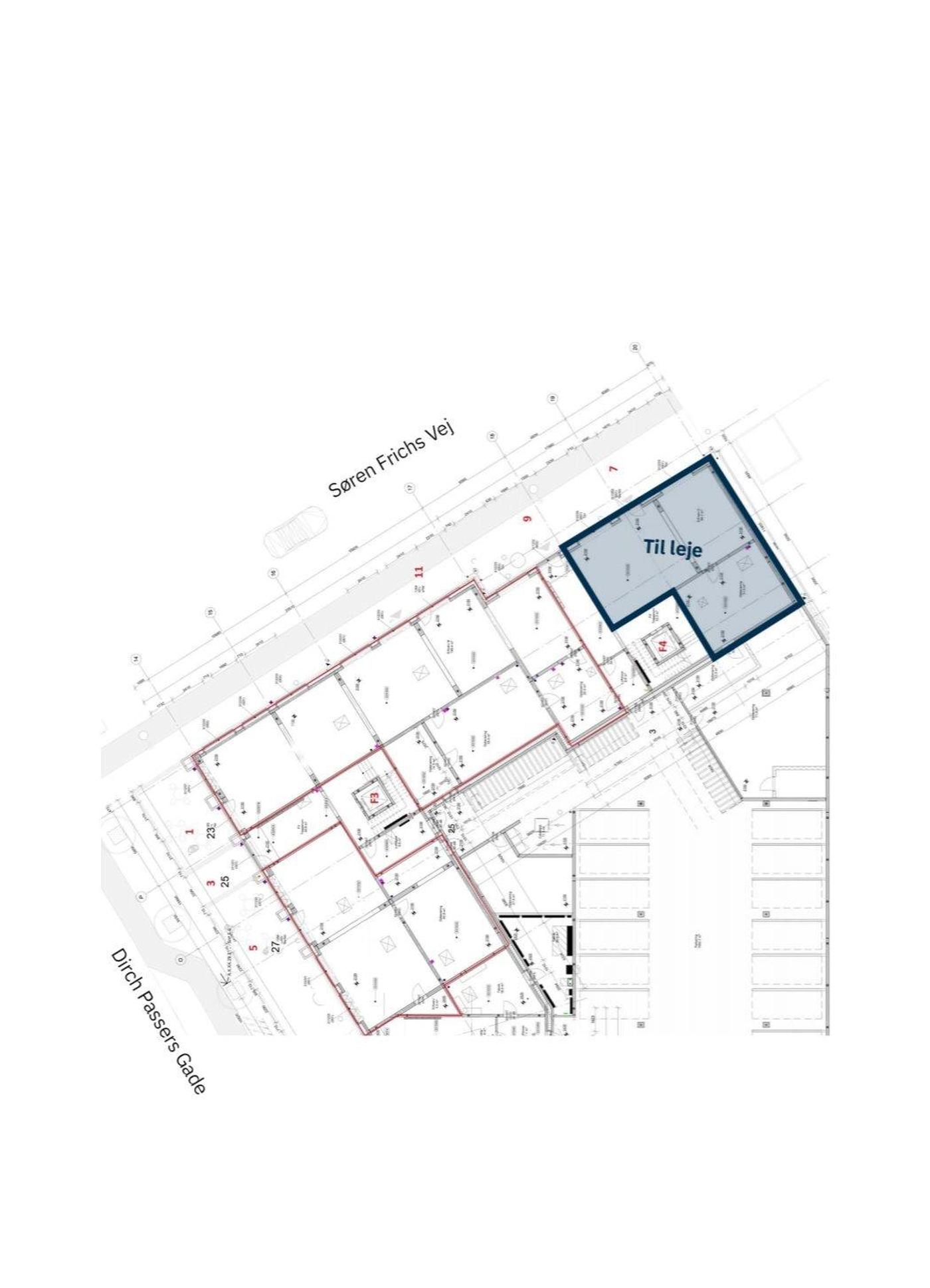
Søren Frichs Vej 7
8000 Aarhus C

Sagsnr. 21112221

Ejendomstype

Etageareal

Grund

Energiklasse

129 m²

3.065 m²

A2015

Super beliggende nye Take-away/detail lejemål på Godsbanen i Aarhus C

På bedste beliggenhed i byens nye eksklusive boligområde "Brokvarteret" på Godsbanearealerne udbydes nu dette helt nye lejemål i eksklusiv ejendom tegnet af arkitektfirmaet C. F. Møller.

Lejemålet er placeret i "Godsbanehuset" med stor synlighed midt i dette nye bydelskvarter på hjørnet af Dirch Passers Gade og Søren Frichs Vej i den nye bydel på Godsbanen i Aarhus centrum. Området er i gang med en transformation fra tidligere erhvervsområde til et hipt byområde, hvor kulturelle og kreative aktiviteter udfolder sig i de gamle godsbanebygninger side om side med nye butikker og boliger, ny Arkitektskole og spændende kontormiljøer, som alt sammen bidrager til at bydelen er ved at udfolde sig ud som et nyt tyngdepunkt i centrum af byen, som har fået navnet Aarhus K - hvor K står for kreativitet og kultur.

Godsbanearealerne er blevet sit eget helt særlige sted, et bykvarter med byliv, byrum og bygninger. Det er både et børnevenligt kvarter, hvor der både er plads til mange børnefamilier og andre beboere og deres gøremål samt til butikker, caféer og arbejdspladser. Men også et område, hvor der samtidig er tænkt over, hvordan der bliver plads til alle de skæve, kreative idéer, som udfolder sig omkring kulturproduktionscenteret på den gamle Godsbanegård.

Nye markante og velkendte bygninger som f.eks. "Æggepakkeriet", "New Aarch" (Den nye Arkitektskole i Aarhus) ligger i samme område som dette lejemål ligesom Lidl´s nye hovedkvarter med mange arbejdspladser er under opførelse.

Fuldt udbygget kommer der til at bo omkring 10.000 mennesker i det nye brokvarter langs Søren Frichs Vej, hvilket vil betyde en befolkningstilvækst på næsten 80%. Bydelen vil på sigt have knap 5.000 flere indbyggere end Frederiksbjerg.

Lejemålet henvender sig til en lejer, der ønsker at være et nyt samlingspunkt for kvarterets mange beboere, studerende på Arkitektskolen, brugere af Godsbanen samt ansatte hos f.eks. Lidl. Lejemålet er velegnet til detailhandel samt f.eks. eksklusivt madsalg som f.eks. brødudsalg, isbar, sushi, coffeeshop m.m.

Ny lejer har mulighed for selv at kunne være medbestemmende på selve indretningen af lokalerne. Lejer har endvidere mulighed for egen p-plads i ejendommens p-anlæg samt leje af 30 m² lagerrum.

Læs mere

Denne ejendom er udlejet

Vil du vide mere?

Morten Kristensen

mkr@nordicals.dk

+45 23220723

Frederiks Plads 42, 12. sal, 8000 Aarhus

+4586208585

8000@nordicals.dk

Besøg vores mæglerside

Lignende ejendomme

Til top