Skelagervej 1A
8200 Aarhus N

Sagsnr. 2203187

Ejendomstype

Etageareal

Grund

Energiklasse

606 m²

450 m²

A2010

Kontantpris

Købspris pr. m²

Afkast

Årlig lejeindtægt

Årlig lejeindtægt pr. m²

Årlig driftsudgift

Årlig driftsudgift pr. m²

11.400.000 kr.

18.812 kr.

5,68 %

716.996 kr.

1.183 kr.

73.070 kr.

121 kr.

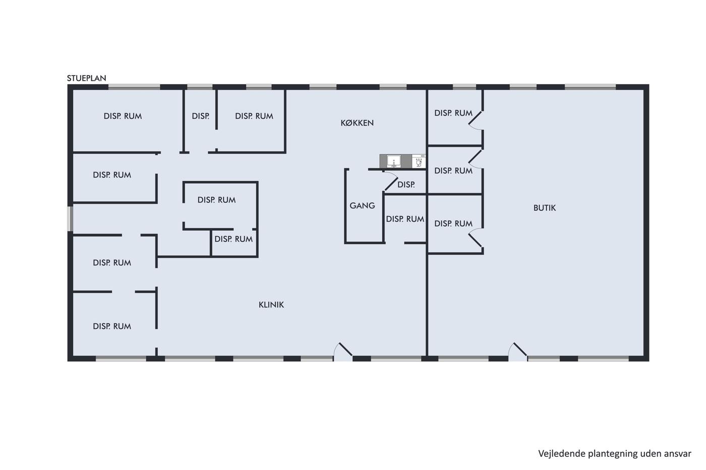
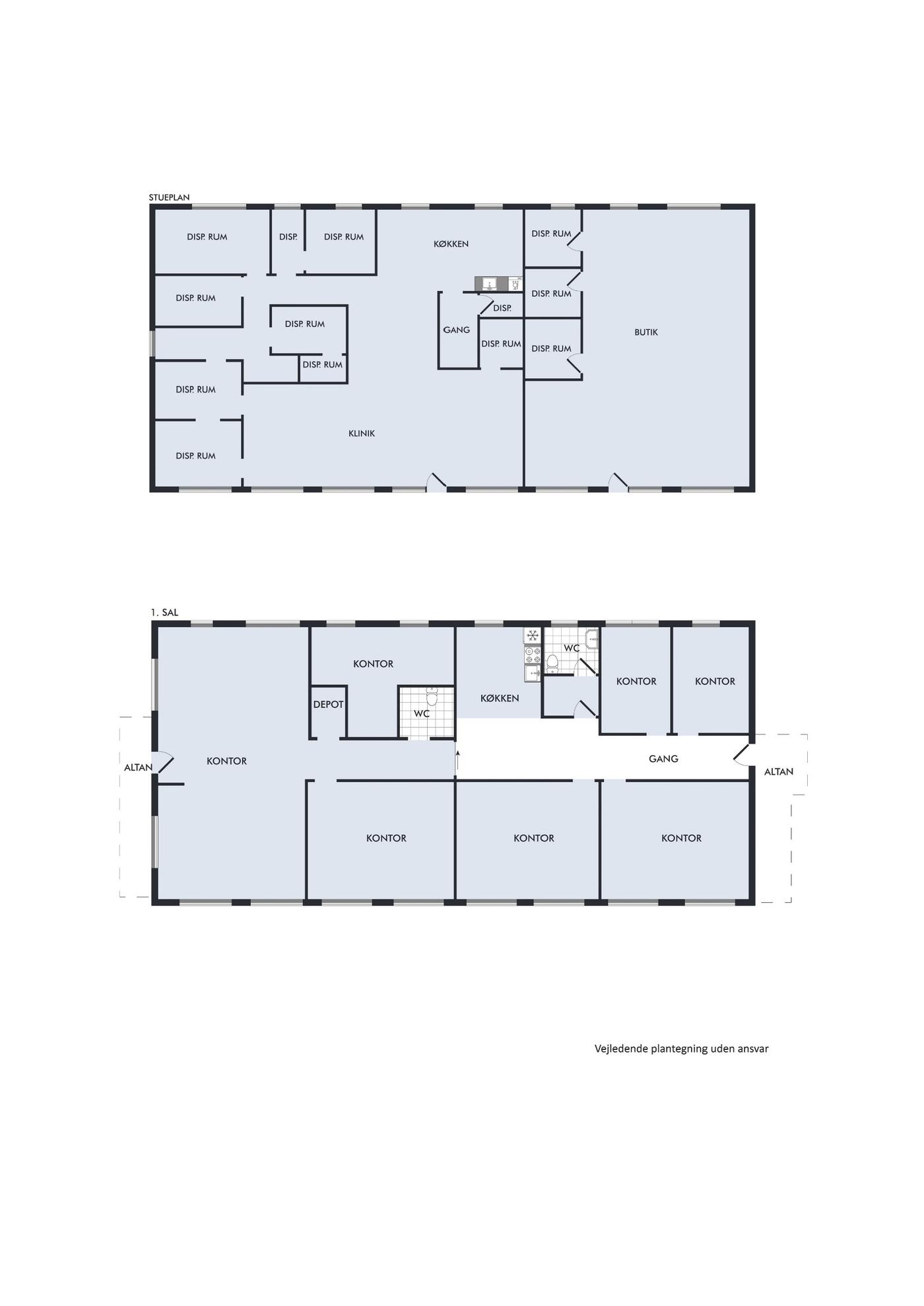
Stueplan er blevet ledig til køber

• Synlig beliggenhed i Skejby Centret
• Attraktivt vækstområde
• Stueplan er ledig til køber
• Lav kvadratmeterpris

Mulighed for butik, kontor, klinik mv.

Ejendommen:
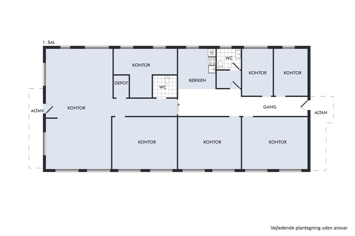
Gedigen og meget regulær ejendom, opført i gule mursten med rødt betontag i år 2004. Ejendommen har en grund på 450m², så der er lidt plads på bagsiden til renovation mv.. Ejendommen er i to plan og meget fleksibelt indrettet så der kan være alt mellem 2 og 4 lejemål. Stueplan leveres ledigt til købers brug og 1. sal er udlejet til psykolog.

Centret:
Skejby centret er et større indkøbscenter med en Føtex samt en masse specialbutikker og restauranter. Centret har netop fået ny ejer og der forventes en større udvikling de kommende år. Foran centret og denne ejendom er der masser af parkeringspladser.

Området:
Ejendommen er beliggende i Skejby i det nordlige Aarhus, lige ved Risskov og Christiansbjerg. Her er let adgang til centrum samt E45, ligesom området er et populært vækstområde hvor der de senere år er opført rigtig mange nye boliger. Nærområdet byder udover mange boliger også på VIA University College og Aarhus Universitetshospital.

EN SOLID INVESTERING MED ATTRAKTIV BELIGGENHED

Læs mere

Vil du vide mere?

Peter Løndal

plo@nordicals.dk

+45 20774243

Frederiks Plads 42, 12. sal, 8000 Aarhus

+4586208585

8000@nordicals.dk

Besøg vores mæglerside

Lignende ejendomme

Til top