Oktobervej 57
8210 Aarhus V

Sagsnr. 2002241

Ejendomstype

Etageareal

Grund

Energiklasse

524 m²

2.086 m²

D

2 boliger samt erhvervshal og kontor

Regulær ejendom med to boliger og erhverv - Overtages tom

BELIGGENHED:
Central beliggenhed tæt ved Aarhus C og Ringvejen/Viborgvej. Kvarteret byder på blandet bolig og erhverv af forskellige typer.

EJENDOMMEN:
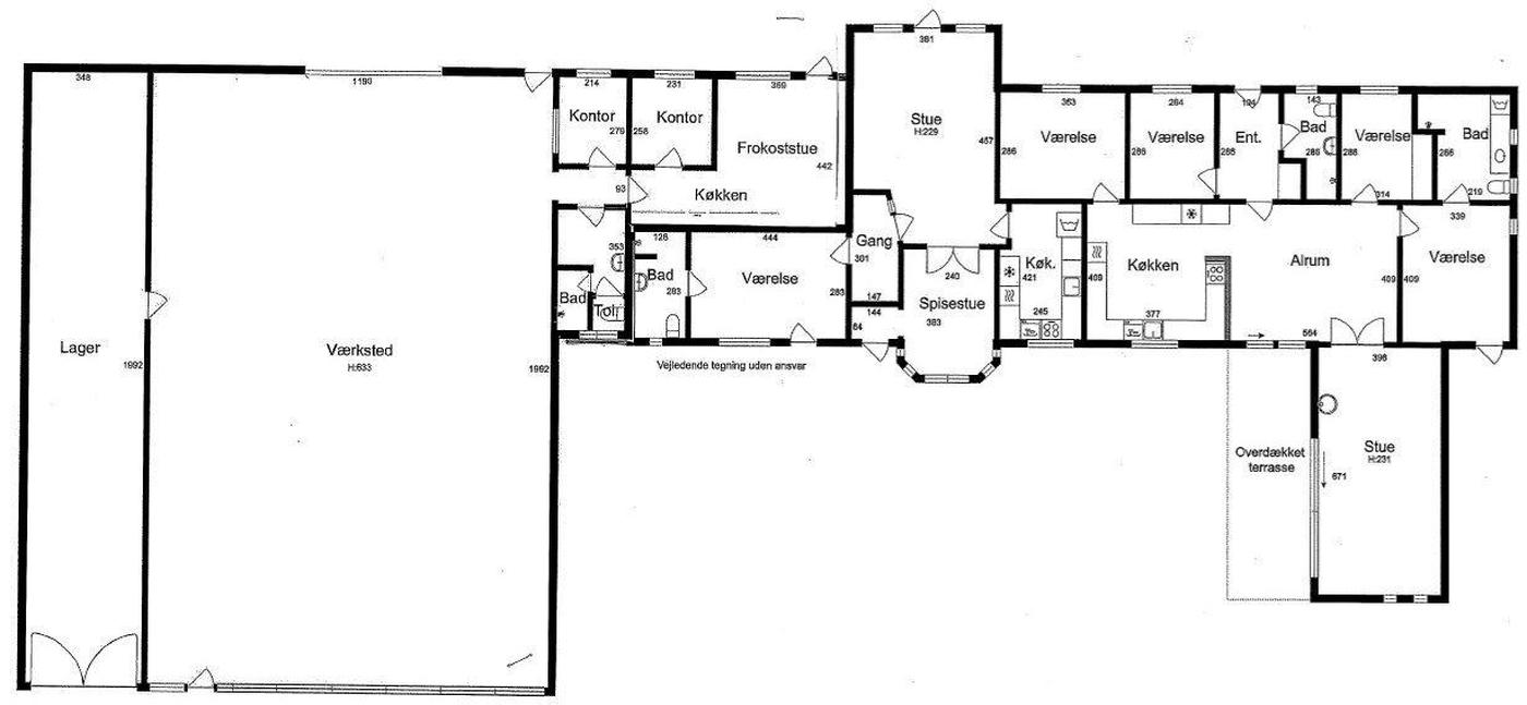
Bolig 1 er opført i røde mursten med eternittag. Boligen er på ca. 203 m² samt en overdækket terrasse mod baghaven. Boligen indeholder en stor stue med brændeovn, stort køkken/alrum, 4 gode værelser og 2 badeværelser.

Bolig 2 er sammenbygget med bolig 1 og er registreret til ca. 50 m². Her er stue, spisestue, køkken, soveværelse og badeværelse.

Erhvervsdelen på ca. 271 m² består af en søjlefri og isoleret hal, der opvarmes med olie via kaloriferefyr. Her er parketgulve, troltektlofter og et godt lysindfald. Fra hallen er der adgang til en afdeling med to små kontorer, fin kantine med lille køkken samt omklædningsrum med bruseniche og toilet. Herudover er der tilbygget 74 m² uisoleret pulterkammer.

Erhverv har tidligere været benyttet til karosseriværksted, herefter ombygget til bokseklub og senest fotostudie.

Udenomsarealerne foran og på siden af ejendommen er flisebelagte. Baghaven er med græs, terrasse og træer.

Ejendommen overtages ledig til købers disposition.

Erhvervsområdet er omgivet af boligområder, og kvarteret er i kommuneplanen udlagt til byomdannelse, hvilket medfører, at der er mulighed for, at området på sigt kan konverteres til bolig.

Køber er bekendt med, at sælger er et dødsbo. Ejendommen sælges derfor uden ansvar for mangler af enhver art, såvel retlige som faktiske, dog bortset fra adkomstmangler. I tilfælde af adkomstmangel kan køber ikke kræve erstatning men er alene berettiget til at hæve købet, for så vidt angår den eller de, som vanhjemlen vedrører. Køber erklærer sig indforstået med ikke herudover at kunne gøre misligholdelsesbeføjelser gældende over for sælger/ kurator/ eller skifteretten vedrørende købet, herunder retten til at hæve handlen, kræve afslag i prisen eller erstatning. Køber erklærer, at han i sin prisfastsættelse har taget højde for nærværende ansvarsfraskrivelse.

Læs mere

Denne ejendom er solgt

Vil du vide mere?

Peter Løndal

plo@nordicals.dk

+45 20774243

Frederiks Plads 42, 12. sal, 8000 Aarhus

+4586208585

8000@nordicals.dk

Besøg vores mæglerside

Lignende ejendomme

Til top