Runetoften 22
8210 Aarhus V

Sagsnr. 2001054

Ejendomstype

Etageareal

Grund

Energiklasse

615 m²

3.020 m²

D

Flot og regulært domicil/kontor/lager til leje i Hasle

Introduktion:
Ejendommen er en præsentabel domicilejendom fra 2001 beliggende i et udbygget erhvervsområde, som ligger parallelt langs Viborgvej i den vestlige del af Aarhus. Ejendommen vil være ideel for eksempelvis IT- eller konsulentvirksomheden, som ønsker at bo i eget domicil i et område med god infrastruktur. Ejendommen vil ligeledes være velegnet for ingeniørvirksomheden med behov for mindre værksteds-/ lagerfaciliteter. Det store grundareal muliggør desuden en væsentlig udvidelse af bygningsarealet - f.eks. opførelsen af en lager-/produktionshal i tilknytning til den eksisterende bygning. Ejendommen kan opdeles i 2 lejemål.

Beliggenhed:
Ejendommen er beliggende i et udbygget erhvervsområde i Hasle i den vestlige del af Aarhus, som ligger parallelt langs Viborgvej. Området ligger med kun 4,5 km. til motorvej E45 ved motorvejsafkørsel Tilst. Fra ejendommen er der endvidere blot få minutters kørsel til ringvejssystemet rundt om Aarhus, der sikrer hurtig og nem adgang til alle dele af byen. Køretiden til Aarhus centrum er ca. 10 min. Området er desuden velforsynet med offentlige transportmuligheder.

Beskrivelse:
Ejendommen fremstår udvendigt solid med facader af hhv. røde mursten og metalprofilplader. Der er monteret oplader til elbiler.

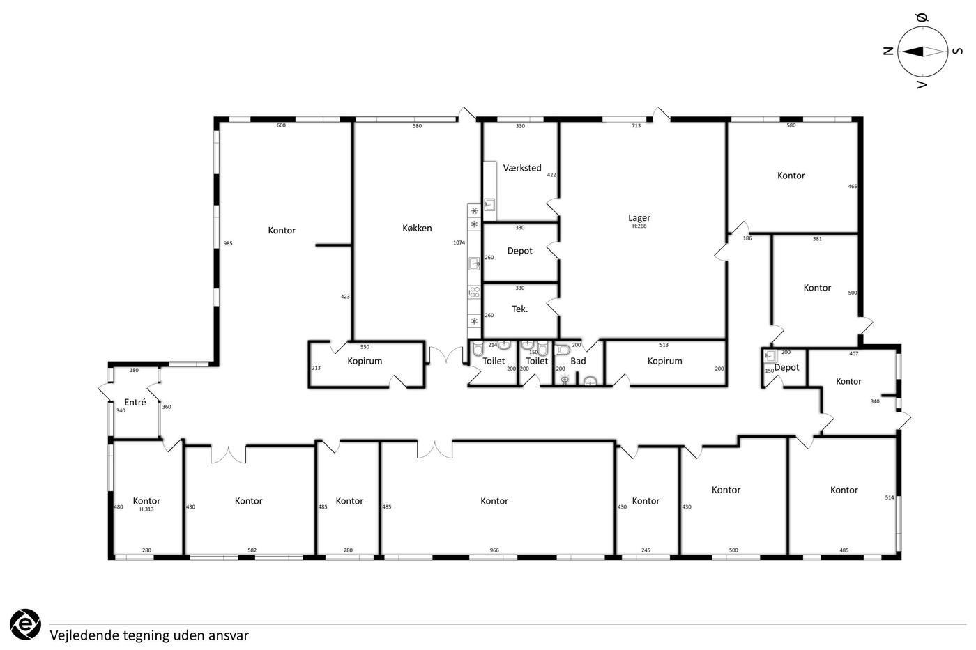
Bygningen på i alt 615 m² består overordnet set af ca. 515 m² lyse og veldisponerede kontorarealer og et ca. 100 m² opvarmet og isoleret lager-/ produktionsafsnit. De større rum er med flotte trægulve, og de mindre kontorrum er med gulvtæpper. Ejendommen er indrettet med flere større og mindre kontorer, kantine/køkken, 3 toiletter og badefaciliteter, diverse teknik, printer eller depotrum samt lager.

Der er mange parkeringspladser på ejendommen.

Grundens udnyttelse:
Ejendommen ligger på en grund på 3.020 m², som er indhegnet og forsynet med automatisk skydeport. Udenomsarealerne er hovedsageligt befæstet med flisebelægning og er udlagt til parkering. Den øvrige del af grunden er udlagt til plæne og grøn beplantning. Lokalplanen muliggør en væsentlig udvidelse af bygningsarealet.

Læs mere

Denne ejendom er udlejet

Vil du vide mere?

Jens Eskildsen

jes@nordicals.dk

+4551261408

Frederiks Plads 42, 12. sal, 8000 Aarhus

+4586208585

8000@nordicals.dk

Besøg vores mæglerside

Lignende ejendomme

Til top