Edwin Rahrs Vej 52
8220 Brabrand

Sagsnr. 2104081

Ejendomstype

Etageareal

Grund

Energiklasse

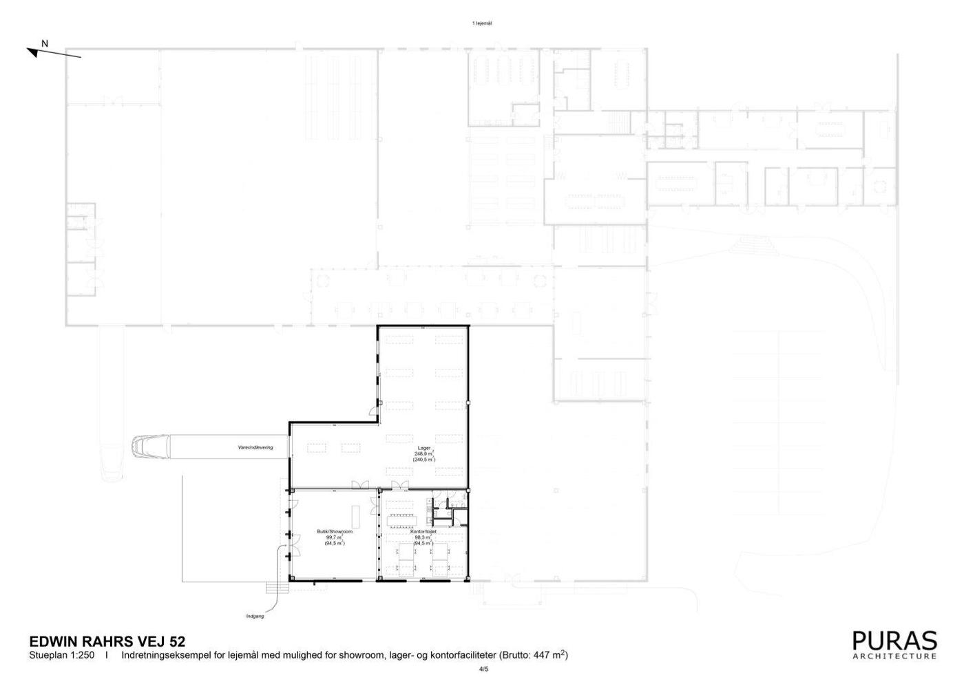
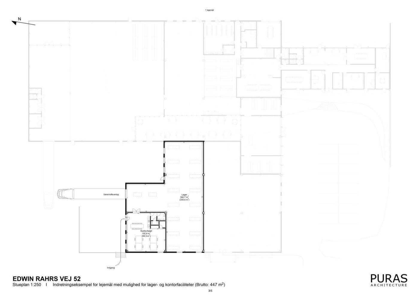
447 m²

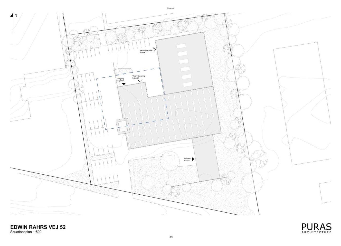
10.990 m²

D

Nyindrettede kontor/lagerlokaler til leje i Brabrand

Lejemålet er beliggende i Brabrand med god synlighed. Lejemålet indrettes efter lejers ønske ved indgået lejekontrakt.

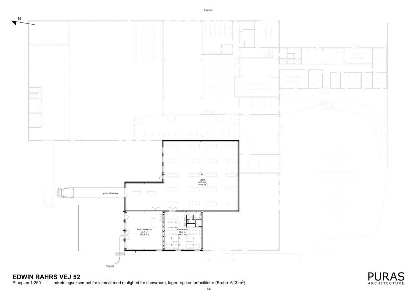
Lejemålet kan indrettes på 3 forskellige måder og i 2 forskellige størrelser.
Den ene mulighed er et lager på 344 m2 og et kontor på 104 m2 som indeholder tekøkken, 2 toiletter og garderobe. Der er port indtil lageret.
Den anden mulig er et lager på 249 m2 og et showroom/butik på 100 m2 og et kontor på 98 m2 som indeholder tekøkken, 2 toiletter og garderobe.
Den tredje mulighed er et lager på 415 m2 og et showroom/butik på 100 m2 og et kontor på 98 m2 som indeholder tekøkken, 2 toiletter og garderobe.

Den kommende lejer kan selv være med til at sætte sin personlighed i indretningen. I den opgivne leje er indeholdt normal abtering af lejemålet.

Læs mere

Denne ejendom er udlejet

Vil du vide mere?

Paul Asger Mühl

pam@nordicals.dk

+45 21375306

Frederiks Plads 42, 12. sal, 8000 Aarhus

+4586208585

8000@nordicals.dk

Besøg vores mæglerside

Lignende ejendomme

Til top