Sintrupvej 23
8220 Brabrand

Sagsnr. 2508044

Ejendomstype

Etageareal

Energiklasse

140 m²

D

Årlig leje

Leje pr. m²

Depositum

90.000 kr.

643 kr.

45.000 kr.

Attraktivt kontorlejemål på 140 m² – ideel placering i Brabrand

Nu udbydes et velindrettet kontorlejemål i stueetagen af en større erhvervsejendom på Sintrupvej i Brabrand - kun få minutter fra motorvejsnettet og Aarhus C.

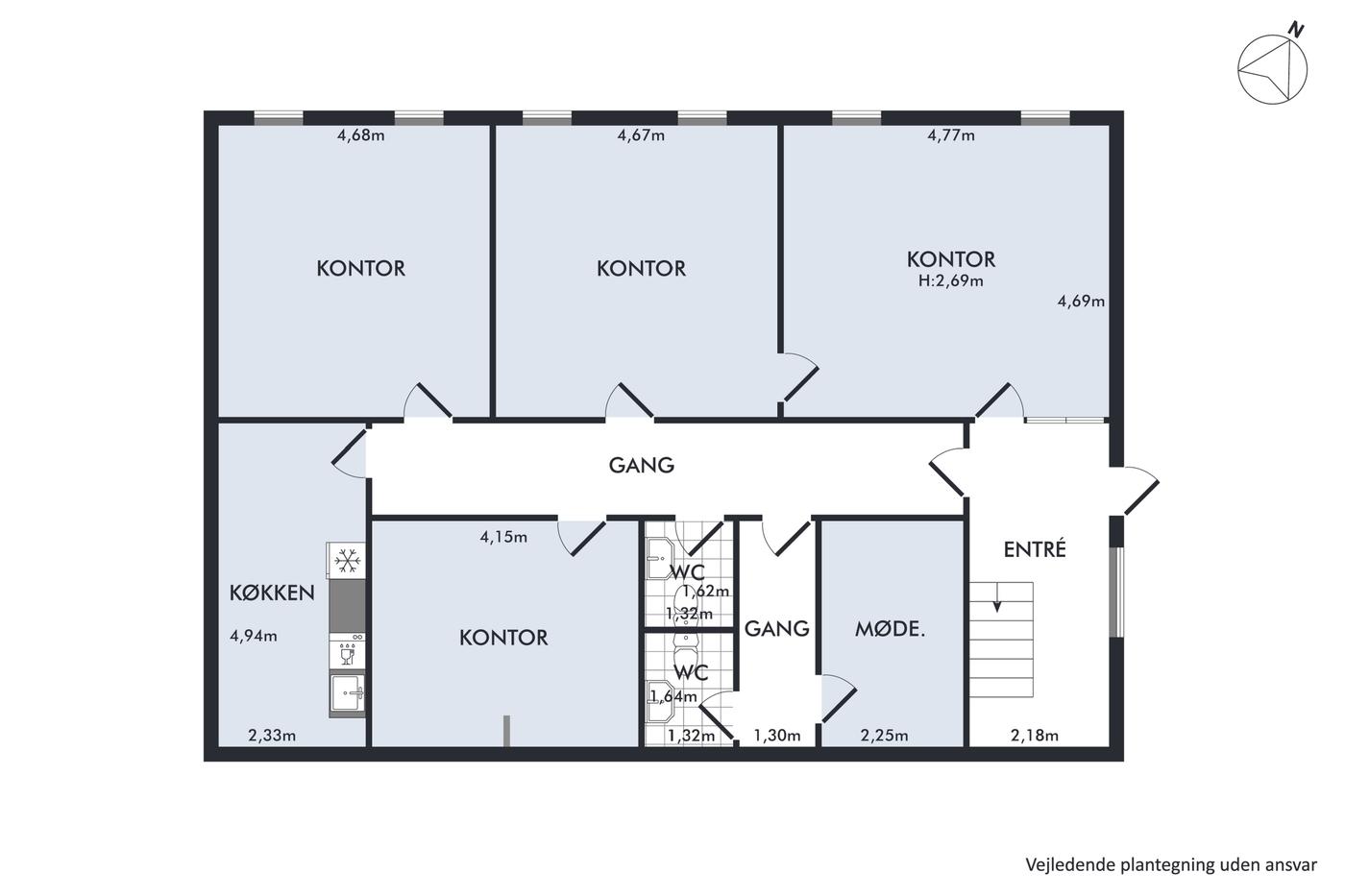
Lejemålet er på 140 m² og byder på en funktionel planløsning med egen indgang direkte fra parkeringspladsen, et praktisk arkivrum, tekøkken, toiletter samt tre lyse og regulære kontorer. Lokalerne egner sig perfekt til mindre virksomheder eller satellitkontorer, som ønsker nem adgang og gode faciliteter.

Ejendommen huser flere erhvervslejere og tilbyder et professionelt miljø samt gode parkeringsforhold lige ved døren - en sjælden fordel tæt på Aarhus.

Med kun ca. 3 km til motorvejen og ca. 5 km til Aarhus centrum er placeringen ideel for virksomheder med behov for god tilgængelighed og synlig beliggenhed.

Læs mere

Vil du vide mere?

Paul Asger Mühl

pam@nordicals.dk

+45 21375306

Frederiks Plads 42, 12. sal, 8000 Aarhus

+4586208585

8000@nordicals.dk

Besøg vores mæglerside

Lignende ejendomme

Til top