Møllehatten 21, 1.
8240 Risskov

Sagsnr. 2409044

Ejendomstype

Etageareal

Energiklasse

151 m²

A2015

Årlig leje

Leje pr. m²

Depositum

Årlig driftsudgift

Årlig driftsudgift pr. m²

173.650 kr.

1.150 kr.

86.825 kr.

35.787 kr.

237 kr.

Kontor eller klinik i Risskov Brynet

• Moderne lokaler med alle faciliteter
• Adgang til fælles kantine og tagterrasse
• Gode parkeringsforhold

Risskov Brynet er et attraktivt nyt kvarter, hvor man er tæt på det hele: Byen, stranden, skoven, indkøbsmuligheder - og med gode tilkørselsmuligheder fra både Ringvejen og Motorvejen. Samtidig er man kun 5 km. fra Rådhuspladsen i Aarhus.

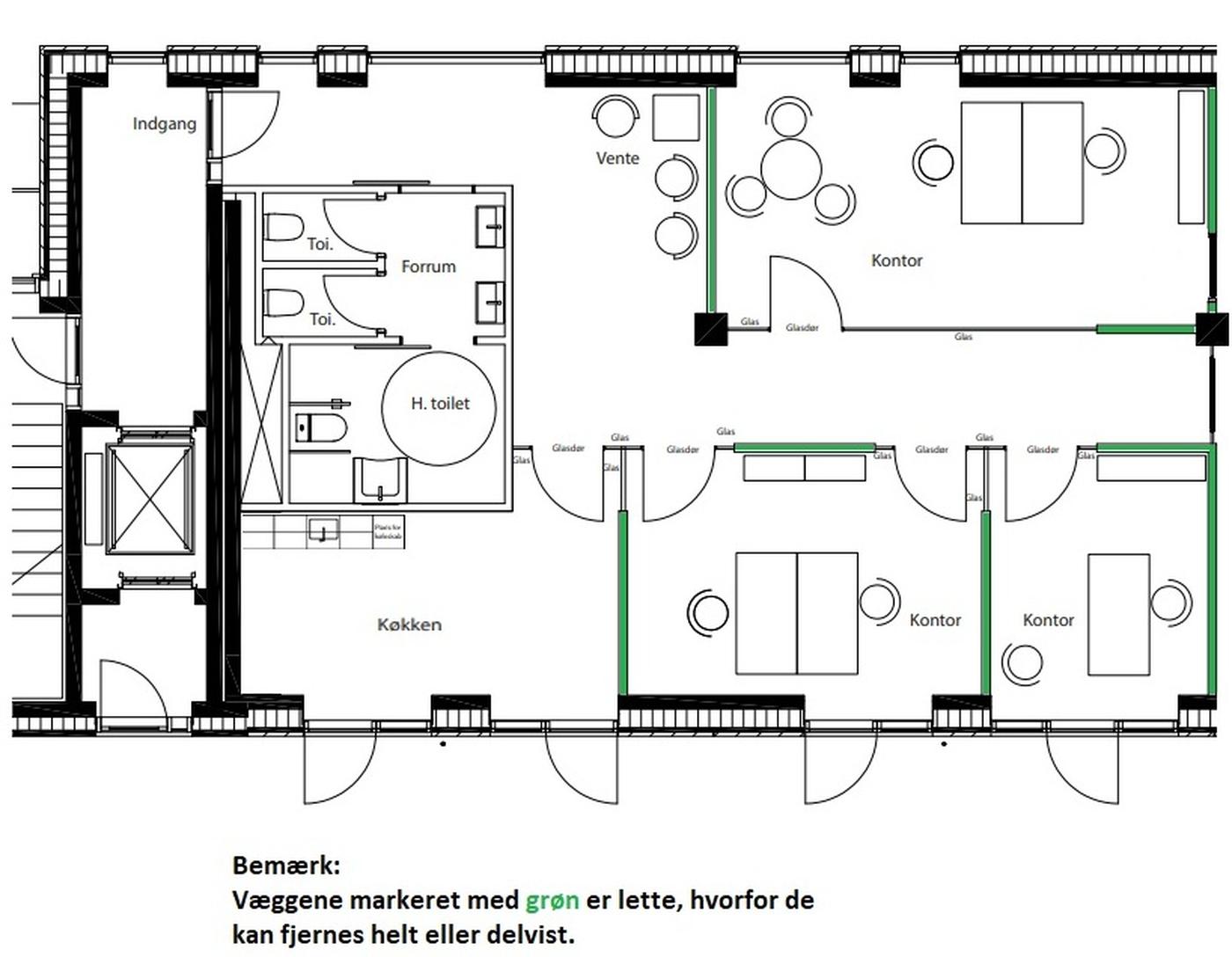
Her udlejer vi nu et moderne og indbydende kontorlejemål med et dejligt lysindfald og ventilation med køl. Med den nuværende indretning er der plads til ca. 10 arbejdspladser. Ønskes en anden indretning, er dette muligt efter nærmere aftale.

Her får man adgang til en fælles kantine, der også kan bruges som større mødelokale / konferencerum udenfor kantinens åbningstid. Der er desuden adgang til en stor, fælles tagterrasse med en fantastisk udsigt over skoven og vandet.

Lejemålet er velegnet til kontor eller klinik.

Der er gode parkeringsforhold ved ejendommen og derudover mulighed for at leje egne pladser i ejendommens kælder.

Læs mere

Vil du vide mere?

Thomas Møller Kristensen

tmk@nordicals.dk

+45 27134591

Frederiks Plads 42, 12. sal, 8000 Aarhus

+4586208585

8000@nordicals.dk

Besøg vores mæglerside

Lignende ejendomme

Til top