Mosevej 3
8240 Risskov

Sagsnr. 2411114

Ejendomstype

Etageareal

Grund

Energiklasse

520 m²

10.092 m²

A2015

Årlig leje

Leje pr. m²

Årlig driftsudgift

Årlig driftsudgift pr. m²

582.050 kr.

1.119 kr.

181.480 kr.

349 kr.

Fantastisk lotte kontorer udlejes

- Super flotte kontorer
- Fælles mødecenter og kantine i høj kvalitet
- Vederlagsfri parkering
- Tæt til motorvej og indfaldsvej mv.
- Yderst attraktive lejevilkår - se side 5 i lejeprospektet

ATTRAKTIVE LEJEVILKÅR:
Lejemålets fremlejegiver tilbyder lejer særdeles attraktive lejevilkår - download prospekt for nærmere


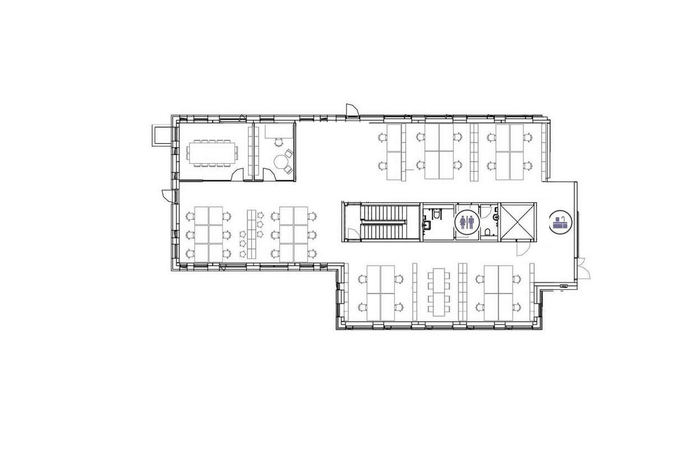
LEJEMÅLSBESKRIVELSE

Lejemålet er beliggende i "The Union", som er et næsten nyopført højkvalitets kontorkompleks på ialt ca. 16.000 m² med facade mod Lystrupvej der er direkte adgangsvej til såvel Djurslandsmotorvejen som indfaldsvej mod det centrale Aarhus.

Lejemålet er indrettet som et storrumskontor som er passende opdelt af en central kerne med toiletter og adgang til flugtvejstrappe og et tilhørende konferencelokale/cellekontor og print-kopirum.

Du fornemmer den gode kvalitet i lejemålet straks du træder indenfor. Her er tæppebelagte gulve, loftsbeklædning med integreret loftsbelysning og ventilation m. køl. Trappekernen er opført i rå beton med flot træbeklædning, som fuldender kvalitetsindtrykket i hele lejemålet.

Til lejemålet hører adgang til en fælles kantine og et mødecenter i høj kvalitet. Her kan du afvikle dine møder i flotte rammer med mulighed for forplejning fra kantinen, så du sparer tid og ressourcer herpå.

Behøver vi at nævne, at ejendommen, og dermed lejemålet, er DGNB Guld certificeret, så din virksomhed også er sikret det rette aftryk i den henseende.

Læs mere

Vil du vide mere?

Jan Nickelsen

jni@nordicals.dk

+45 4043 6310

Frederiks Plads 42, 12. sal, 8000 Aarhus

+4586208585

8000@nordicals.dk

Besøg vores mæglerside

Lignende ejendomme

Til top