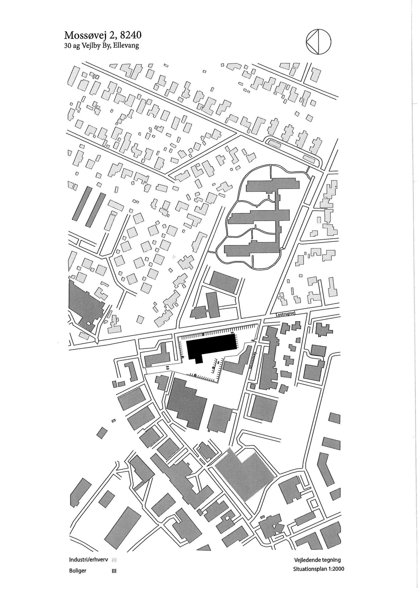
Mossøvej 2
8240 Risskov

Sagsnr. 1911088

Ejendomstype

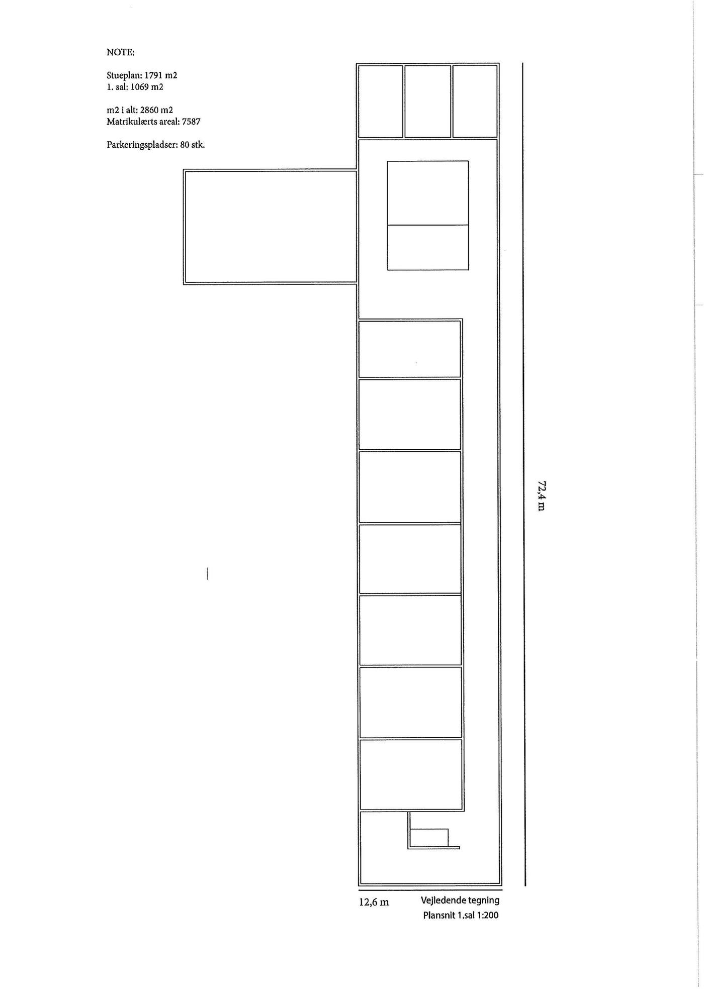
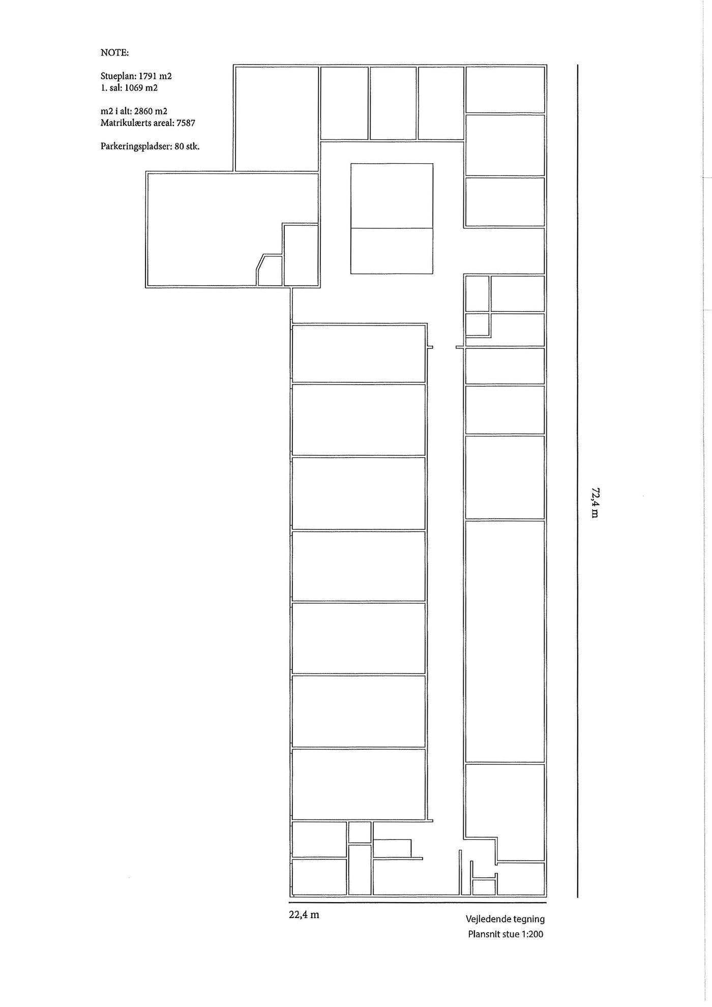
Etageareal

Grund

Energiklasse

3.419 m²

7.587 m²

C

Projektejendom i Risskov

Beliggenhed:
Ejendommen er synligt beliggende på hjørnet af Mossøvej og Lystrupvej, ca. 2 kilometer fra Djurslandsmotorvejen.

Lystrupvej forbinder Djurslandsmotorvejen med Risskov og Aarhus, og der kører dagligt 12.000 biler forbi (jf. Aarhus Kommune).

Området har de seneste år været i rivende udvikling, og der er opført adskillige boligområder i nærheden. Mest i form af lejeboliger. Men derudover er området præget af diverse erhvervsbyggerier både i form af domiciler, dagligvarebutikker, fitnesscentre m.m.

Ejendommen:
Ejendommen er oprindeligt en gammel handelsskole, som i dag delvist fungerer som kontorhus/erhvervshus.

Fra indgangen ud mod Lystrupvej træder man ind i en stor foyer, hvorfra der er adgang til diverse kontorer/møderum i 2 plan.

Ejendommen trænger til omfattende istandsættelse.

Fremtidig anvendelse:
Jf. lokalplan kan der etableres erhverv i form af:

- Kontor.
- Lager.
- Produktion.
- Butikker på op til 100 m².
- Offentlige funktioner.

Max. antal etager: 2.
Max. bygningshøjde: 12 m.
Max. bebyggelsesprocent: 60%.

Læs mere

Denne ejendom er solgt

Vil du vide mere?

Jens Eskildsen

jes@nordicals.dk

+4551261408

Frederiks Plads 42, 12. sal, 8000 Aarhus

+4586208585

8000@nordicals.dk

Besøg vores mæglerside

Lignende ejendomme

Til top