Voldbjergvej 16B, 1.
8240 Risskov

Sagsnr. 2506334

Ejendomstype

Etageareal

Grund

Energiklasse

71 m²

15.524 m²

D

Årlig leje

Leje pr. m²

Depositum

83.400 kr.

1.175 kr.

20.850 kr.

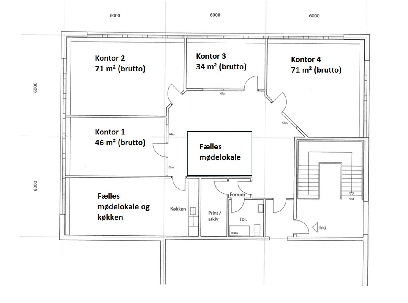
Lækkert kontor med fine fælles faciliteter

• Nyistandsat kontor i kontorfællesskab
• Adgang til to fælles mødelokaler og et køkken
• Gratis parkering lige ved døren
• Fleksible lejevilkår
• Kr. 6.950 pr. måned inkl. forbrug og internet

Bliv en del af et velfungerende kontorfællesskab ved Grenåvej i Risskov.

Hele kontorfællesskabet har et moderne udtryk med parketgulve, LED-belysning og akustikvægge.

Der er adgang til to mødelokaler, et køkken, printerrum og toilet.

Den månedlige leje på kr. 6.950 er inklusive forbrug, internet og rengøring af fællesarealer.

Beliggenheden er optimal med hurtig adgang fra såvel motorvejen som ringvejen og de øvrige indfaldsveje til Aarhus. Samtidig er vi kun 10 minutter fra Aarhus C og har gåafstand til letbanen og diverse busser.

Ejendommen har et meget stort parkeringsareal, som lejerne kan benytte vederlagsfrit.

Læs mere

Vil du vide mere?

Thomas Møller Kristensen

tmk@nordicals.dk

+45 27134591

Frederiks Plads 42, 12. sal, 8000 Aarhus

+4586208585

8000@nordicals.dk

Besøg vores mæglerside

Lignende ejendomme

Til top