Gunnar Clausens Vej 9
8260 Viby J

Sagsnr. 94171090

Ejendomstype

Etageareal

Energiklasse

159 m²

D

Kontorlejemål med synlig beliggenhed

Introduktion:
Indflytningsklart kontorlejemål i god stand beliggende i et udbygget erhvervskvarter i Viby tæt ved E45 udlejes. Lejemålet har mange anvendelsesmuligheder og vil være ideelt for alle virksomheder, der vægter nærhed til motorvejen samt gode parkeringsforhold højt.

Beliggenhed:
Lejemålet er beliggende i et udbygget erhvervsområde i Viby i den sydlige del af Aarhus med synlig facade til den trafikerede Gunnar Clausens Vej. Området ligger med kun 3,5 km. til Århus Syd Motorvejen via Genvejen, som leder hurtigt videre til Motorvej E45. Fra ejendommen er der endvidere blot få minutters kørsel til ringvejssystemet rundt om Aarhus, der sikrer hurtig og nem adgang til alle dele af byen. Køretiden til Aarhus centrum/ Havn er ca. 10 min.. Området er desuden velforsynet med offentlige transportmuligheder i form af både bus og tog med bl.a. stoppested for den nye Letbane blot 350 meter fra ejendommen.

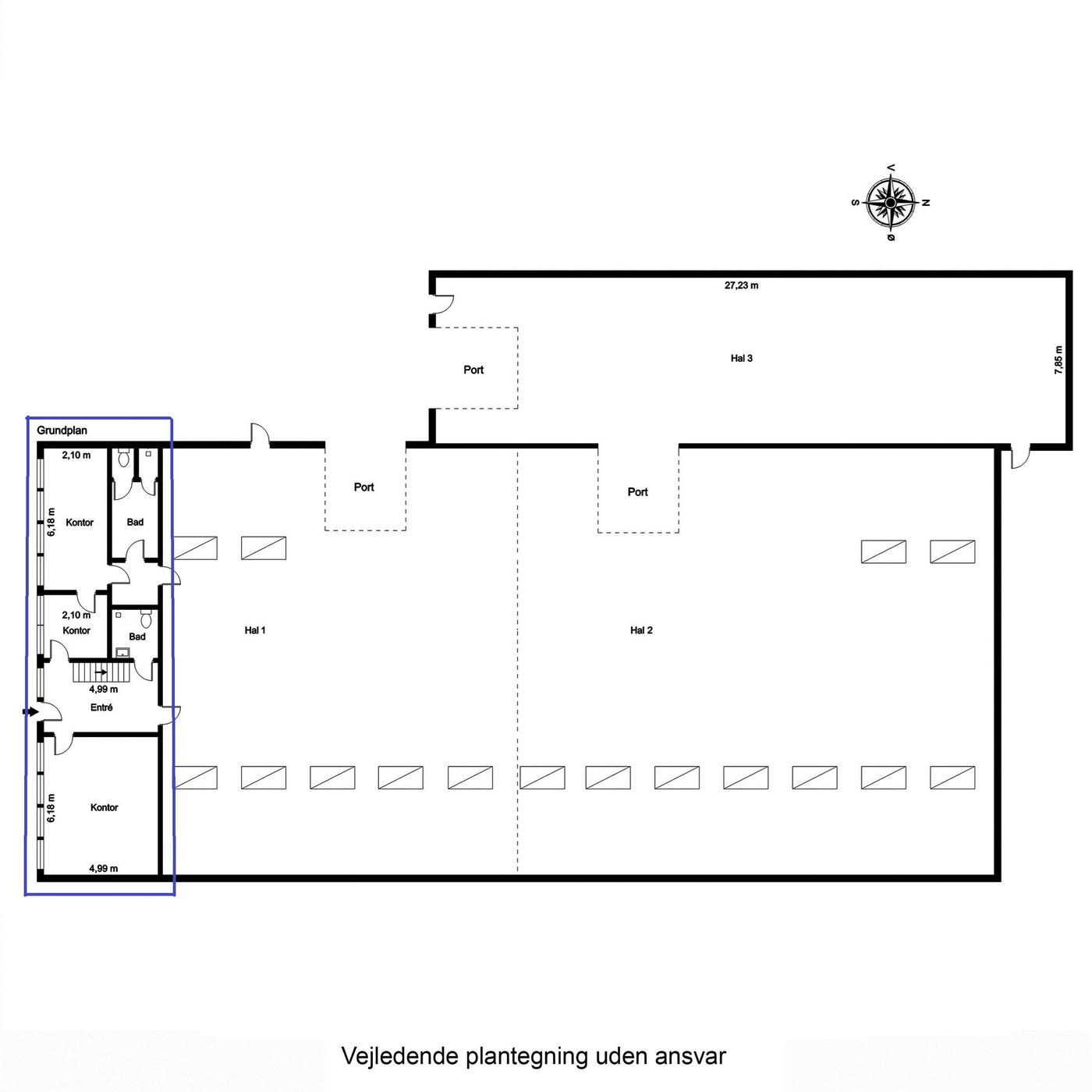
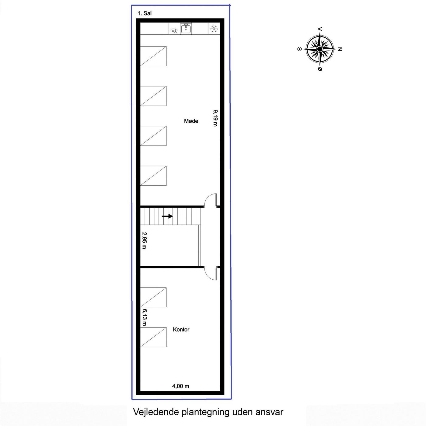
Beskrivelse:
Lejemålet på 159 m² udgør en selvstændig del af en større ejendom på i alt ca. 1.000 m². Den øvrige del af ejendommen benyttes af udlejer. Lejemålet er placeret i fronten af bygningen mod Gunnar Clausens Vej og har eget indgangsparti. Lokalerne er beliggende i henholdsvis stueplan og på 1. sal. I stueplan forefindes to kontorer, frokoststue med opsat te-køkken, to toiletter samt bad- og omklædningsfaciliteter. Fra stueplanets præsentable entré i dobbelthøjde er der trappeløb til 1. sal, som indeholder et yderligere kontor samt en større kantine med opsat køkken. Sidstnævnte vil ligeledes være anvendelig som f.eks. mødelokale eller showroom. Kontorene fremstår lyse og venlige og er overvejende belagt med flotte trægulve. Lejemålet er desuden forsynet med installationspaneler med både edb- og eludtag, og den store parkeringsplads lige udenfor døren sikrer endelig gode p-forhold for såvel virksomhedens ansatte som gæster.

Læs mere

Denne ejendom er udlejet

Vil du vide mere?

Frederiks Plads 42, 12. sal, 8000 Aarhus

+4586208585

8000@nordicals.dk

Besøg vores mæglerside

Lignende ejendomme

Til top