Søholmvej 29A, 1., Stavtrup
8260 Viby J

Sagsnr. 2103054

Ejendomstype

Etageareal

Grund

Energiklasse

269 m²

3.005 m²

C

Flot kontorlejemål med udsigt

Flot kontorlejemål med idyllisk beliggenhed i Aarhus-bydelen Stavtrup. Der er 200 m² effektivt kontorareal og gode fællesfaciliteter. Det flotte kontormiljø tilbyder et godt arbejdsmiljø og en god udsigt mod Brabrand Sø og de omkringliggende grønne arealer. Der er rigeligt med egne p-pladser, og køretiden til motorvejsnettet er kun 5 minutter. Der er god bybusforbindelse til Aarhus C, velfungerende cykelsti via Brabrandstien og køretid i bil på ca. 10 minutter til Aarhus C.

Lejemålet er beliggende på 1. sal i en ejendom, som har naturskønne omgivelser på Søholmvej. Med udsigt til Brabrand-søen og grønne arealer er lejemålet ideelt for virksomheden, der vægter et godt arbejdsmiljø og et kontor i Aarhus, som ikke er påvirket af myldretid.

Ejendommen fremstår som et flot domicil. De store vinduespartier i facaden skaber et godt lysindfald til kontorerne både i stueetagen og på 1. sal. Der er én anden lejer i ejendommen, og kantine og velfærdsrum deles med denne.

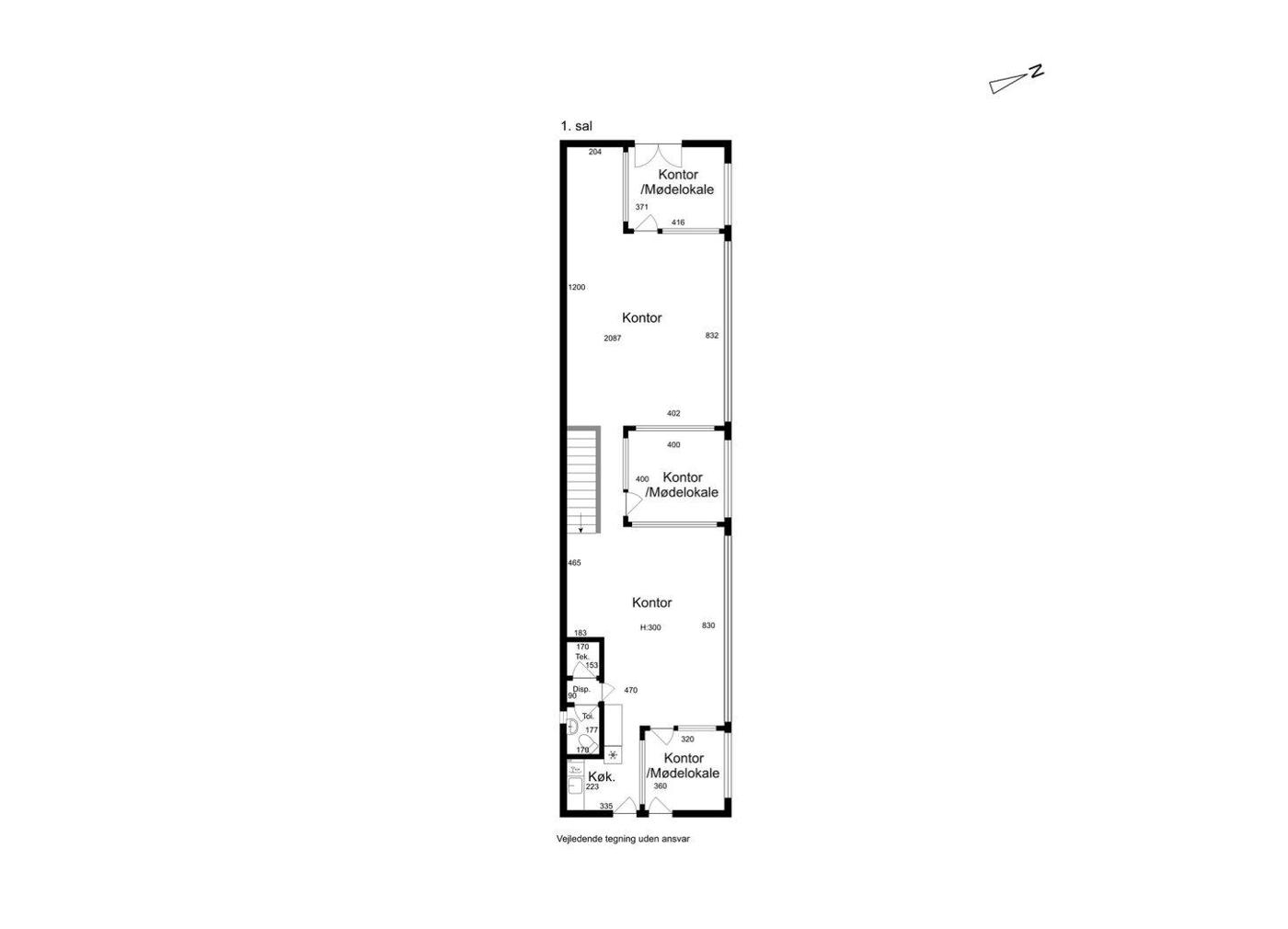
Ved ankomst træder du ind i et præsentabelt indgangsparti med højt til loftet, som leder dig op til kontoret på første sal. Dette kontor er indrettet med storrumskontor, 3 cellekontorer og har eget toilet/tekøkken.

Læs mere

Denne ejendom er udlejet

Vil du vide mere?

Jens Eskildsen

jes@nordicals.dk

+4551261408

Frederiks Plads 42, 12. sal, 8000 Aarhus

+4586208585

8000@nordicals.dk

Besøg vores mæglerside

Lignende ejendomme

Til top