Heidesvej 3
8270 Højbjerg

Sagsnr. 1903084

Ejendomstype

Etageareal

Grund

Energiklasse

390 m²

1.147 m²

G

Totaltrenoverede lokaler tæt på Aarhus C

Ejendommen
Ejendommen har oprindeligt huset en møbelfabrik. Ejendommen er under en gennemgribende renovering og istandsættelse, der skal skabe et unikt miljø for en virksomhed, som søger gode rammer til kontor/showroom eller klinik i rolige omgivelser nær Aarhus C.
Lokalerne vil fremstå lyse med et godt lysindfald og med en "loft style" fremtoning. De nye vinduer og døre vil være medvirkende til et godt indeklima. Som kommende lejer kan du få indflydelse på den endelige indretning.

Nedenstående beskrivelse og vedlagte skitseforslag er baseret på en indretning ved anvendelse til kontor. Lejemålet kan med fordel indrettes med behandlerrum ved anvendelse til klinik.

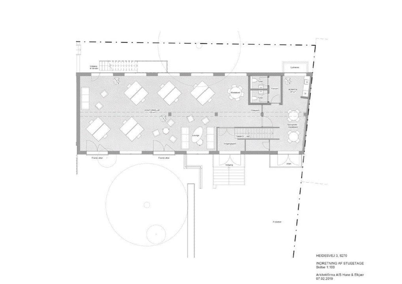
Stue (210 m²)
Mulighed for 10-12 arbejdspladser med mødefaciliteter. Der etableres 2 toiletter og et mindre køkken med spisepladser/mødelokale, der får udgang til terrasse.

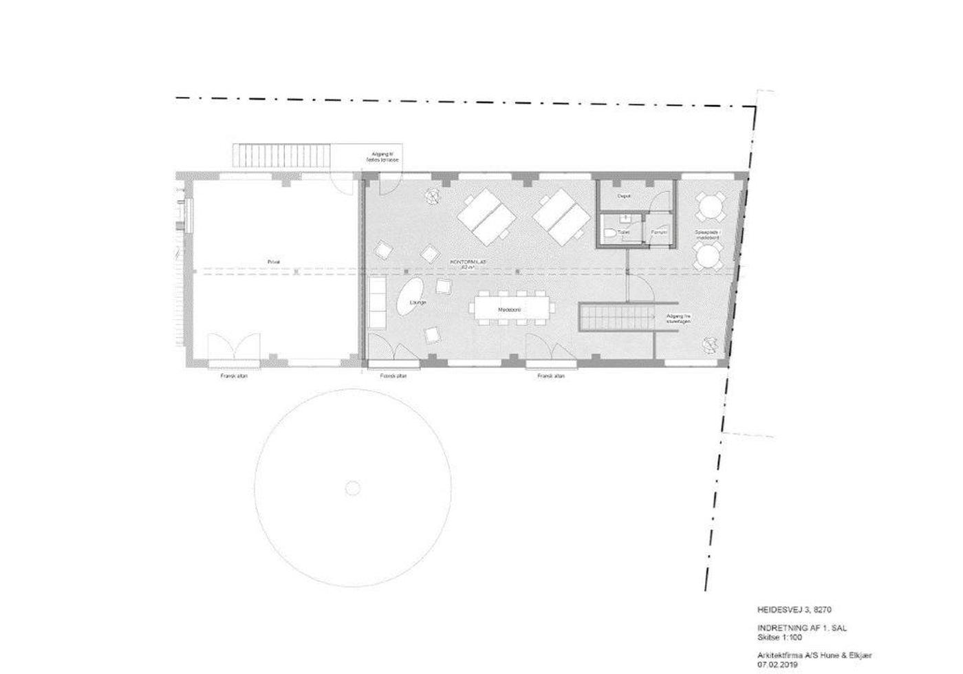
1. sal (180 m²)
Mulighed for 6-8 arbejdspladser med plads til mødeborde/lounge. Der etableres 1 toilet og internt depotrum. Der kan etableres et lille tekøkken med spisepladser/mødebord.

Der er mulighed for parkering af 4-5 biler på egen p-plads. Og ellers kan parkering langs vejen benyttes.

Lejemålet er opvarmet med fjernvarme. Der er mulighed for fiberkabel fra elforsyningsselskabet Aura.

Der kan etableres brusefaciliteter i kælder samt cykelparkering. Endvidere er der mulighed for at leje arkivrum i mindre omfang.

Lejemålet kan med fordel deles af 2 lejere i henholdsvis stueplan og 1. sal.

Læs mere

Denne ejendom er udlejet

Vil du vide mere?

Jens Eskildsen

jes@nordicals.dk

+4551261408

Frederiks Plads 42, 12. sal, 8000 Aarhus

+4586208585

8000@nordicals.dk

Besøg vores mæglerside

Lignende ejendomme

Til top